EasyManua.ls Logo

Philips A02U AA - SSB: Audio Source Select

Philips A02U AA
118 pages
Print Icon
To Next Page IconTo Next Page
To Next Page IconTo Next Page
To Previous Page IconTo Previous Page
To Previous Page IconTo Previous Page
Loading...
Circuit Diagrams and PWB Layouts
47A02U AA 7.
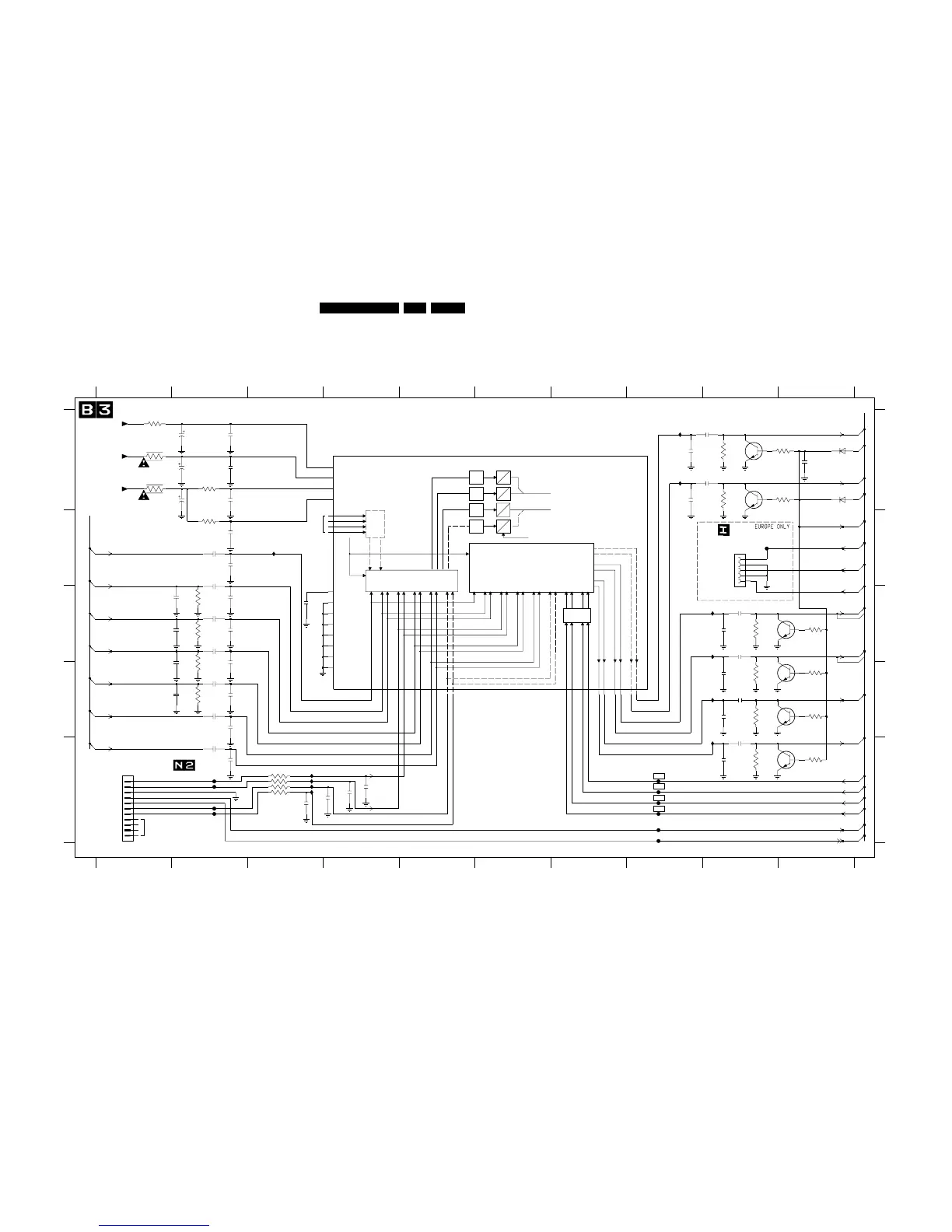
Small Signal Board: Audio Source Select
MIC1
AM
LPF
LPF
LPF
A
D
A
D
A
D
DLINK2
MIC1/L2/PIPM
MIC2/R2
AUDIO SWITCH
( ANALOG OUT )
A
D
MIC
AMPS
AUDIO SWITCH
( DIGITAL OUT )
AM
SOUND
LPF
DLINK1
L1/AM-INT
R1/AM-EXT
AUDIO
AMPS
6.75 MHz
AUDIO SOURCE SELECT
NC
B1-3
B18-48
B18-49
B18-50
B18-51
B18-52
B11-53
B2-21
B18-54
B18-56
B18-57
B2-15
B3-58
B3-59
B3-59
B3-58
B18-60
B18-61
B10-62
B10-63
B10-64
B10-65
B18-66
B18-67
0R
0R
TO/FROM 1062 OF 2Fh IO PNL
TO/FROM 1104 OF
3RD SCART PNL
B18
B11
5V
4V9
7V9
7V9
3V6
3V6
3V6
3V6
3V6
3V6
3V6
3V6
3V6
3V6
1 2 3 4 5 6 7 8 9 10
1 2 3 4 5 6 7 8 9 10
A
B
C
D
E
A
B
C
D
E
1009 A8
1117 E1
1118 B9
2002 A9
2003 A9
2004 C1
2005 A8
2006 A8
2007 B2
2008 B2
2009 C1
2010 C1
2011 D1
2012 B2
2013 C2
2014 C3
2015 C2
2016 C2
2018 C2
2019 C2
2021 D2
2022 D2
2024 D2
2025 D2
2027 E2
2028 E2
2029 A10
2030 D9
2031 C9
2032 E9
2033 D9
2037 C9
2038 C9
2039 D9
2040 D9
2041 E4
2042 E4
2043 E3
2044 E3
2045 A2
2046 A2
2047 A2
2048 A2
2049 A2
2050 A2
2051 B2
3002 D2
3003 C2
3004 C2
3005 C2
3006 A9
3007 A9
3008 E3
3009 E3
3010 A2
3011 B2
3012 E3
3013 E3
3016 A1
3018 A1
3019 A1
3022 D9
3024 E9
3026 C9
3027 D9
3028 A10
3029 A10
3030 C10
3031 D10
3032 D10
3033 E10
6029 A10
6030 A10
7029-1 A9
7029-2 A9
7030-1 C9
7030-2 D9
7031-1 D9
7031-2 E9
7100-A A4
F014 E8
F015 E8
F016 E8
F017 E8
F020 E8
F021 E8
F041 E2
F042 E2
F045 B10
F046 E2
F047 E2
I001 B3
I002 E3
I003 E3
I004 E3
I005 E3
I006 A8
I007 C9
I008 C9
I009 D9
I010 D9
B10
NC
6030
BAS316
100p
2011
2010
100p
100p
2009
2004
100p
6029
BAS316
1u0
2029
1K8
3028
BC847BS
7029-1
3029
1K8
7029-2
BC847BS
1K8
3030
BC847BS
7030-1
3031
1K8
7030-2
BC847BS
1K8
3032
BC847BS
7031-1
3033
1K8
7031-2
BC847BS
100n
2048
4R7
3018
10R
3019
220R
3016
22u
2046
2051
16V
F047
100n
F046
I009
I010
I007
I008
1009
I002
I006
I003
I005
I004
1
2
3
4
5
I001
6
7
8
9
1118
1
10
11
2
3
4
5
3013
1117
3012 100R
100R
2047
10u 16V
3011
3010
1n
1n
2044
F020
F021
2043
F045
100n
+5V
2049
47K
3007
47K
3006
F041
F042
47K
47K
3026
3022
10u
10u
2037
SCART2R
90 VAADCN
91 VAADCP
89 VAADCREF
77 VCC-AADC
98 VCC1-ASW
88 VCC2-ASW
2038
L5
68
LINEL
67
LINER
94 MIC1N
95 MIC1P
92 MIC2N
93 MIC2P
85
R1
83
R2
81
R3
79
R4
128
R5
70
SCART1L
69
SCART1R
66
SCART2L
65
17
AMEXT
75
DSNDL1
73
DSNDL2
74
DSNDR1
72
DSNDR2
96 FUSE1
78 FUSE2
71 FUSE3
76 GND-AADC
97 GND1-ASW
87 GND2-ASW
86
L1
84
L2
82
L3
80
L4
127
7100-A
MPIF
2042
1n
2041
100R3008
1n
3009
100R
2033
1n
1n
2032
1n
2030
1n
2031
2006
1n
2005
1n
F017
F015
F016
F014
100n
2014
470n
2007
1n
2008
10u
2002
10u
2003
+5V
+8V
10u
2039
47K
3027
47K
47K
3005
3024
3003
47K
3004
10u
3002
47K
47K
2050
100n
2040
2u2
50V
2045
2027
470p
470p
2021
470p
2024
2018
470p
470n
470n
2028
470n
2025
470n
2022
2019
470p
470n
2016
470p
2013
2015
470n
2012
CVBS-SC3
SEL-2FH-SRC_STATUS3
MUTE_SSB_1
POR_FLASH_1
MUTE_SSB
L-SC1_AV-OUT
R-SC1_AV-OUT
AUD-L1
AUD-R1
R-SC2-OUT
AUD_L2
AUD_R2
CVBS-TERR
R-SC1_AV-OUT
L-SC1_AV-OUT
DSNDL1
DSNDR1
DSNDL2
L-SC2-OUT
DSNDR2
PIP_AUDIO
L-SC1_AV1-IN
R-SC1_AV1-IN
L-SC2_AV2-IN
R-SC2_AV2-IN
L-FRONT-IN
L-CL_VL-OUT
R-FRONT-IN
R-CL_VL-OUT
E_13950_036.eps
120304
3139 123 5560.2

Table of Contents

Related product manuals