EasyManua.ls Logo

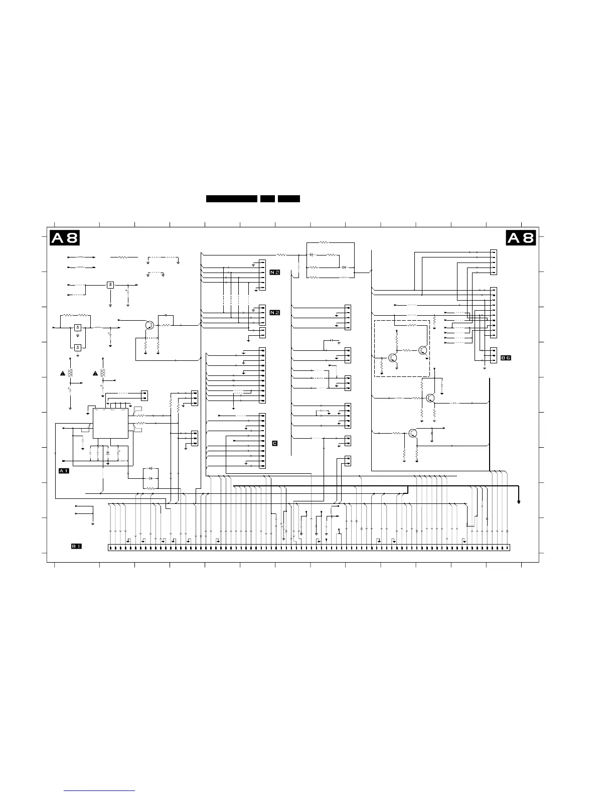
Philips A02U AA - Large Signal Panel: Tuner SIMM Connector (Female)

Philips A02U AA
118 pages
Print Icon
To Next Page IconTo Next Page
To Next Page IconTo Next Page
To Previous Page IconTo Previous Page
To Previous Page IconTo Previous Page
Loading...
36A02U AA 7.
Circuit Diagrams and PWB Layouts
Large Signal Panel: Tuner SIMM Connector (Female)
NC GND
I
1200 F2
1201 G1
1205 I2
*
N.C.
HD JACK
PANEL
TO 1933
HD JACK
PANEL
0V
SUPPLY
A11-56
1 2345678910111213
1 23456789
N.C
0V
A11-53
TO
0V
A11-55
2V4
SDA-S
0V
1000
4V5
EXTERNAL
4V
5V
6V
0V
0V
A6-14
10 11 12 13
A
B
C
D
E
F
G
H
I
A
0V
CONNECTOR
TO 0200
2T PIP
DW PANEL
OF
TO 0236
2T PIP
DW PANEL
OF
N.C.
N.C.
RES
OF 3D-COMB
FILTER PANEL
TO 0201
OF
2T PIP/DW
PANEL
B
C
D
E
F
G
H
GND-RGB-CRT
A11-60
0V8
SCL-S
A4-11
4V1
FROM
TUNER SIM CONNECTOR (FEMALE)
0V
A10-27
1932 F9
1933 B6
1934 A6
1935 E8
1936 D6
1937 B13
1940 E6
1943 E4
1948 D13
1951 A13
1952 D8
1953 D8
1955 F4
1961 B8
1965 C6
1966 G8
1997 E3
2200 C2
2201 F1
0V
A11-81
3V6
0V
A7-38
2202 G1
2203 G2
2455 I6
2483 B8
2496 A7
2914 E2
2915 E1
2916 C3
2917 E11
2918 F11
2929 E10
2930 E8
2931 C8
2940 B2
2941 I7
2942 I8
2943 I8
2944 E12
2945 H12
2946 I12
2947 I7
2950 G2
2951 G1
3200 F3
3201 F3
3210 D9
3211 C10
0V
A10-31
4V9
.
0V
A2-47
3V2
A4-41
0V
GND-RGB-SC1_YUV
+5V
A5-49
4V5
*
SIDE IO
0V
5V1
3212 D10
3213 C10
3250 H3
3261 E3
3262 E4
3427 A7
3428 A8
3429 B8
3430 A8
3432 A8
3903 F11
3904 D1
3907 C1
3910 C1
3928 C3
0V
A11-52
0V
TUNER
A3-45
GND-CVBS-OUT
1V1
3V
GND-PIP
8V4
0V
0V
GND-SCART-AV
5V
7V5
A11-54
3V
A4-6
2V8
0V
A4-10
TO
0V
3929 D3
3930 D3
3938 F10
3939 G10
3940 G10
3941 D2
3942 E11
3943 E11
3944 C11
A7-34
A7-35
A1-30
3945 F11
3999 A2
5901 C1
5902 A1
5903 A1
5904 H8
6200 G2
6201 G3
6202 G3
6402 A8
6901 A8
7210 D10
7211 C10
7901 C3
7902 F11
7908 E11
7910 B2
7911 C1
7912 C1
9201 C12
9203 C12
9205 E8
9206 D8
9215 G2
9225 D8
9226 D8
9228 A4
9229 A3
4V3
COMPAIR
A11-73
0V
0V
3V
-
TO
TO 1951
SIM CONN MALE
0V
A3-20
A7-37
8V1
0V
0V
9250 E5
9251 E5
9292 A3
9901 C12
9902 C12
9903 C12
9904 C12
9905 F8
9906 E2
9907 B10
9908 C3
9909 B1
9980 B1
9982 F6
9983 C10
9987 B6
+8V
A11-71
0V
1V6
A11-74
A11
0V
FM
-
2V5
5V2
0V
6V
8V1
3V
N.C.
0V
3V2
A11-64
A2-9
3V5
9988 B5
9989 B5
9990 B5
9998 I12
c001 H1
c002 H1
0V
5V
FM
0V
TO 1630
HA
NOT EUR
A11-57
1V1
0V
GND-CVBS-IN
0V
A11-59
A3-3
components with diversity
CVBS-PIP_TUN1-2-CVBS-IN
0V
CRT
SDA-S
SDA-S
0340
0V
3V5
2V7
TO/FROM
0V
VA
2V7
2V8
0V
3V5
GND-SCART-AV
A6-19
RESERVED
2V7
1V4
A11-68
8V1
4V9
5V7
3V
3V1
A8-61
NOT EUR
A11-72
A10-25
3V
2V2
0V
33V
TO
TO 1934
A3-41
A6-45
A8-58
0V
3V
A11-82
0V
3V
A3-4
GND-CVBS-OUT
1V7
3V5
*
SCL-S
5V7
A6-13
A11-67
2V3
5V
*
3V3
0V
A10-24
8V1
A11-51
2V6
SCL-S
0V
A6-2
0V
1V7
GND-RGB-CRT
0V
0V
0V
1510
A11-65
0V9
N.C.
A11-66
0V
4V9
3V5
A11-69
2V7
0V
OUT
1n
2930
9251
100K
3432
1
2
3
BC847B
7908
3428
330K
100R
3200
3903
560R
A68
2947
4u7
9901
3201
100R
11
12
13
1205
1
10
1965
1
2
2942
100n
9201
9909
1951
1
2
3
4
5
4
5
6
7
8
9
9904
10u
2200
1966
1
2
9225
9229
A69
2202
10u
5901
3904
6R8
2940
100u
1n
2931
9990
LD1086
7910
GND
IN OUT
9903
BC847B
7210
2K7
3945
100K
3429
9205
220n
1201
1
2916
330p
9905
10n
2951
c002
1935
5
1961
1
2
3
4
100n
2943
1933
1
2
3
4
1932
1
2
3910
68R
9906
6R8
3941
2941
9989
9203
A11-70
.
BZM55-C33
6200
c001
10K
3944
3939
10K
MC78M05
7912
GND
IN
10K
3929
6202
BAS316
6402
4n7
2483
6901
9215
BZX384-C5V6
2917
100n
9226
MB1
MB2
7
12131415
2
8
10
4
SCL
5
SDA
9
TU2
TEDE9
1200
1
AGC
3
AS
11
IF1
6
1
10
2
3
4
5
6
7
8
9
1937
33u
5902
5
6
560R
3940
1934
1
2
3
4
9907
A70
3938
100R
9980
10K
3943
1
2
3
4
5
100R
3942
1953
1
2
3
100R
3928
11
2
3
4
5
6
7
8
9
2496
10n
1940
1
10
2455
1n
9998
220n
2201
1K
3999
9983
3262
100R
47R
3907
9292
22K
3250
83R
5904
100n
7902
BC847B
220n
2944
2946
2u2
5903
33u
6201
2929
220n
2915
10u
1997
1
2
9982
100K
3430
9987
9250
GND-AUD
15R
3213
1K
3210
100R
3212
GND
IN OUT
7211
BC847B
9902
L78L05
7911
10u
2914
56K
3427
1936
1
10
11
2
3
100n
2918
2K2
3211
9908
1
2
3
1943
9988
1955
1948
1
2
3
2203
100u
2950
10n
100R
3261
7901
BC847B
9228
2945
2u2
71
72
73
74
75
76
77
78
79
8
80
9
58
59
6
60
61
62
63
64
65
66
67
68
69
7
70
42
43
44
45
46
47
48
49
5
50
51
52
53
54
55
56
57
28
29
3
30
31
32
33
34
35
36
37
38
39
4
40
41
14
15
16
17
18
19
2
20
21
22
23
24
25
26
27
1952
1
2
3
9206
3930
560R
R-CRT
G-CRT
B-CRT
CUTOFF
P50
G-SC1-IN_Y-IN
SEL-SVHS-RR_STATUS2
SC1-STATUS
PIP-CVBS
AGC
IF-TER
CVBS-TER-OUT
CVBS-SC1_AV1-IN
B-SC1-IN_U-IN
PIP-CVBS
+8V
SCL-S
SDA-S
+3V3
+5VA
+3V3
+8V
Y-SCAVEM
+5.2V
FBL-SC1-IN
PIP-MONO
IRQ-DIGITAL
LIGHT-SENSOR
STANDBY
TILT
DYN-FASE-COR
EHT-INFO
HFB_X-RAY-PROT
EW-DRIVE
GND
R-SC1_V-IN
FRAMEDRIVE-
FRAMEDRIVE+
GND-LINEDRIVE
LINEDRIVE1
KEYBOARD
RC
ON-OFF-LED
AUDIO-SW
AUDIO-C
AUDIO-SL
R-CL_VL-OUT
C-SC2_SVHS-IN
L-CL_VL-OUT
R-FRONT-IN
L-FRONT-IN
C-FRONT-IN
Y_CVBS-FRONT-IN
FRONT-DETECT
R-SC1_AV-OUT
R-SC1_AV1-IN
Y_CVBS-SC2_AV2-IN
R-SC2-OUT
R-SC2_AV2-IN
L-SC1_AV-OUT
L-SC2-OUT
L-SC2_AV2-IN
L-SC1_AV1-IN
SOUND-ENABLE
POR
SC2-C-OUT
C-FRONT-IN
+8VS2
PROT_AUDIOSUPPLY
+8V
HFB_X-RAY-PROT
C-FRONT-IN
C-SC2_SVHS-IN
+5V
GND
EHT-INFO
EW-DRIVE
CVBS-SC2_MON-OUT
DEGAUSSING
HEADPHONE-L
+3V3
+8V
CVBS-TER-OUT
TER-CVBS-OUT
+8V6 +8V
+11V
+11V5
+8V
+5.2V
+5V
SCL-S
AUDIO-SL
R-CL_VL-OUT
L-CL_VL-OUT
PANORAMA
+8VS
SC1-B-IN_U-IN
SC1-G-IN_Y-IN
SC1-R_V-IN
SC1-FBL-IN
VTUN
SCL-S
SDA-S
AUDIO-L
AUDIO-R
+5VT
VTUN
+11V5
HEADPH-L
HEADPH-R
HEADPHONE-R
+8VS2
+8V
CUTOFF
HFB_X-RAY-PROT
EHT-INFO
+8V
R-CRT
G-CRT
B-CRT
+11V5
+5VA
VTUN
AUDIO-SL
+5VT
+5.2V
SDA-S
G-SC1-IN_Y-IN
B-SC1-IN_U-IN
FBL-SC1-IN
+8V
CVBS-SC2_MON-OUT
SC2-CVBS_MON-OUT
PIP-MONO
TER-CVBS-OUT
R-SC1_V-IN
+8VS
+8VS
GND-AUD
GND-LINEDRIVE
GND
Y_CVBS-FRONT-IN
FRONT-DETECT
C-FRONT-IN
L-FRONT-IN
R-FRONT-IN
SDA-S
SCL-S
Y_CVBS-FRONT-IN
Y_CVBS-SC2_AV2-IN
CVBS-SC1_AV1-IN
E_13950_031.eps
120304
3139 123 5752.2

Table of Contents

Related product manuals