EasyManua.ls Logo

Philips DVDR615 - FEBE: BE Video In Processing (VIP)

Philips DVDR615
170 pages
Print Icon
To Next Page IconTo Next Page
To Next Page IconTo Next Page
To Previous Page IconTo Previous Page
To Previous Page IconTo Previous Page
Loading...
EN 114DVDR615/69 7.
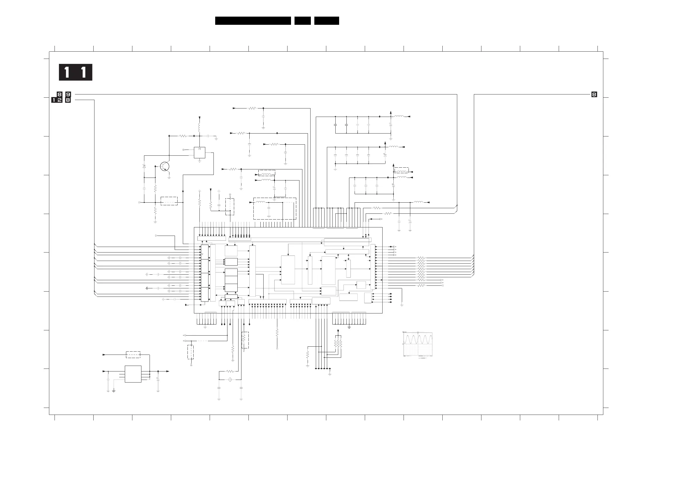
Circuit Diagrams and PWB Layouts
FEBE: BE Video In Processing (VIP)
Y
OIDUA
COMP
DELAY
SWITCH
FAST
VIDEO
LORTNOC TUPTUO REDOCED
BOUNDARY
SCAN
TROP-I RETTAMROF TUPTUO
1ST TASK IIC REG MAP SCALER
SCALER EVENT CONTROLLER
VIDEO/TEXT
ARBITER
RAW
S
Y
S
C
CLK
GPO
XTAL
S
S
Y
CR
CB
CB
CR
YCBCR
RCBCY
SRCBCY
CBCR
CBCR
RAW
RELACS-SCB
VDDA
VDDE VDDI
VSSA
VSSE
VSSI
IIC REGISTER MAP
R
COMB
PROC
CHROM
PROC
KLC
H-PORTX-PORT
2ST TASK IIC REG MAP SCALER
SYNC
PROC
LUM
FIL
LORTNOC TUPNI GOLANA
AD-PORT
CONTROL
1GOLANA
1CDA +
TEXT
FIFO
VBI DATA
SLICER
1GOLANA
1CDA +
OFIF OEDIV
GNILACS LACITREV
-ENIF LATNOZIROH
GNILACS )-ESAHP(
REFFUB OFIF ENIL
RETLIFERP-RIF
RELACSERP
1GOLANA
1CDA +
1GOLANA
1CDA +
G
B
NC
GND
IN VOUT
NC VOUT
VOUT
VOUT
I001 B9
I002 B6
I003 B3
I004 B4
I005 C6
I006 C9
I007 C3
I008 C5
I009 C9
I010 D6
I011 E9
I012 E9
I013 G9
I014 G9
I015 G9
I016 G4
I017 G9
I018 G5
I019 G5
I020 G5
I021 G5
I022 G6
I023 H7
I024 H7
I025 H7
I026 H7
I027 H7
I028 H8
I029 H3
I030 D4
3084-2 F10
3084-3 F10
3084-4 F10
3085-1 F10
3085-2 F10
3085-3 F10
3085-4 F10
4005 D3
4006 D5
4007 H4
4008 H4
4010 H3
4011 D7
5011 B6
5012 B9
5013 B4
5014 B5
5015 C6
5016 C9
5017 C5
5018 D9
5019 D6
5020 C9
5021 D6
5022 D10
5023 C6
6001 C3
7005 C4
7006 C3
7007 E4
7008 H3
I000 B6
1002 I5
2036 B6
2045 B8
2046 B8
2051 B8
2055 B9
2062 B9
2063 C4
2064 C5
2065 C6
2066 C8
2067 C8
2068 C8
2069 C9
2070 E9
2071 E10
2073 C9
1 2 3 4 5 6 7 8 9 1011121314
123456789
10 11 12 13 14
A
B
C
D
E
F
G
H
I
A
B
C
D
E
F
G
H
I
2074 D5
2075 D8
2076 D8
2077 D9
2081 D9
2082 D3
2083 D6
2084 D6
2085 D5
2086 F4
2087 F4
2088 F4
2089 F3
2090 F4
2091 F4
2092 F3
2093 F4
2094 G3
2095 I5
2096 I5
2097 I2
2098 I3
2099 D6
3062 B4
3063 D3
3064 D4
3065 D9
3066 D4
3067 D9
3068 D3
3069 F10
3070 F10
3071 H6
3072 H8
3073 H8
3074 H8
3075 H5
3076 I5
3077 H7
3083 H5
3084-1 F10
SAA7119E
OPTION
NOITPO
OPTION
OPTION
OPTION
NOITPO
NOITPO
OPTION
SAA7118E
4603
2K2
I016
100R
3067
8603
0K1
4005
5703
7K4
5014
100R
6302
n001
100R
5011
u74
8902
K01
1703
n001
7702
5018
7u4
1802
5016
7u4
3702
R086
3603
2063
100n
I010
I001
I002
I008
I005
5502
n001
6602
n001
n001
6702
5702
n001
5902
p81
4802
n001
5019
7u4
3802
01BS67SP1
1006
1R0
3076
3062
680R
820I
620I
n001
4602
320I
K01
420I
4703
K01
3703
2703
K01
ILATX
TUOTX2A
IRTX11B
4DPX
5DPX01B
6DPX11A
7DPX11C
YDRX6A
HRX7C
VRX8D
LATX3A
4B
DDXV
4A
SSXV
KLCX7A
QDX7B
0DPX8A
1DPX8B
2DPX9A
3DPX9B
01A
11G
4L
8L
11L
7D
01D
11F
11J
5L
9L
3B
5M
9M
2M
4J
3H
4E
1C
5D
9D
11D
5C
9C
21D
21H
4M
8M
11M
8C
01C
21F
21J
NTSRT
3M
4K
1L
A1ADDV
4H
1J
A2ADDV
4F
2G
A3ADDV
4D
2E
A4ADDV
0TSET
31D1TSET
41C2TSET
31A3TSET
21B4TSET
21A5TSET
SMT6D
6C
0TSR01M
1TSR01N
OCTR01L
9NLCS
01PADS
KCT6B
IDT5B
ODT5A
31P
3SER
3C
4SER
4C
5SER
21C
6SER
31C
7SER
1N
8SER
2N
9SER
5PNOSER
2CLL5N
2B
1SER
3N
01SER
31N
11SER
41N
21SER
2P
31SER
31B
2SER
41B
L14IGP0
K13IGP1
K12IGPH
K14IGPV
9PA_TNI
N12ITRDY
L12ITRI
CLL4P
G12IDP1
H11IDP2
H14IDP3
H13IDP4
J14IDP5
J13IDP6
K11IDP7
L13IDQ
2DPH31E
3DPH21E
4DPH41E
5DPH31F
6DPH41F
7DPH31G
M14ICLK
G14IDP0
E1 A|44
D3 A|4D
4NEC
6NTXEKLC
3P
RLCMXE
M13 FSW
0DPH41D
1DPH11E
A|31
F2 A|32
F3 A|33
G1 A|34
F1 A|3D
B1 A|41
D2 A|42
D1 A|43
A|13
L3 A|14
K3 A|1D
G4 A|21
G3 A|22
H2 A|23
J3 A|24
H1 A|2D
E3
ADNGA
P12ALRCLK
P11AMCLK
M12AMXCLK
M1 AOUT
N11ASCLK
J2 A|11
K1 A|12
K2
2PDA
7L3PDA
7P4PDA
7N5PDA
6L6PDA
6M7PDA
6P8PDA
2C
DNGA
2L
7007
8N0PDA
8P1PDA
7M
3069
22R
R86
3803
I012
2093 100n
I017
n001
4702
5017
100R
5602
n001
100R
5015
2088 100n
100n2087
910I
810I
K01
7703
n001
1502
6402
n001
n001
2
3
6
7
5402
7008
LD1117D33
1
4
5
8
9902
n001
p051
2802
4011
BC847B
7006
1
2
53
4
7005
74LVC1G32
5802
0n1
I003
3105
I009
18
I006
5
100R
3085-1
3084-4
100R
4
100R
3084-3
36
100R
18
100R
3084-2
27
3084-1
I000
p81
6902
4010
I029
100n2092
I015
I013
720I
2089 100n
100n2090
520I
100n2086
2094 100n
220I
100n2091
120I
020I
1002
24M576
7902
n001
V537u4
1702
5012
2602
7u4
8602
n001
n001
7602
9602
n001
I011
6603
7K4
5020
030I
I014
3065
100R
6004
I007
45
I004
36
3085-4
100R
7
100R
3085-3
3085-2
100R
2
3070
4K7
8004
4007
0702
n001
5022
5023
+5Vdig
+3V3dig
KLC_4931
+1V8
+1V8
+1V8
+3V3dig
+3V3dig
5021
ITU_IN(3)
ITU_IN(4)
ITU_IN(5)
ITU_IN(6)
ITU_IN(7)
ITU_IN(7:0)
VIP_FID
{SCL0,SDA0}
{CVBS_Y_IN_A,CVBS_Y_IN_B,CVBS_Y_IN_C,C_IN_VIP,G_IN_VIP,Y_IN_VIP,B_IN_VIP,U_IN_VIP,R_IN_VIP,V_IN_VIP}
VIP_ERROR
ATNI_PIV
VDDI_7118
nTESER_PIV
VDDE_7118
VIP_IGP1
VIP_FB
+3V3dig
+3V3_VIP
+3V3_VIP
PNX7100_HS_IN
PNX7100_VS_IN
PNX7100_ITU_IN_CLK
PNX7100_ITU_IN_VAL
ITU_IN(0)
ITU_IN(1)
ITU_IN(2)
+3V3dig
CVBS_Y_IN_A
CVBS_Y_IN_B
CVBS_Y_IN_C
C_IN_VIP
G_IN_VIP
Y_IN_VIP
B_IN_VIP
U_IN_VIP
R_IN_VIP
V_IN_VIP
VIP_INTA
VDDX_7118
VDDA4A_7118
VDDA3A_7118
VDDA2A_7118
VDDA1A_7118
+3V3_VIP
+3V3dig
+3V3_VIP
+3V3_VIP
+3V3_VIP
+3V3_VIP
SDA0
SCL0
CVBS_OUT_B_VIP
VIP_IGP1
MPIO5_VIP_ERROR
VDDE_7118
VDDA_7118
VDDE_7118
VDDI_7118
TR20044_001.eps
14062004
XTAL 1002
http://www.jdwxzlw.com/?fromuser=华盛维修
家电维修资料网,免费下载各种维修资料

Table of Contents

Other manuals for Philips DVDR615

Related product manuals