EasyManua.ls Logo

Philips EM5.1E - Top Control Panel

Philips EM5.1E
134 pages
Print Icon
To Next Page IconTo Next Page
To Next Page IconTo Next Page
To Previous Page IconTo Previous Page
To Previous Page IconTo Previous Page
Loading...
100EM5.1E 7.
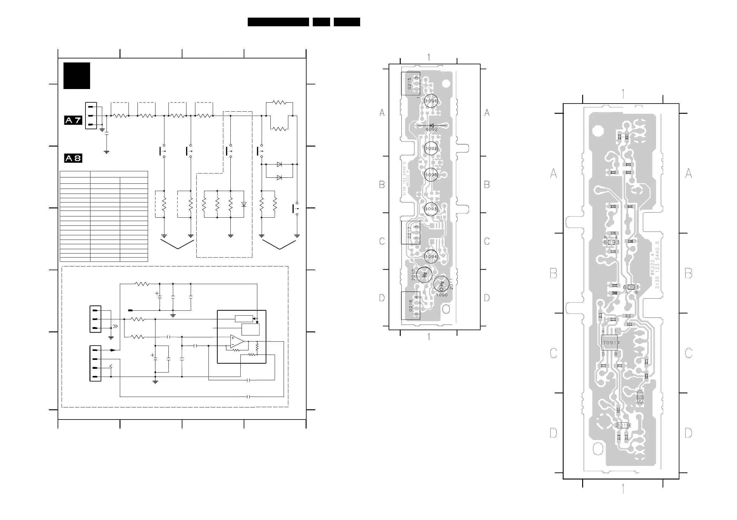
Circuit Diagrams and PWB Layouts
Top Control Panel (PV2 Styling)
MIC V+
444E
13.7K
EXT
MIC V+
AMP
100K
TOP CONTROL PANEL
C+
C-
V+
V-
TO 0215
OF
FRONT
(LSP)
PLUG&PLAY
MENU
MICROPHONE
N.C.
N.C.
RES
RES
*
*
*
*
*
*
**
**
*
MENU BUTTON FOR
620R
2K
RES
VOICE CONTROL
4 Keys 5 Keys
Painter based Painter based ArtistIC based
2010
3091
3092
3093
3094
3095
3096
4090
4089
6091
1091
1092
1093
1094
2010
3091
3092
3093
3094
3095
3096
4090
4089
6093
1091
1092
1093
1094
3097
3098
4091
4092
4093
4094
3090
3089
3088
3087
3086
1091
1092
1093
1094
1095
1095
(RES)
5 KEYS CONFIGURATION
(A10)
TO 1945 OF
OR
FRONT
(EM1)
1 2 3 4
1 2 3 4
A
B
C
D
E
A
B
C
D
E
0215 A1
0216 E1
0217 D1
1090 D2
1091 B2
1092 B3
1093 B4
1094 B4
1095 B3
2010 A1
2011 D2
2012 D2
2013 E2
2014 E3
2015 E2
2016 E3
2017 E4
2018 E4
2019 D3
2020 E2
3010 D2
3011 D2
3012 E2
3086 A4
3087 B4
3088 B3
3089 B3
3090 B2
3091 A1
3092 A2
3093 A2
3094 A3
3095 A4
3096 B4
3097 B3
3098 B3
4089 B2
4090 B2
4091 A2
4092 A2
4093 A2
4094 A3
6091 B4
6092 B4
6093 B3
7091 D3
0217
1
2
3
10n
2010
6091
BAT254
1
RT-01T
1090
3087
200R
3086
390R
3088
3089
1K1
4089
4090
3090
4093 40944091 4092
2020
2019
3098
3K3
BAT254
6093
3097
1K5
6092
BAT85
1095
2017
1u
2014
1n
1u
2018
2012
100n
47u
2011
4R7
3010
47u
2015
3 VIN+
5 VIN-
100n
2013
1n
2016
NJM2110M
7091
6
AMPNFB
7AMPOUT
2 EXTMICV+
4
GND
1 MICV+
8
V+
470R
3012
0216
1
2
3
4
1K8
3011
1K5
3096
270R
3094
3K3
3095
3093
560R
560R
3091
390R
3092
0215
1
2
3
1094
10931091
1092
GND
3V3
OUT1
P
CL 36532017_033.eps
230403
3139 123 54405
Layout Top Control Panel
(PV2 Styling) (Top Side)
Layout Top Control Panel
(PV2 Styling) (Bottom Side)
0215 A1
0216 D1
0217 C1
1090 D1
1091 A1
1092 A1
1093 B1
1094 C1
1095 B1
2011 D1
2015 D1
6092 A1
CL 36532017_037.eps
140403
3139_123_5440.5
2010 A1
2012 C1
2013 C1
2014 C1
2016 C1
2017 C1
2018 D1
2019 D1
2020 D1
3010 D1
3011 C1
3012 C1
3086 B1
3087 B1
3088 A1
3089 A1
3090 A1
3091 A1
3092 A1
3093 A1
3094 A1
3095 B1
3096 B1
3097 B1
3098 B1
4010 C1
4011 D1
4089 A1
4090 A1
4091 A1
4092 A1
4093 A1
4094 A1
6091 B1
6093 B1
7091 C1
CL 36532017_038.eps
230403
3139_123_5440.5

Related product manuals