EasyManua.ls Logo

Philips EM5.1E - DC Shift Panel

Philips EM5.1E
134 pages
Print Icon
To Next Page IconTo Next Page
To Next Page IconTo Next Page
To Previous Page IconTo Previous Page
To Previous Page IconTo Previous Page
Loading...
90EM5.1E 7.
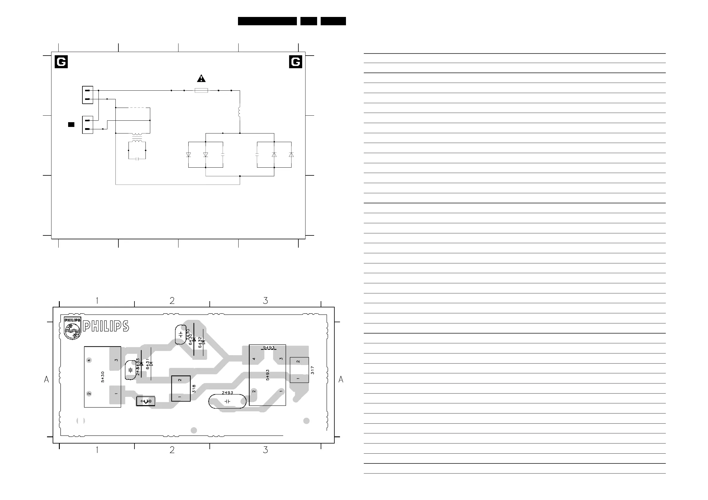
Circuit Diagrams and PWB Layouts
DC Shift Panel
Layout DC Shift Panel
317 B1
C
B
40
1234
A
DC-SHIFT
TO 1419
DAF
N.C.
6433 B4
6432 B3
6431 B4
6430 B3
5493 B2
5430 A3
318 A1
1430 A3
2430 B3
2431 B4
2493 B2
1
2
43
9493
5493
CU15
68n
2493
BY228/20
6431
BYD33V
6433
2431
470p
6432
BYD33V
470p
2430
6430
BY228/20
2
MP
400mA
1430
5430
1
2
317
1
318
CL 26532041_034.eps
180402
I
CL 26532041_049.eps
180402
317 A3
318 A2
1430 A2
2430 A2
2431 A1
2493 A3
5430 A1
5493 A3
6430 A2
6431 A2
6432 A2
6433 A2
9493 A3
PersonalNotes:

Related product manuals