EasyManua.ls Logo

Philips EM5.1E - Page 91

Philips EM5.1E
134 pages
Print Icon
To Next Page IconTo Next Page
To Next Page IconTo Next Page
To Previous Page IconTo Previous Page
To Previous Page IconTo Previous Page
Loading...
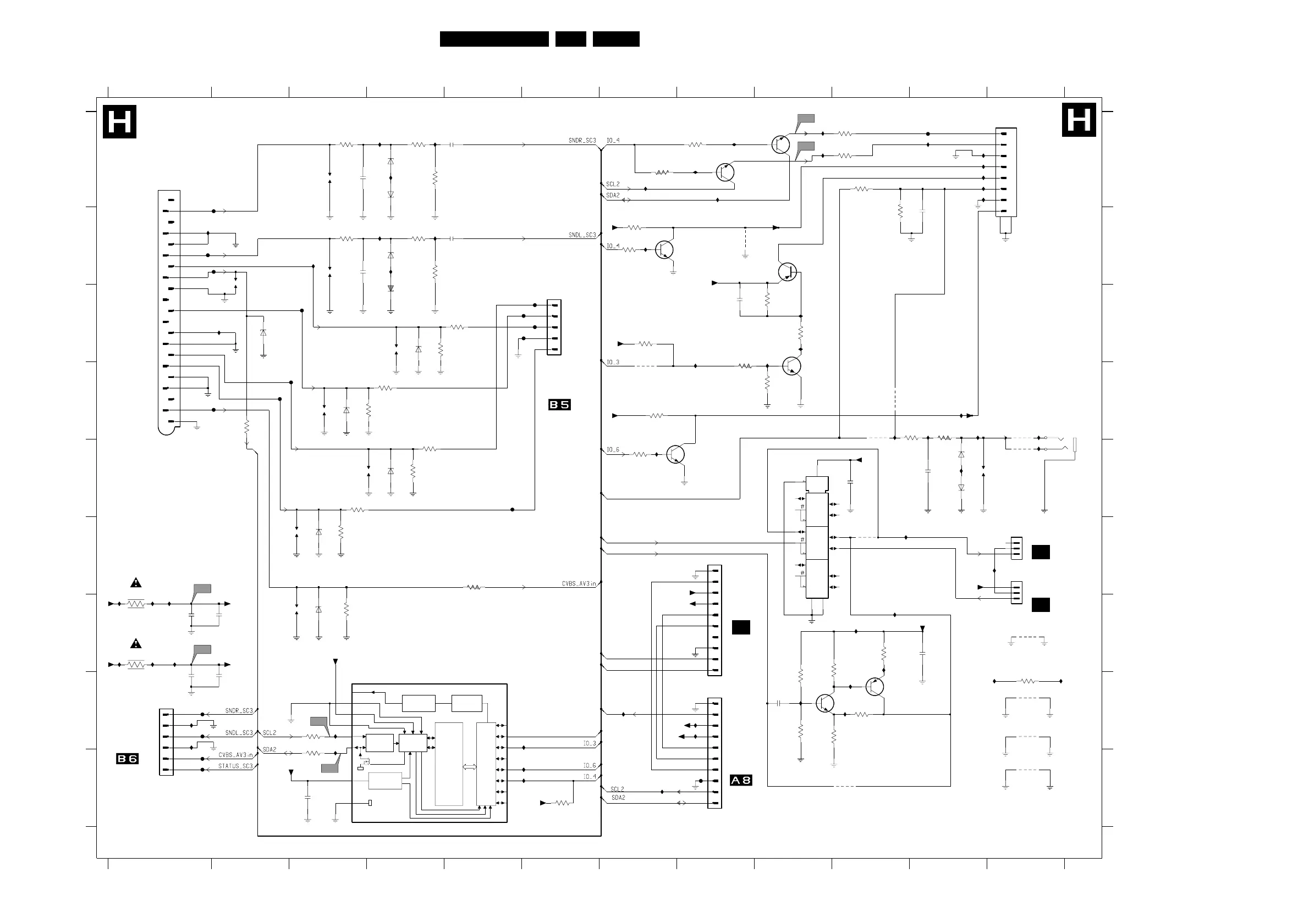
Circuit Diagrams and PWB Layouts
91EM5.1E 7.
I/O 3rd Scart
MUXDX
INTERRUPT
LOGIC
LP FILTER
INPUT
FILTER
I
2
CBUS
CONTROL
POWER-ON
RESET
I/O
PORTS
SHIFT
REGISTER
8 BIT
8910
I/O 3rd SCART
789101112
A
B
C
D
E
F F
1 234567
I/O EXPANDER
1505 F3
1506 E3
1507 D3
1508 C4
1680 H1
1690 A12
1937 H8
1952 F12
11
2509 B3
2510 H9
2511 G11
2513 E11
2514 I3
2515 C8
2516 E10
2517 B11
3500 G1
3501 A3
3502 A4
3503 A7
G
1339 E12
1402 C6
1500 A3
1501 B2
1502 B3
1503 E11
1504 G3
G
H
I
1201 F8
1272 F12
3512 F5
3513 A10
3514 A10
3515 D7
3516 E7
3517 D11
3518 D11
3519 C7
3520 H3
3521 I3
3522 C9
1992 A1
12
1 23456
3531 H9
3532 G10
3533 G3
3534 H9
3535 H10
3538 C5
3539 C4
3540 D4
3541 D3
3542 E4
3543 E4
3544 E3
3545 F3
3546 I6
3999 H12
6500 A4
6501 A4
3504 A4
H
I
A
B
C
D
E
STATUS_SC3
1680
6511 E4
6512 F3
7501 H3
7502 A8
7503 A9
7504 B7
7505 E8
7506 B9
7507 D9
7508 H10
7509 H10
7515 E9
3523 C9
2500 A5
2502 H1
2503 H2
2504 A3
2506 G1
2507 G2
2508 B5
AUDIO_SL_S_TM
9525 G12
9530 H12
9532 H12
9533 I12
F500 A2
F501 B1
F502 B2
F504 A11
F511 D2
F512 H1
F514 H1
F516 I1
F518 I1
F525 I8
6502 B4
3505 G1
3506 A8
3507 B3
3508 B4
3509 B4
3510 B7
3511 B7
FROM
SURROUND JACK
I500 G1
I501 G1
I502 H7
I503 A4
I504 B1
I505 A4
I506 G1
I507 A8
I508 A4
I509 A11
I510 G1
I511 G1
9501 D7
3524 D8
3525 D9
3526 D2
3527 A10
3528 B10
3529 H9
3530 G9
FROM / TO
15V
I521 B7
I522 A11
I523 D11
I524 I6
I525 E7
I526 I7
I527 D11
I528 E11
I529 H3
I530 H3
I531 I6
I532 C9
I533 C9
I534 H6
I535 C9
I536 H9
I537 H1
F531 C6
6503 C4
6504 E11
6505 E11
6506 G3
6507 C2
6509 C4
6510 D3
TUNER /
SIM CONNECTOR
1937
TRANSMITTER
I546 H8
I547 H12
I548 H12
I549 B3
I552 D10
I553 D12
I554 E12
I561 A9
I562 A9
I563 G10
I564 H10
I512 G1
9502 B8
9503 D10
9504 D10
9505 F10
9506 I10
9509 D12
9510 E12
3rd
SCART
OF
I538 H1
F532 C3
F533 C6
F534 C6
F535 C6
F536 D3
F537 D2
F539 E5
TO WIRELESS
I566 G10
I567 F10
I568 F12
I565 H10
I513 A11
I514 A8
I515 A11
I516 B4
I517 A11
I518 B4
I519 B4
I520 A11
+8V
I539 G10
I540 H8
I541 A7
I542 D11
I543 A8
I544 C8
I545 C2
TO 1402
TO
0201
PIP
OF
I535
I515
1500
F525
BC847B
7502
6507
BZX284-C12
I537
1K0
3507
1
10
2
3
4
5
6
7
8
9
I514
1
2
3
1201
I540
S3B-EH
1952
I508
3509
22K
I523
100n
2516
GND_AUD_SC
+5V_IO
+5V_IO
F511
GND
GND_VID
I544
F533
75R
100R
3545
GND_VID1
GND_VID
3542
6501
BZX284-C6V8
H5
GND
GND_AUD
GND
H6
150R
3518
I521
F532
I518
I530
I546
3521
100R
I554
I527
I503
F535
GND_VID
GND_VID
GND_VID
+8V
3517
150R
I563
I539
I522
GND_AUD
GND_VID
GND_VID
F504
I545
6510
BZX384-C6V8
F502
I500
9525
9533
GND_VID
I2C_MUTE
+5V
6502
BZX284-C6V8
BC847B
6K8
3508
7503
BC857B
7509
2511
100n
F518
100R
3544
F514
I526
F501
GND_VID
GND_VID
1680
1
2
3
4
5
6
+5V_IO
BZX284-C6V8
6503
H1
100R
3512
I561
I562
G3
6
GND
8
VCC
16
VEE
7
11
10
9
7515
74HC4053
1y0
12
1y1
13
14
2y0
2
2y1
1
15
3y0
5
3y1
3
4
GND
GND
I529
I547
GND_VID
I528
F537
I525
3526
100R
3541
75R
BZX384-C6V8
6512
9510
I553
4K7
3523
+5V_IO
GND_AUD
10K
3519
+5V
9530
1K0
33K
3530
9506
3529
GND
+5V_IO
10K
3510
22K
F536
3504
BZX384-C6V8
6506
I513
I509
GND_VID
I524
3501
1K0
GND_VID
GND_VID
GND_AUD_SC
F531
PILOT_MUTE
3532
1K0
1K0
3535
GND_VID
GND_VID1
GND_VID
I538
I520
I542
F534
GND_AUD_SC
I507
+11V_IO
1
10
2
3
4
5
6
7
8
9
P0
5
P1
6
P2
7
P3
9
P4
10
P5
11
P6
12
P7
14
SCL
15
SDA
16
VDD
8
VSS
1937
PCF8574T
7501
1
A0
2
A1
3
A2
13
INT_
4
3514
100R
3513
100R
I533
I534
+11V
3528
470R
GND_AUD
+5V_IO
GND
7504
BC847B
GND_VID
GND
GND_VID
I517
9509
GND
3543
75R
I567
9501
100K
BZX284-C6V8
6500
3516
100R
3538
1K0
3999
+11V
9502
GND_VID
I519
+11V_IO
GND_VID
GND
+8V
GND
GND
GND_VID
7508
BC847B
3531
470R
F512
I566
3540
100R
3
I531
I532
YKB21-5157
1339
1
2
3502
6K8
6
7
8
9
75R
3533
12
13
14
15
16
17
18
19
2
20
21
3
4
5
1992
1
10
11
I549
I541
GND
3520
100R
H2
2514
100n
GND_AUD_SC
GND
2510
100n
I512
I543
F539
I568
1508
6511
BZX384-C6V8
I564
+8V
100p
2509
GND
GND_AUD_SC
3511
100K
9532
GND
I502
GND
GND_VID
I501
100K
3515
I505
2508
680n
GND
BC847B
7505
100p
2504
Res
10n
2515
10K
3522
3534
82K
GND
1504
2517
220p
2513
GND_AUD
1
2
3
220p
S3B-EH
1272
1R5
3500
I504
BC847CW
7507
Res
47K
3525
I511
10K
3506
GND_VID
1505
1501
GND_AUD_SC
I548
GND
1502
I536
9504
100n
2506
I506
I516
3527
22K
PH-S
1
2
3
4
5
GND_VID
7506
BC807-40
1402
2503
1n0
GND_AUD
BZX384-C6V8
6509
GND
1K0
3546
5
6
7
8
+5V
GND
GND_AUD_SC
1690
910
1
2
3
4
100K
H3
3524
+5V_IO
10K
3503
BZX284-C6V8
65046505
BZX284-C6V8
GND
GND_AUD
100p
2507
100n
2502
GND_VID
3505
1R5
I552
GND_VID
1503
2500
680n
9503
F516
H4
75R
3539
9505
1506
I565
1507
F500
CVBS_AV3in
I510
AUDIO_SL_TM
OISW
FBL
R
G
B
SND_Lin
CVBSin
SND_Rin
SDA2
SCL2
AUDIO_SL_TM
SCL2_TM
SDA2_TM
OISW
8204_000_6582.3
CL 36532017_032.eps
140403
C3
TO
0272
PIP
C3
TO
1952
A8

Related product manuals