EasyManua.ls Logo

Philips Q552.2L - Page 140

Philips Q552.2L
203 pages
Print Icon
To Next Page IconTo Next Page
To Next Page IconTo Next Page
To Previous Page IconTo Previous Page
To Previous Page IconTo Previous Page
Loading...
EN 140Q552.2L LA 10.
Circuit Diagrams and PWB Layouts
2012-Mar-16
back to
div. table
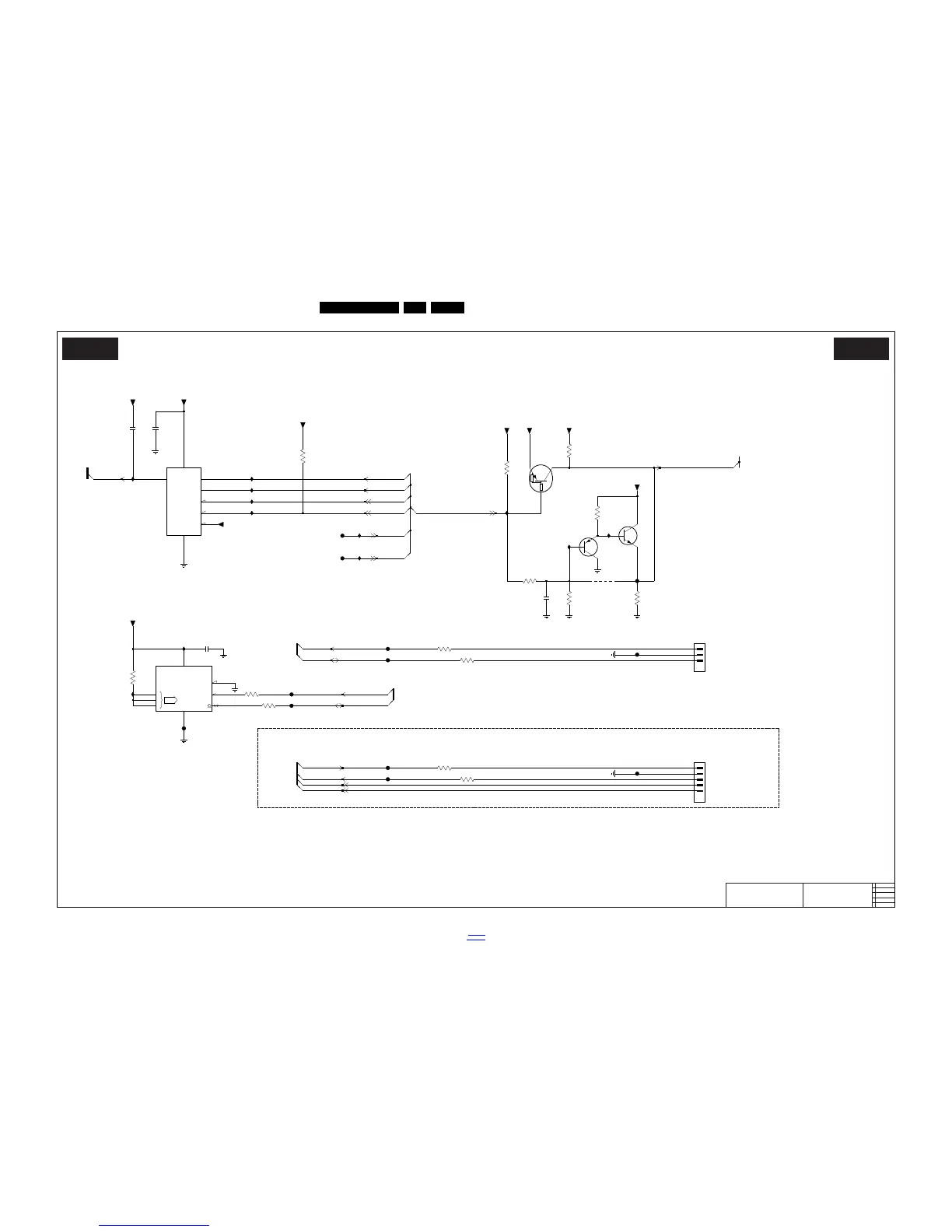
10-14-5 PNX85500 Control
19112_006_110628.eps
110628
PNX85500 Control
B01E B01E
2011-05-10
4
2011-03-09
3
2010-12-23
2
3139 123 6521
SPB SSB TV550
2K11 4DDR BR SD
SCL
ADR
0
1
2 SDA
WC
D
C
S
W
HOLD
VSS
Q
VCC
UP
DEBUG / RS232 INTERFACE
FOR
SCL
USE ONLY
LEVEL
DEBUG
MAIN NVM
SDA
SHIFTED
DEBUG ONLY
2F49
100p
100n
IF61
IF50
RES
2F58
IF57
100R
3F64
FF62
FF61
+3V3-STANDBY
+3V3-STANDBY
RES
100n
2F52
2
3
4
5
+3V3
1F52
RES
1
3F59
RES
PDTA114EU
7F53
3F60
100R
100R
3F67
FF57
10K
IF54
100R
3F65
10K
3F66
+5V
RES
47K
3F68
IF58
RES
7F52
M25P05-AVMN6
FLASH
512K
Φ
6
5
7
2
1
84
3
7F54-2
BC847BPN(COL)
5
3
4
+3V3
7
RES
(8K × 8)
1
2
3
6
5
84
Φ
EEPROM
7F58
3F63
+3V3
100R
10K
3F52
IF56
IF55
FF56
9CH0
10K
3F69
FF55
RES
IF52
FF66
FF29
FF04
IF51
3F54
1K0
IF53
RES
FF65
RES
1u0
2F53
FF64
3F53
5
67
10K
RES
1
2
3
4
3F58
10K
1F51
3F62
100R
FF63
IF59
+3V3-STANDBY
+3V3-STANDBY
2
6
1
RES7F54-1
BC847BPN(COL)
FF58
+3V3
IF62
PNX-SPI-SDO
PNX-SPI-CLK
RXD-UP
TXD-UP
SDA-SSB
SCL-SSB
SCL-UP-MIPS
SDA-UP-MIPS
PNX-SPI-WPn
PNX-SPI-CSBn
PNX-SPI-SDI
BOOST-PWM
SPI-PROG
RESET-STBYn
SDM
SPI-PROG
BACKLIGHT-BOOST

Table of Contents

Related product manuals