EasyManua.ls Logo

Philips Q552.2L - B02 313912365214

Philips Q552.2L
203 pages
Print Icon
To Next Page IconTo Next Page
To Next Page IconTo Next Page
To Previous Page IconTo Previous Page
To Previous Page IconTo Previous Page
Loading...
Circuit Diagrams and PWB Layouts
EN 147Q552.2L LA 10.
2012-Mar-16
back to
div. table
10.15 B02 313912365214
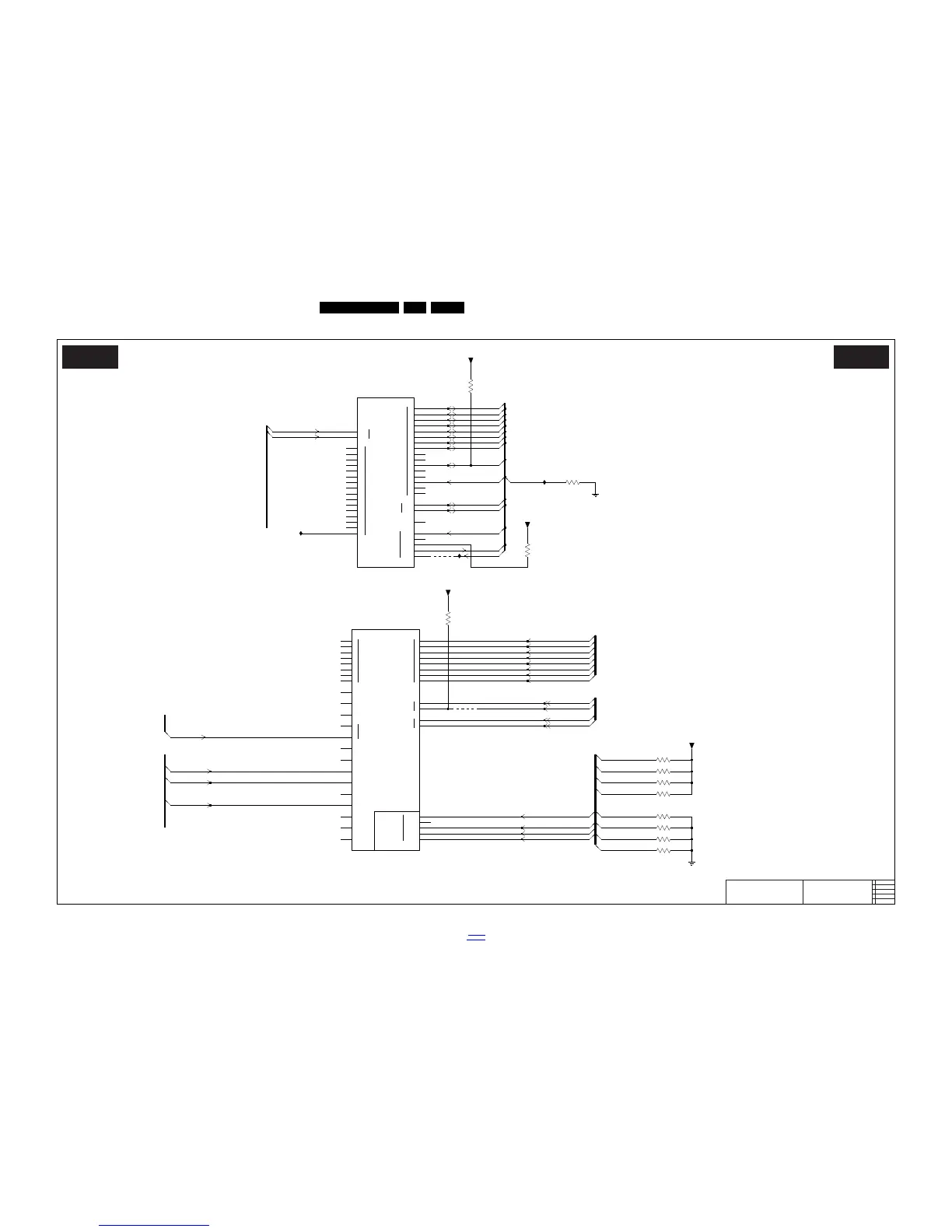
10-15-1 NANDflash - conditional access
19112_013_110628.eps
110628
PNX85500: NANDflash - conditional access
B02A B02A
2011-03-09
3
2011-05-10
4
2010-12-23
2
3139 123 6521
SPB SSB TV550
2K11 4DDR BR SD
NAND
XIO_A
XIO_D
XIO
NAND
07
08
09
10
11
12
13
14
15
OE_
WE_
CLK_BURST
WP_
RDY1
RDY2
CE2_
CE1_
00
01
02
03
04
05
06
CLE
00
01
02
03
04
05
06
07
08
09
10
11
12
13
14
15
ALE
MDI
MCLK
MDO
TNR_SER1
VS
CD
CA
DATA
ERR
MICLK
MIVAL
SOP
0
1
2
3
4
5
6
7
1
2
1
2
VPPEN
0
1
2
3
4
5
6
7
ADD_EN
DATA_DIR
DATA_EN
I
O
MISTRT
MIVAL
MOSTRT
MOVAL
OOB_EN
RDY
RST
VCCEN
TS-FE-ERR
470R
3S23
3S1R
560R
560R
3S1S
IS26
560R
3S1U
RES
9S00
RES
10K
3S1V
RES
3S1T
560R
470R
3S28
IS25
RES
+3V3
IS00
+3V3
+3V3
3S1X
10K
3S1W
10K
3S24
470R
+3V3
9S08
L26
J23
J24
K23
K24
T21
T23
T22
R23
R22
M23
M24
M25
M26
L21
N24
N25
L22
L23
J21
L24
P22
P23
P24
P25
P26
N21
N22
N26
M21
M22
J22
K21
K22
K25
K26
N23
L25
P21
E26
D24
B22
C22
7S00-11
PNX85500
VIDEO_STREAM
D23
C23
B23
A22
E22
F24
F25
F26
E23
E24
E25
G22
G23
G24
G25
G26
F22
F23
D25
D26
C24
A20
A21
J25
J26
H21
H22
H23
H24
H25
H26
G21
FLASH
B21
D22
E21
D21
C21
F21
7S00-5
PNX85500
3S29
470R
RES
10K
3S15
TS-FE-CLOCK
TS-FE-VALID
TS-FE-SOP
INPACK INPACK
XIO-D10
CA-MOCLK
XIO-D00
XIO-D01
XIO-D02
XIO-D03
XIO-D04
XIO-D05
XIO-D06
XIO-D07
XIO-OEn
XIO-WEn
CA-RDY
NAND-ALE
NAND-CLE
NAND-CE1n
NAND-RDY1n
NAND-WPn
TS-FE-DATA
TS-FE-CLOCK
TS-FE-VALID
TS-FE-SOP
TS-FE-DATA
TS-FE-DATA
TS-FE-CLOCK
TS-FE-SOP
TS-FE-VALID
CA-MDO0
CA-MDO1
CA-MDO2
CA-MDO3
CA-MDO4
CA-MDO5
CA-MDO6
CA-MDO7
CA-MOVAL
CA-MOSTRT
CA-CD1n
CA-CD2n
CA-VS1n
CA-MOCLK

Table of Contents

Related product manuals