EasyManua.ls Logo

Philips TPM10.1E LA - Page 63

Philips TPM10.1E LA
223 pages
Print Icon
To Next Page IconTo Next Page
To Next Page IconTo Next Page
To Previous Page IconTo Previous Page
To Previous Page IconTo Previous Page
Loading...
IC Data Sheets
EN 63TPM10.1E LA 8.
2014-Jul-18
back to
div.table
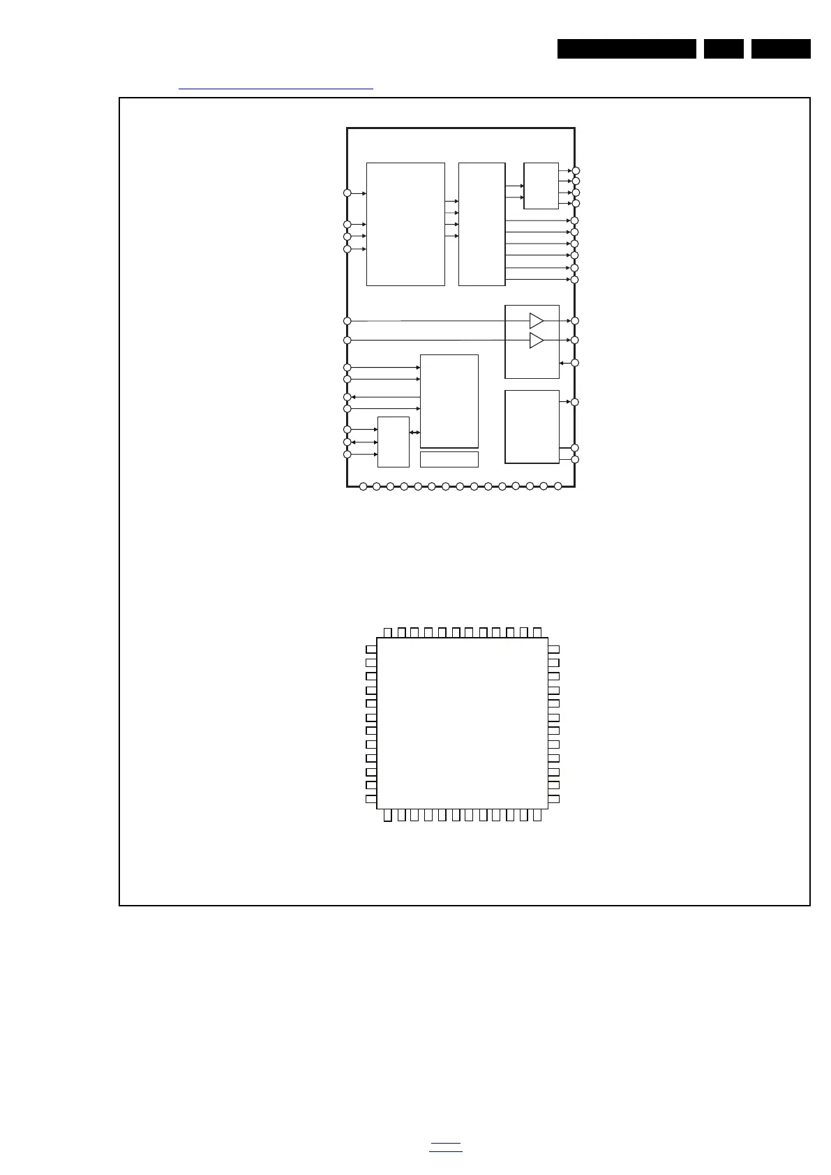
8.9 Diagram 10-9-6 Speaker/Sound woofer B06, STA381BWTR (IC U602)
Figure 8-11 Internal block diagram and pin configuration
1
2
3
4
5
6
7
8
9
10
11
12
36
35
34
33
32
31
30
29
28
27
26
25
VCC_REG
VSS_REG
OUT2B
GND2
VCC2
OUT2A
OUT1B
VCC1
GND1
OUT1A
VDD_REG
GND_REG
MCLK
AGNDPLL
VREGFILT
TWARNEXT/FFX4B
EAPD/FFX4A
FFX3B
FFX3A
GNDDIG1
VDDDIG1
VDD3V3CHP
CPP
GNDPSUB
13
14
15
16
17
18
19
20
21
22
23
24
48
47
46
45
44
43
42
41
40
39
38
37
F3X_FILT
F3XL
F3XR
LINEINL
LINEINR
LINEHPOUT_L
LINEHPOUT_R
GNDA
SOFTMUTE
VDD3V3
CPVSS
CPM
VDDDIG2
GNDDIG2
TESTMODE
SA
SCL
SDA
INTLINE
PWDN
RESET
SDI
LRCKI
BICKI
STA 381BW
PWDN
TESTMODE
LRCKI
BICKI
4
Half
Bridges
OUT 1A
OUT 1B
OUT 2A
OUT 2B
FFX3A
FFX3B
MCLK
SDI
LINEINL
LINEINR
LINEHPOUT_L
LINEHPOUT_R
SDA
SCL
IIC
CPVSS
CPP
FFX4A
FFX4B
GND_REG
SOFT_MUTE
2 x GND
2 x VCC
VDD_REG
GNDPSUB
2 x VDDDIG
2 x GNDDIG
VREGFILT
AGNDPLL
VCC_REG
VSS_REG
CPM
2.1 Channel
Audio Processor
STAudioFx
TM
STSpeakerSafe
TM
Parametric EQ
Volume
Bass and Treble
Speaker Compensation
Stereo Widening
SA
RESET
INTLINE
GNDA
Headphone
(2Vrms)
PLL
Negative
Charge
Pump
-3.3V
Control logic
&
Protections
REG_M3
VDD3V3CHP
F3X_FILT
FFX
TM
Modulator
Binary
Ter nary
F3XL
F3XR
STA381BW

Table of Contents

Related product manuals