EasyManua.ls Logo

Pit Boss 700FB - Diagramme de Fil Électrique

Pit Boss 700FB
92 pages
Print Icon
To Next Page IconTo Next Page
To Next Page IconTo Next Page
To Previous Page IconTo Previous Page
To Previous Page IconTo Previous Page
Loading...
FRANÇAIS
53
INDEX
  
  
  
  
  
  
  
   
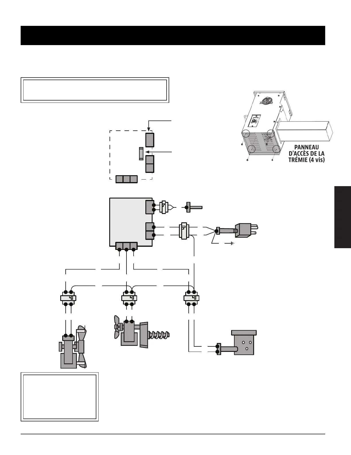
Le panneau de commande numérique est un matériel technologique hautement sophistiqué et de grande valeur. Pour une
protection contre les surtensions et les courts-circuits électriques, consultez le schéma de fil ci-dessous pour vous assurer que
votre source d'alimentation est suffisante pour le fonctionnement de l'appareil.
PB – EXIGENCES ÉLECTRIQUES
110-120V, 60HZ, 275W, FICHE À 3 BROCHES MISE À LA TERRE
REMARQUE : Les composants électriques, passés par les tests de sécurité des produits et les
services de certification, sont conformes avec une tolérance de test de ± 5 à 10%.
INDICE DE CONSOMMATION DE CARBURANT: 112 / 248 /
P
P
R
Y
Y
Y P
K
S
W
K
W
G
W
W
W
R R
WW
W
W
Y Y
ENSEMBLE D’ALLUMAGE /
HD CARTOUCHE CHAUFFANTE
200, 120, 26 
0375”  5000”
POT DE
COMBUSTION
ALLUMEUR
VENTILATEUR
DE TIRAGE
120, 50/60,
01 , 1 
CORDON D'ALIMENTATION
MIS À LA TERRE
1, 105°/221°,
183  
MOTEUR ET SYSTÈME
DE DISTRIBUTION
À LA TARIÈRE
120, 50/60, 022 ,
2  
TERRE
SONDE DU GRIL
R
R R
COSSES RECTANGULAIRES
DE LA SONDE DU GRIL
FUSIBLE RAPIDE
5 
TABLEAU DE COMMANDE NUMÉRIQUE

'  
 4 vis

Table of Contents

Related product manuals