EasyManua.ls Logo

Pit Boss 700FB - Diagrama de Cableado Eléctrico

Pit Boss 700FB
92 pages
Print Icon
To Next Page IconTo Next Page
To Next Page IconTo Next Page
To Previous Page IconTo Previous Page
To Previous Page IconTo Previous Page
Loading...
ESPAÑOL
82
ÍNDICE
  
  

  
  
  
  
   
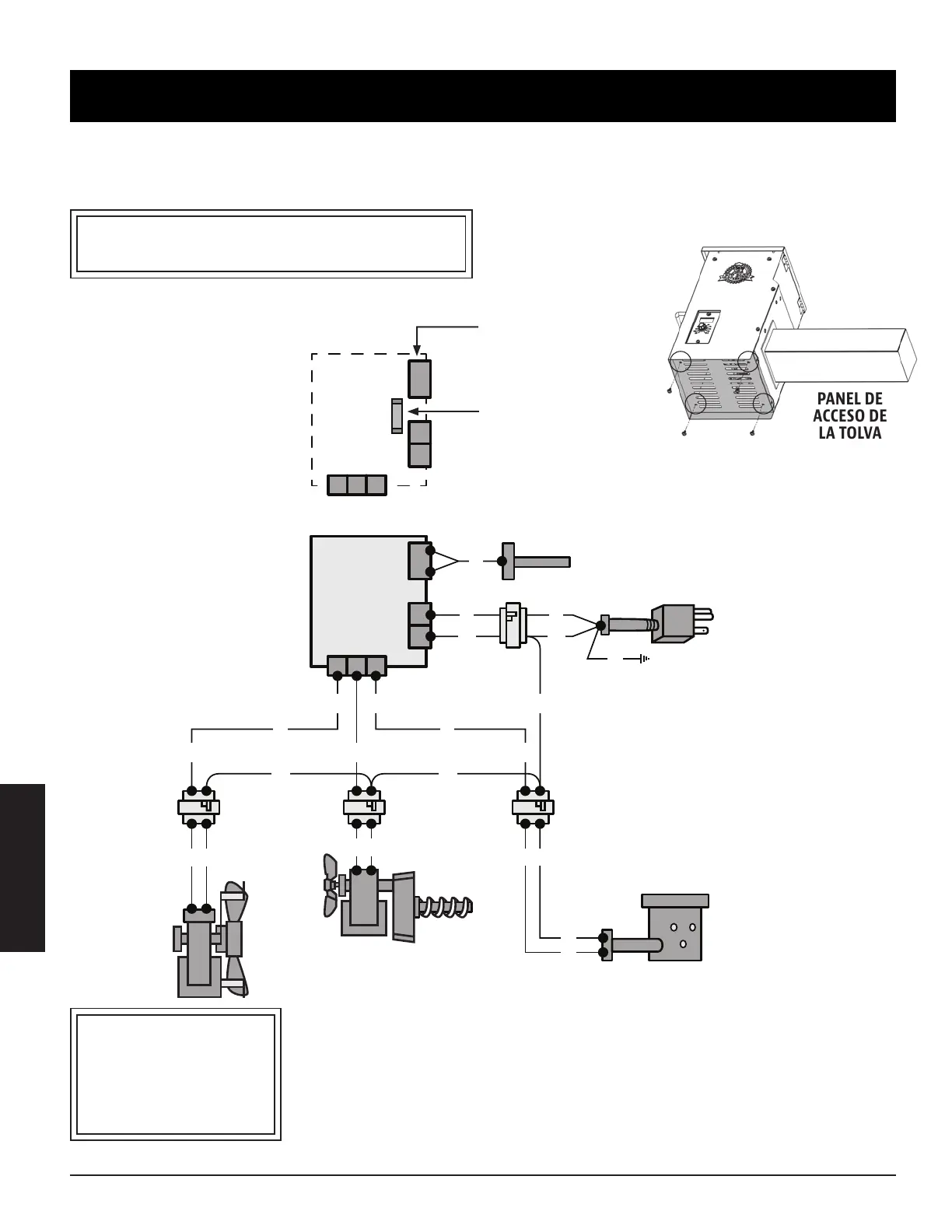
El sistema del tablero de control digital es un dispositivo tecnológico intrincado y valioso. Para protegerlo de los picos de voltaje
y los cortocircuitos eléctricos, consulte el siguiente diagrama de cableado para asegurarse de que su fuente de alimentación es
suficiente para la operación de la unidad.
PB –
REQUISITOS DE ALIMENTACIÓN ELÉCTRICA
110-120V, 60HZ, 275W, CONECTOR DE 3 CLAVIJAS CON TIERRA
NOTA: Los componentes eléctricos, que pasaron por pruebas y servicios de certificación de
seguridad de productos, cumplen con una tolerancia de prueba de ± 5-10 por ciento.
CAPACIDAD DE ENTRADA DE COMBUSTIBLE: 112 / 248 /
P
P
G
Y
Y
Y P
K
S
W
K
W
G
W
W
W
G G
WW
W
W
Y Y
CONJUNTO DE ENCENDEDOR /
CALEFACTOR DE CARTUCHO HD
200, 120, 26 
0375  5000 
CÁMARA DE
COMBUSTIÓN
ENCENDEDOR
VENTILADOR
120, 50/60,
01 ,

CABLE DE ALIMENTACIÓN
CON CONEXIÓN A TIERRA
1, 105°/221°,
183  
MOTOR DE BARRENO Y
SISTEMA DE ALIMENTACIÓN
120, 50/60, 022 ,
  2 
TIERRA
SENSOR DEL
ASADOR
R
R R
CONECTORES DE
HORQUILLA DEL SENSOR
DEL ASADOR
FUSIBLE DE
ACCIÓN RÁPIDA
5 
TABLERO DE CONTROL DIGITAL
 
 
 
4 tornillos

Table of Contents

Related product manuals