EasyManua.ls Logo

Planmeca SingLED - Page 23

Planmeca SingLED
28 pages
Print Icon
To Next Page IconTo Next Page
To Next Page IconTo Next Page
To Previous Page IconTo Previous Page
To Previous Page IconTo Previous Page
Loading...
Planmeca SingLED operating light 19
TECHNICAL SPECIFICATIONS
User’s Manual
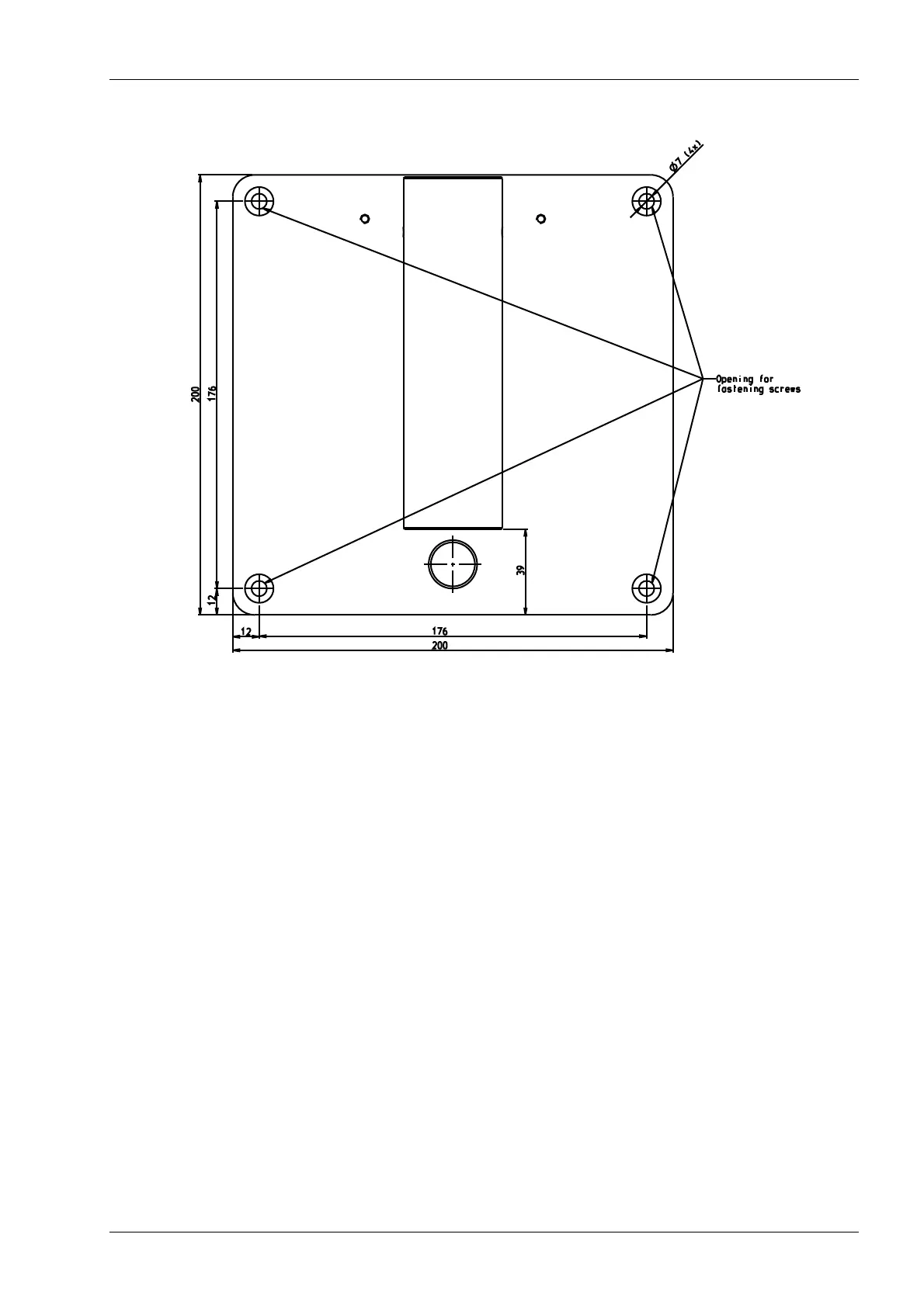
Dimensions of the wall plate (in mm)

Related product manuals