EasyManua.ls Logo

PMC PH - Heater Circuit Wiring

PMC PH
58 pages
Print Icon
To Next Page IconTo Next Page
To Next Page IconTo Next Page
To Previous Page IconTo Previous Page
To Previous Page IconTo Previous Page
Loading...
220 VAC 1 Phase
11
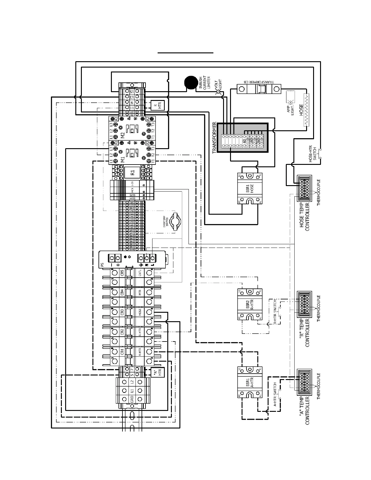
Heater Circuit

Related product manuals