EasyManua.ls Logo

Polyaire airtouch - Page 51

Polyaire airtouch
68 pages
Print Icon
To Next Page IconTo Next Page
To Next Page IconTo Next Page
To Previous Page IconTo Previous Page
To Previous Page IconTo Previous Page
Loading...
51
R
S
4
8
5
A
+
B
-
H
o
m
e
K
it
S/A2
E/M T Z1 Z2 Z3 Z4
Z8 Z7 Z6 Z5 B2 B1
L N
RS485
A+ B-
S3
S4
S1
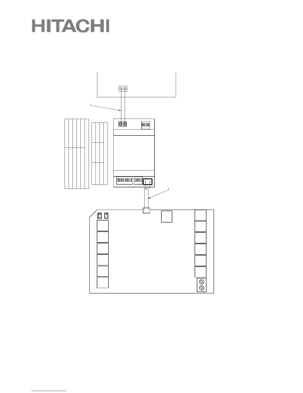
S/A1-2: Supply Air Sensors
E/M: Extension Module
T: Touchscreen
Z1...Z8: Zone Dampers
L and N: 24V AC Power Supply
B1 and B2: Bypass Dampers
HomeKit: HomeKit Module
RS485: AC Gateway
AC Gateway
A B
AirTouch 4
S/A1
A B
657211 (RS485 Cable) from Polyaire
(Provided with the gateway)
Master/Slave Setting
S1 S4
Gateway As
0000 0000
Slave
1000 0000 Master
Two Core cable, stripped wires
field prepared
AC Indoor PCB
Gateway Address Setting
S3
Gateway Address
10000001 1
01000001
2
11000001 3
00100001 4
657220
Note:
0-Off and 1-On
(
657220
)
Wiring Diagram
Wiring Diagrams contd.

Related product manuals