EasyManua.ls Logo

Precision Tooling Speed Sharp Star - Защитные Устройства

Precision Tooling Speed Sharp Star
Print Icon
To Next Page IconTo Next Page
To Next Page IconTo Next Page
To Previous Page IconTo Previous Page
To Previous Page IconTo Previous Page
Loading...
90
RU
8. 
1 станина 11 рукоятка управления плечом
2 Блок плечо-двигатель 12
защитный кожух шлифовального круга
3 Блок тисков 13
дополнительная линзовидная защита
4 регулировочная ручка цепи 14 шлифовальный круг
5 регулировочная ручка тисков 15
ручка для регулировки глубины
заточки
6 губки для зажима цепи 16 аварийная кнопка
7
регулировочная ручка ограничителя цепи
17 лампочка
8
регулировочная ручка ограничителя цепи
18 Главный выключатель
9 устройство блокировки цепи 19 электрический провод питания
10 регулировочная ручка плеча 20
табличка с техническими
данными
 
Аппарат оснащен следующими защитными устройствами:
 защищают оператора от частиц шли-
фовального круга, которые могут отколоться во время заточки.
Эти защитные устройства должны быть всегда установлены при работе на станке.
Всегда убеждайтесь в том, что защитные кожухи находятся в исправном со-
стоянии и хорошо установлены. Возможные повреждения и/или трещины могут
привести к нанесению ущерба оператору.
 машина оснащена аварийным выключателем с отключающей
катушкой. В случае неожиданного прекращения подачи напряжения питания
аварийный выключатель самостоятельно выключается, отключая машину. В
случае неожиданного возобновления подачи напряжения выключатель необ-
ходимо снова привести в действие.
 служит для блокировки плеча в полностью под-
нятом положении.
При отпускании кнопки плечо блокируется. Это условие должно соблюдаться при прове-
дении операций по регулировке углов заточки, замене и правке шлифовального круга.
При нажатии кнопки плечо может свободно двигаться. Это условие необходимо
для проведения операций по заточке.
Если в процессе работы плечо внезапно отпускается, то эта кнопка срабатывает
и блокирует его в поднятом положении.
 
Данный электрический станок предназначен для заточки режущих цепей для
бензопил.
- Используйте аппарат для заточки только тех типов цепей, которые указаны в
таблице с техническими данными.
- Не используйте аппарат в качестве отрезного резца или для заточки предметов,
которые не являются вышеуказанными цепями;
- Аппарат должен быть прочно прикреплен к верстаку или к стене.
- Аппарат не предназначен для применения в коррозионной или взрывоопасной среде.
 

Изготовитель снимает с себя всякую ответственность за возможный ущерб, воз-
никший в результате неправильного использования станка или использования
его не по назначению.
 
Станок поставляется в частично собранном виде.
 
1 - станина 13 -шайба для винта M10
2 - блок плечо-двигатель 14 -рукоятка останова плеча
3 - инструкция по эксплуатации 15 -гайка M10 для крепления плеча
4 - картон для тестирования 16 -рукоятка управления
6 - шлифовальный круг Ø 145x3.2x22.2 19 -шаблон для заточки
7 - шлифовальный круг Ø 145x4.7x22.2 20 -
инструмент для правки
шлифовальных кругов (шарошка)
8 - шлифовальный круг Ø 145x6x22.2 21 -шестигранный гаечный ключ 4 мм
12 -винт M10x40 для крепления плеча 22 -шестигранный гаечный ключ 5 мм
 

Используя центральное отверстие, удерживайте шлифовальный круг в под-
вешенном состоянии. Произведите легкий удар по краю шлифовального круга
металлическим предметом . Круг без трещин издает чистый, металлический
звук. Шлифовальный круг, издающий глухой звук может быть поврежден -

 

Убедитесь в том, что машина не будет установлена на уровне глаз оператора.
Рекомендуется устанавливать машину на макс. высоте около 1,2-1,3 м от уровня
грунта.
Машину можно крепить к верстаку или к стене.
 
- производится при помощи 2 винтов M8, укомплек-
тованных шайбами и гайками (этот материал не входит в комплект поставки),
которые нужно вставить в крепежные отверстия F4. Следите за тем, чтобы
станина располагалась на верстаке так, как это показано на рисунке.
- чтобы закрепить группу плечо-двигатель на станине,
вставьте винт V5 в специальное отверстие F5. С тыльной стороны вставьте
шайбу R5 и привинтите ручку M5.
 
- производится с помощью двух дюбелей с соответ-
ствующими винтами и шайбами (этот материал не входит в комплект поставки),
которые вставляются в крепежные отверстия F6.
- чтобы закрепить группу плечо-двигатель на станине,
вставьте винт V5 в специальное отверстие F5. С тыльной стороны вставьте
шайбу R5 и завинтите гайку D5.
 
- Полностью навинтите рукоятку управления на винт V7.
 
Перед тем, как начать заточку, необходимо произвести полный осмотр цепи, чтобы
убедиться в том, что она не повреждена.
 
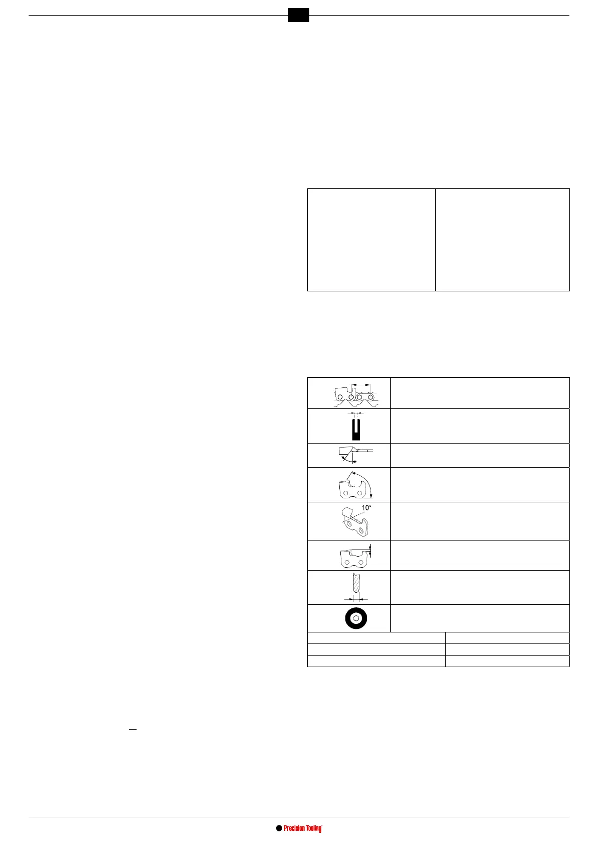
1 верхняя часть 1 соединительное звено
2 верхний угол реза 2 левый зуб
3 боковой угол реза 3 правый зуб
4 выемка для заточки 4 ведущее звено
5 ограничитель глубины 5 заклепка
6 наконечник
7 пятка
8 отверстие под заклепку
 
- Перед началом заточки необходимо определить тип цепи и соответствующие
установочные углы. Эти данные вы найдете в инструкции по эксплуатации
бензопилы, на которой установлена цепь или в упаковке цепи.
- Обычно на ведущем звене указан идентификационный код цепи.
- Параметры цепи можно также определить с помощью инструментов, используя
шаблон и калибр.
- В конце данной инструкции имеется ТАБЛИЦА, в которой представлен СПИСОК ЦЕПЕЙ.
В колонках этой таблицы указаны следующие данные:
A
÷ 2
шаг цепи
B
ширина Ведущего звена
C
верхний угол заточки (поворот тисков)
D
угол реза (поворот плеча)
E
нижний угол (наклон тисков)
F
глубина ограничителя
G
толщина шлифовального круга
H
код шлифовального круга
I коды цепей Oregon N коды цепей Carlton
L коды цепей Windsor O коды цепей Stihl
M коды цепей SARP P коды цепей EM
16.1 

a - установите глубину ограничителя, используя соответствующий шаблон.
b - приставив шаблон с этой стороны, установите ШАГ цепи.
c - приставив шаблон с этой стороны, установите длину зуба.
d - Ширину ведущего звена можно измерить с помощью подходящего инструмента
(например, с помощью калибра).
 -

- используйте шлифовальный круг, который подходит к типу затачиваемой цепи;
при выборе шлифовального круга руководствуйтесь таблицей цепей, помещен-
ной в конце инструкции.
- не вставляйте шлифовальный круг в ступицу, прикладывая силу, и не изменяйте
диаметра центрирующего отверстия. Не используйте шлифовальных кругов в
случае, если они не подогнаны к ступице полностью.
P00801028_R02.indd 90 26/11/2008 16.54.44