EasyManua.ls Logo

Primer DS-17 - Page 308

Default Icon
Print Icon
To Next Page IconTo Next Page
To Next Page IconTo Next Page
To Previous Page IconTo Previous Page
To Previous Page IconTo Previous Page
Loading...
306
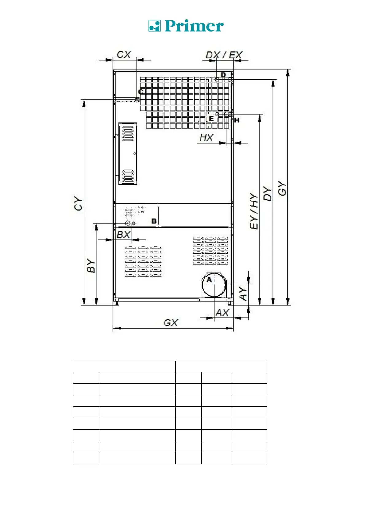
DS/DL-28D / DS/DL-35D
Ponto
Descrição
Cota X
Cota Y
Conexión
A
Saída de vapor
160
172
Ø200mm
B
Ligação elétrica
148
685
Ø20mm
C
Entrada de gás
188
1715
BSP ½”
D
Entrada de vapor
134
1883
BSP 3/4”
E
Saída de condensados
134
1594
BSP 3/4”
G
Cota geral
985
1970
-
H
Válvula anti-fogo
55
1594
BSP ¾ “

Table of Contents

Related product manuals