EasyManua.ls Logo

Procom MNSD300HGA - Page 15

Procom MNSD300HGA
32 pages
Print Icon
To Next Page IconTo Next Page
To Next Page IconTo Next Page
To Previous Page IconTo Previous Page
To Previous Page IconTo Previous Page
Loading...
www.usaprocom.com
15200233-01B
LP REGULATOR INSTALL 2
INSTALLATION
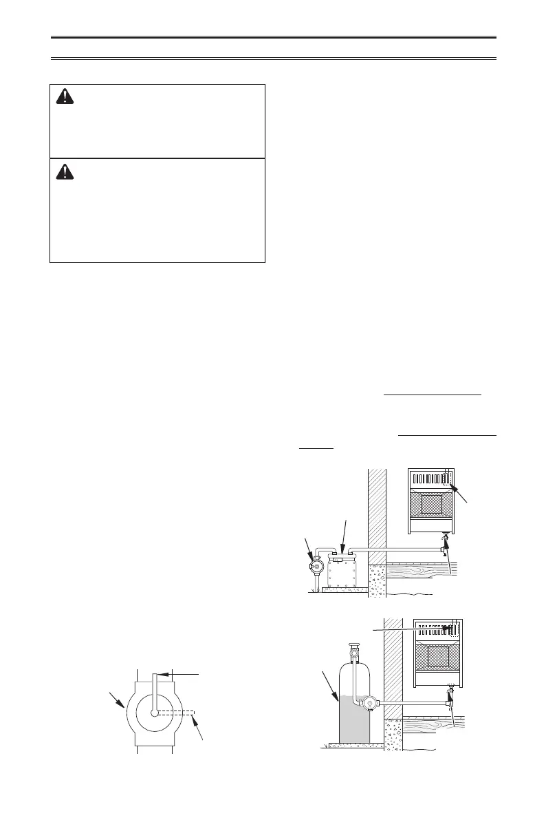
Figure 16 - Equipment Shutoff Valve
CHECKING GAS CONNECTIONS
Open
Closed
Equipment
Shutoff Valve
Figure 17 - Natural Gas Supply
Gas
Meter
Gas
Valve
Gas Valve
Equipment
Shutoff Valve
Figure 18 - Propane/LP Fuel Supply
Propane/LP
Supply Tank
Equipment
Shutoff Valve
WARNING: Test all gas piping
and connections for leaks after
installing or servicing. Correct
all leaks at once.
WARNING: Never use an
open ame to check for a leak.
Apply a mixture of liquid soap
and water to all joints. If bubbles
form, there is a leak. Correct all
leaks at once.
PRESSURE TESTING GAS SUPPLY
PIPING SYSTEM
Test Pressures In Excess Of 1/2 PSIG
(3.5 kPa)
1. Disconnect heater with its appliance main
gas valve (control valve) and equipment
shutoff valve from gas supply piping sys-
tem. Pressures in excess of 1/2 PSIG will
damage heater regulator.
2. Cap off open end of gas pipe where equip-
ment shutoff valve was connected.
3. Pressurize supply piping system by either
using compressed air or opening gas sup-
ply valve.
4. Check all joints of gas supply piping
system. Apply mixture of liquid soap and
water to gas joints. If bubbles form, there
may be a leak.
5. Correct all leaks at once.
6. Reconnect heater and equipment shutoff
valve to gas supply. Check reconnected
ttings for leaks.
Test Pressures Equal To or Less Than 1/2
PSIG (3.5 kPa)
1.
Close equipment shutoff valve (see Fig-
ure 16).
2. Pressurize supply piping system by either
using compressed air or opening natural
supply tank valve.
3. Check all joints from gas meter (natural
gas installations, see Figure 17) or from
propane/LP tank (propane/LP gas installa-
tions, see Figure 18) to equipment shutoff
valve. Apply mixture of liquid soap and
water to gas joints. If bubbles form, there
is a leak.
4. Correct all leaks at once.
PRESSURE TESTING HEATER GAS
CONNECTIONS
1. Open equipment shutoff valve (see Fig-
ure 16).
2. Open gas supply tank valve.
3. Make sure control knob of heater is in the
OFF position.
4. Remove front panel.
5. Check all joints from equipment shutoff
valve to control valve (see Figure 17 or
Figure 18). Apply mixture of liquid soap
and water to gas joints. If bubbles form,
there may be a leak.
6. Correct all leaks at once.
7. Light heater (see Lighting Instructions on
page 16 or 17). Check all other internal
joints for leaks.
8. Turn off heater (see To Turn Off Gas Ap-
pliance, page 17 or 18).
9. Replace lower front panel.
External
Regulator
Supplied
by Gas
Supplier

Related product manuals