EasyManua.ls Logo

Proline L1950HD LED - Branchements HDMI; Branchements VGA

Proline L1950HD LED
Print Icon
To Next Page IconTo Next Page
To Next Page IconTo Next Page
To Previous Page IconTo Previous Page
To Previous Page IconTo Previous Page
Loading...
16
Branchements
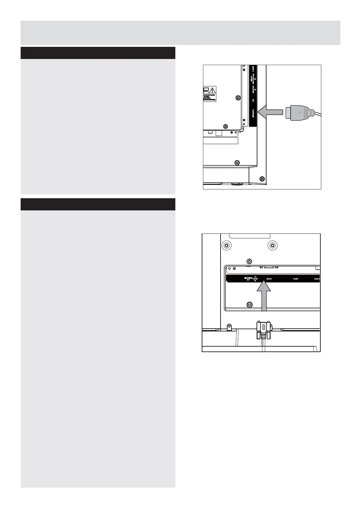
Branchements HDMI
Branchements VGA
/H+'0,YRXVSHUPHWGHSUR¿WHUGLPDJHV
QXPpULTXHVHQKDXWHGp¿QLWLRQHWGXQHKDXWH
qualité audio en branchant le téléviseur à des
appareils externes, par exemple des lecteurs
'9'GHVGpFRGHXUVRXGHVFRQVROHVGHMHX
eWHLJQH]OHWpOpYLVHXUHWODSSDUHLODYDQW
GHIIHFWXHUOHVEUDQFKHPHQWV
3RXUSOXVGLQIRUPDWLRQVFRQVXOWH]ODQRWLFH
GXWLOLVDWLRQGHODSSDUHLO
$SUqVOHEUDQFKHPHQWUpJOH]OD©6RXUFHªVXU©
+'0,ª9RLUODVHFWLRQ©6pOHFWLRQQHUODVRXUFHª
Remarque :
Le câble HDMI n'est pas fourni.
9RXVSRXYH]EUDQFKHUXQRUGLQDWHXU3&DX
WpOpYLVHXUSRXUDI¿FKHUOLPDJHGHOpFUDQGH
YRWUHRUGLQDWHXUVXUOHWpOpYLVHXU
eWHLJQH]OHWpOpYLVHXUHWORUGLQDWHXU
avant
GHIIHFWXHUOHVEUDQFKHPHQWV
8WLOLVH]XQFkEOHYLGpR'6XEjEURFKHVSRXU
FRQQHFWHUXQRUGLQDWHXUDXWpOpYLVHXU%UDQFKH]
XQFkEOHDXGLRHQWUHOHVHQWUpHV3&$8',2VXU
OHF{WpJDXFKHGXWpOpYLVHXUHWODVRUWLHDXGLR
de votre ordinateur pour avoir le son sur le
WpOpYLVHXU
8QHIRLVOHEUDQFKHPHQWHIIHFWXpUpJOH]
OD©6RXUFHªVXU©3&ª9RLUODVHFWLRQ©
6pOHFWLRQQHUODVRXUFHª
5pJOH]ODUpVROXWLRQDGDSWpHjYRVEHVRLQVGH
YLVLRQQDJH'HVLQIRUPDWLRQVVXUODUpVROXWLRQ
VRQWIRXUQLHVGDQVOHV©$SSHQGLFHVª
Remarque :
/HFkEOH9*$QHVWSDVIRXUQL
HDMI(ARC) CI SLOTUSB
MINI AV
MINI YPbPr-R/L
IN
MINI YPbPr
IN
HEADPHONE
OUT
PC
AUDIO
IN
VGA IN SCART COAX
O
Downloaded from www.vandenborre.be

Table of Contents

Related product manuals