EasyManua.ls Logo

Protemp PT 215T-KFA - Wiring Diagrams

Default Icon
16 pages
Print Icon
To Next Page IconTo Next Page
To Next Page IconTo Next Page
To Previous Page IconTo Previous Page
To Previous Page IconTo Previous Page
Loading...
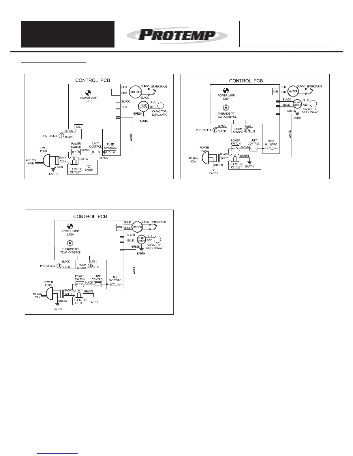
Wiring Diagrams
Pinnacle Products International, Inc. Kerosene Owners Manual Page 13
Kerosene
Forced Air Heaters
Never leave heater
unattended while burning,
or while connected to a
power source
CN1
FAN 1
CDS
ACN2
F
AN 2
ACN 1
ACN 1
CD5
CN2 R-TH
MOTOR01
MOTOR02
ACN2
CN3
BLACK
ACN 1
CD5 CN2 R-TH
MOTOR01
MO
TOR02
ACN2
CN3
BLACK
CDS
ACN2
ACN 1
CD5 CN2 R-TH
MOTOR01
MOTOR02
ACN2
CN3
BLACK
Wiring Diagram C Model PT 125/175/215T-KFA
Wiring Diagram A Models PT 45-KFA
Wiring Diagram B Models PT 70T-KFA
ACN 1
CD5 CN2 R-TH
MOTOR01
MOTOR02
ACN2
CN3
BLACK

Related product manuals