EasyManua.ls Logo

Rangemaster Professional+ - Installation: Positioning and Moving; Cooker Positioning and Moving Safely

Rangemaster Professional+
32 pages
Print Icon
To Next Page IconTo Next Page
To Next Page IconTo Next Page
To Previous Page IconTo Previous Page
To Previous Page IconTo Previous Page
Loading...
22
As you progress, make sure that both the electricity cable and
gas hose always have sufficient slack to allow the cooker to
move.
With a stability chain fitted, release it as you ease the cooker out.
Do not forget to refit it when you replace the cooker.
When you replace the cooker, again check behind to make
sure that the electricity cable and gas hose are not caught or
trapped.
Conversion to Another Gas
If the appliance is to be converted to another gas do the
conversion at this point. See the conversion section of these
instructions and see the instructions in the conversion kit.
Levelling
You are recommended to use a spirit level on a shelf in one of
the ovens to check for level.
Place the cooker in its intended position taking care not to
twist it within the gap between the kitchen units as damage
may occur to the cooker or the units.
The front feet and rear rollers can be adjusted to level the
cooker. To adjust the height of the rear of the cooker use the
levelling tool supplied to turn the adjusting nuts at the front
bottom corners of the cooker. To set the front turn the feet
bases to raise or lower.
Gas Connection
This must be in accordance with the relevant standards.
The flexible hose (not supplied with the cooker) must be
in accordance with the relevant standards. Hoses may be
purchased at most builders merchants.
The gas supply needs to terminate with a down facing
bayonet.
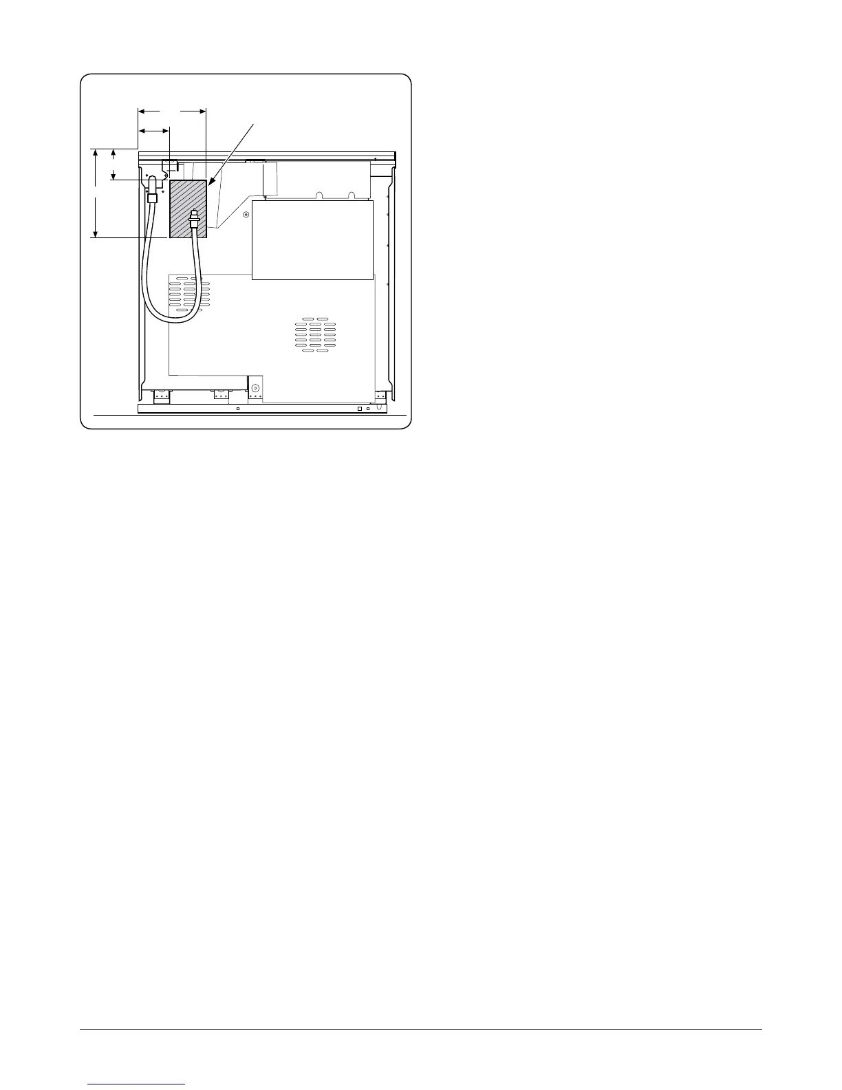
The connector is located just below the hotplate level at the
rear of the cooker. If in doubt contact your supplier.
The rear cover boxes limit the position of the supply point.
Because the height of the cooker can be adjusted and
each connection is different, it is difficult to give precise
dimensions.
Although a 900mm hose can be used, a 1250mm hose
will allow slightly more flexibility in the positioning of the
bayonet and make moving the cooker easier.
The hose should be fitted so that both inlet and outlet
connections are vertical so that the hose hangs downwards in
a ‘U’ shape.
Ideally the hose supply connection should be within the
shaded area A shown (Fig.7-10).
For Natural Gas, the flexible hose must be in accordance with
BS 669. For LP Gas, it should be capable of 50mbar pressure,
70°C temperature rise, and carry a red stripe, band or label. If
in doubt contact, your supplier.
ArtNo.090-0027 - 90 Elan gas connections




Fig.7-10

Related product manuals