EasyManua.ls Logo

Regal 2000 ES - Page 146

Regal 2000 ES
352 pages
Print Icon
To Next Page IconTo Next Page
To Next Page IconTo Next Page
To Previous Page IconTo Previous Page
To Previous Page IconTo Previous Page
Loading...
Chapter 3
1-68
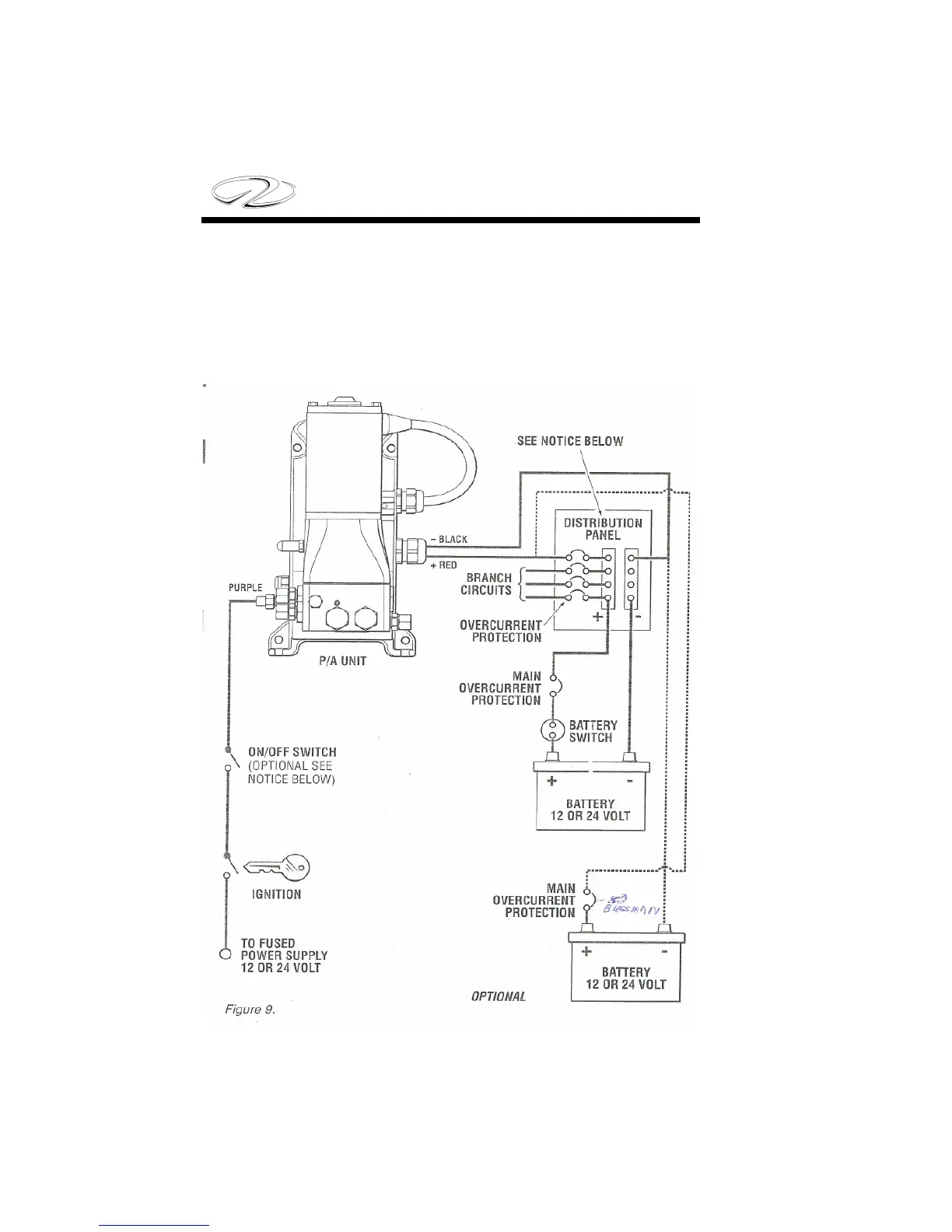
POWER ASSIST STEERING
e following diagram identi es a typical outboard power assisted
steering system circuitry.

Table of Contents

Related product manuals