EasyManua.ls Logo

RIB SUPER 2200 - Page 20

RIB SUPER 2200
Print Icon
To Next Page IconTo Next Page
To Next Page IconTo Next Page
To Previous Page IconTo Previous Page
To Previous Page IconTo Previous Page
Loading...
20
F
A - BRANCHEMENTS
B - RÉGLAGES
SW1 SW2 SW3 - MICROINTERRUPTEURS POUR PROCÉDURES
DIP 1 CONTRÔLE DU SENS DE ROTATION DU MOTEUR (ON) (POINT C)
DIP 2 PROGRAMMATION DES DURÉES (ON) (POINT D)
DIP 1-2 MEMORISATION/ANNULATION CODES RADIO COMMANDE OUVERTURE
TOTALE (DIP 1 ON suivi de DIP 2 ON) (POINT F) UNIQUEMENT POUR
MODELES CRX
DIP 1-3 MEMORISATION/ANNULATION CODES RADIO COMMANDE OUVERTURE
PIETONNIERE (DIP 1 ON suivi de DIP 3 ON) (POINT G) UNIQUEMENT POUR
MODELES CRX
DIP 2-1 PROGRAMMATION DES LAPS DE TEMPS D’OUVERTURE POUR PIÉTONS (DIP 2
ON suivi de DIP 1 ON) (POINT E)
MICROINTERRUPTEURS DE GESTION
DIP 3
ON - Activation du temps d’attente avant la fermeture automatique totale et pour piétons
(max 5 min.)
OFF - Désactivation du temps d’attente avant de fermeture automatique totale et pour
piétons
DIP 4
ON - Commande récepteur radio en mode pas à pas
OFF - Commande récepteur radio en mode automatique
DIP 5
ON - Commande bouton-poussoir K BUTT et pour piétons en mode pas à pas
OFF - Commande bouton-poussoir K BUTT et pour piétons en mode automatique
DIP 6
ON - Photocellules activées seulement en fermeture
OFF - Photocellules toujours activées
DIP 7
ON - Encodeur activé pour modèles PLUS
OFF - Encodeur non activé
DIP 8
ON - Pré-clignotement activé
OFF - Pré-clignotement non activé
DIP 9
ON - Ralentissement non activé
OFF - Ralentissement activé
DIP 10
ON - Frein électronique activé
OFF - Frein électronique non activé
DIP 11
ON - Départ graduel activé
OFF - Départ graduel non activé
DIP 12
ON - Activation TEST monitorage barre palpeuse
OFF - Désactivation TEST monitorage barre palpeuse
DIP 13
ON - Gestion fonctionnement des moteurs avec télérupteurs extérieurs à la carte.
Même s’ils sont activés, les DIP suivants sont exclus de leur fonctionnement:
DIP 7 Encodeur
DIP 9 Ralentissement
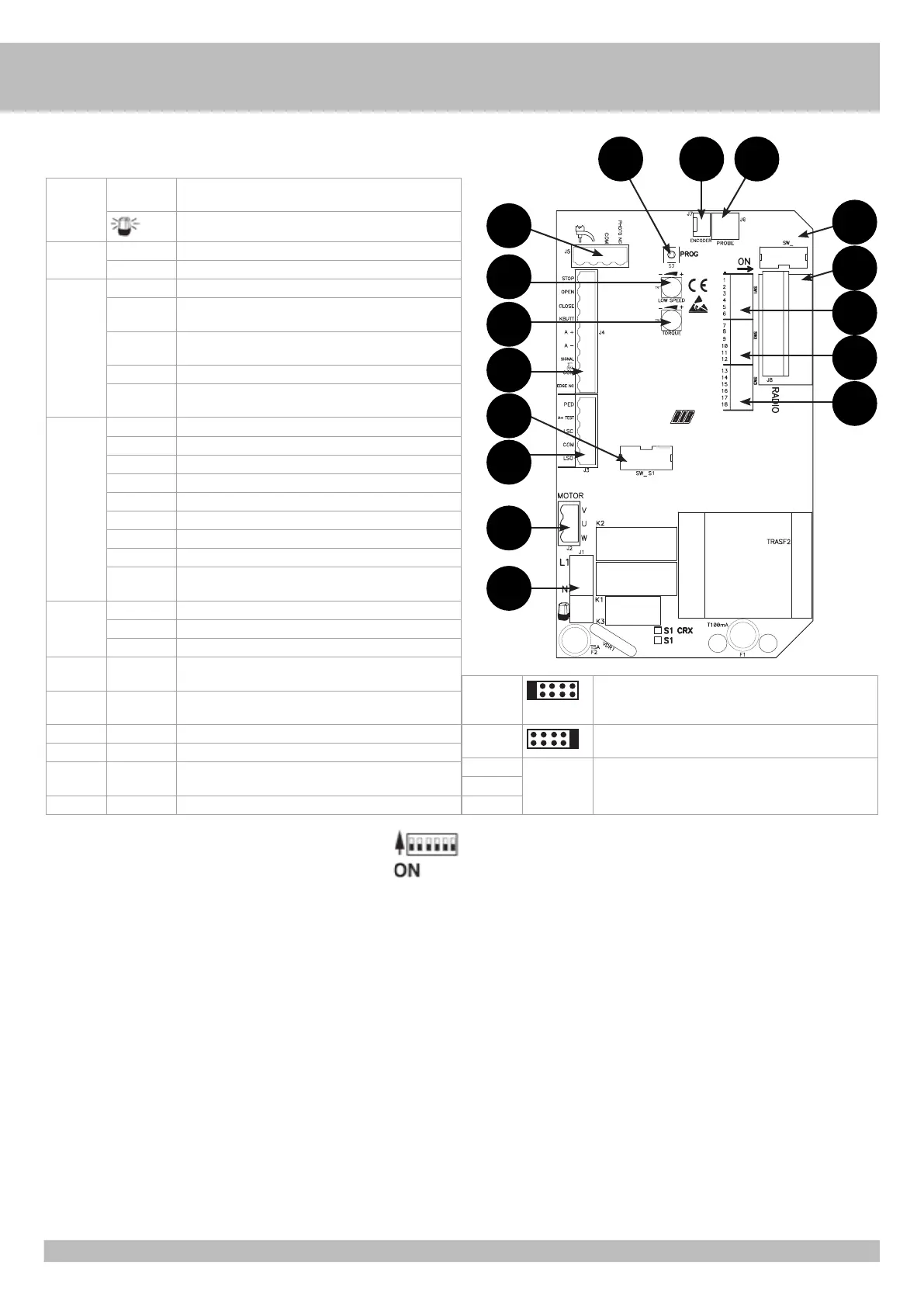
J1 L1 - N ALIMENTATION 230 VCA 50/60 HZ (120 V/60 HZ SUR
DEMANDE)
CLIGNOTANT (MAX 40 W)
J2 U CONNEXION COMMUN DU MOTEUR
V-W CONNEXION INVERSEURS ET CONDENSATEUR DU MOTEUR
J3 PED. BUTT. CONTACT COMMANDE OUVERTURE POUR PIÉTONS (NO)
A+ TEST POSITIF POUR ALIMENTATION AUTOTEST BARRE PALPEUSE
À 24 VCC
LSC CONTACT FIN DE COURSE QUI ARR TE LA FERMETURE DU
MOTEUR
COM COMMUN DES CONTACTS
LSO CONTACT FIN DE COURSE QUI ARR TE L’OUVERTURE DU
MOTEUR
J4 STOP CONTACT DE STOP
OPEN CONTACT D’OUVERTURE
CLOSE CONTACT DE FERMETURE
K. BUTT. CONTACT À UNE SEULE IMPULSION NO
A+ POSITIF ALIMENTATION DES ACCESSOIRES À 24 VCC
A- NÉGATIF ALIMENTATION DES ACCESSOIRES À 24 VCC
SIGNAL VOYANT PORTAIL OUVERT 24 VCC
COM COMMUN DES CONTACTS
EDGE NC CONTACT BARRES PALPEUSES EN OUVERTURE ET
FERMETURE
J5 AERIAL ANTENNE RADIO
COM COMMUN DES CONTACTS
PHOTO NC CONTACT PHOTOCELLULES
J6 PROBE CONNECTEUR POUR CONNEXION SONDE CHAUFFANTE (Code
ACG4665)
J7 ENCODER CONNECTEUR POUR CONNEXION ENCODEUR (SEULEMENT
POUR K PLUS)
J8 RADIO CONNECTEUR POUR RADIO RÉCEPTEUR EXTÉRIEUR 24 VCC
S3 PROG. BOUTON-POUSSOIR POUR LA PROGRAMMATION
TR1 LOW SPEED RÉGULATEUR ÉLECTRONIQUE DE LA VITESSE LENTE EN
APPROCHE AVEC DIP 7 ON (CF. TABLEAU 1)
TR2 TORQUE RÉGULATEUR ÉLECTRONIQUE DE LA FORCE
SW RADIO (seulement pour les modèles CRX) NE PAS TOUCHER AU
CAVALIER ! SI LE SYSTÈME RADIO EST ENLEVÉ, IL NE
FONCTIONNE PAS!
SW S1
NE PAS TOUCHER LE CAVALIER ! S’IL EST ENLEVÉ,
L’OPÉRATEUR NE FONCTIONNE PAS !
SW1 Commutateur DIP de gestion
SW2
SW3
RADIO
SW
RADIO
J5
TR1
TR2
J4
SW
S1
J3
J2
J1
J7 J6
J8
SW1
SW2
SW3
S3

Related product manuals