EasyManua.ls Logo

RIB SUPER 2200 - Electric Connections Overview; Wiring Diagram and Terminal Layout

RIB SUPER 2200
Print Icon
To Next Page IconTo Next Page
To Next Page IconTo Next Page
To Previous Page IconTo Previous Page
To Previous Page IconTo Previous Page
Loading...
30
G
B
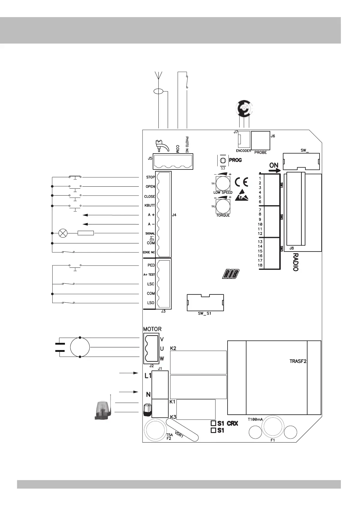
ELECTRIC CONNECTIONS
S1-CRX code AC07097
CLOSE
OPEN
COMMON
MOTOR
CAPACITOR
M
BLINKER
230Vac 40W
POWER SUPPLY
230Vac 50 Hz
LIMIT SWITCH OPEN
LIMIT SWITCH CLOSE
PEDESTRIAN
OPEN
STOP
CLOSE
STEP BY STEP
24Vdc 0,4A ± 15%
LED
R=2,2K 1/4W
COMMON
SAFETY STRIP
ANTENNA
ANTENNA BRAIDING
COMMON
PHOTOCELLS
ENCODER
RADIO

Related product manuals