EasyManua.ls Logo

RIB SUPER 2200 - Electrical Setup and Configuration; Terminal Connection Details; DIP Switch Settings; LED Indicators and Warnings

RIB SUPER 2200
Print Icon
To Next Page IconTo Next Page
To Next Page IconTo Next Page
To Previous Page IconTo Previous Page
To Previous Page IconTo Previous Page
Loading...
31
S1-CRX code AC07097
NC: NORMALLY CLOSED CONTACT
NO: NORMALLY OPEN CONTACT
G
B
POINT A - ELECTRIC CONNECTIONS
POINT B - SETTINGS
DIP 1 MOTOR ROTATION DIRECTION CHECK (See Point C)
DIP 2 PROGRAMMING (See Point D)
DIP 1-2 STORAGE/DELETION OF RADIO CODES FOR COMPLETE OPENING (DIP 1 ON
followed by DIP 2 ON) (POINT F) ONLY FOR CRX MODELS
DIP 1-3 STORAGE/DELETION OF RADIO CODES FOR PEDESTRIAN OPENING (DIP 1
ON followed by DIP 3 ON) (POINT G) ONLY FOR CRX MODELS
DIP 2-1 PROGRAMMING OF PEDESTRIAN OPENING (See Point E)
DIP 3 ON - Automatic Closing ENABLED
OFF - Automatic Closing DISABLED
DIP 4 ON - Radio receiver STEP BY STEP
OFF - Radio receiver AUTOMATIC
DIP 5 ON - STEP BY STEP
Single pulse contact (K BUTT)
Pedestrian button (PED BUTT)
OFF - AUTOMATIC
Single pulse contact (K BUTT)
Pedestrian button (PED BUTT)
DIP 6 ON - Photocells active only in closing
OFF - Photocells always active
DIP 7 ON - Encoder enabled for PLUS operator
OFF - Encoder disabled
DIP 8 ON - Blinker pre-flashing
OFF - Blinker normal flashing
DIP 9 ON - Low speed in approaching DISABLED
OFF - Low speed in approaching ENABLED
DIP 10 ON - Electronic brake ENABLED
OFF - Electronic brake DISABLED
DIP 11 ON - Gradual start ENABLED
OFF - Gradual start DISABLED
DIP 12 ON - Safety strip self test ENABLED
OFF - Safety strip self test DISABLED
DIP 13 ON - Motor operation control by external power relays (only for S1/R2 and S1/
R4 control boards). Encoder, low speed in approaching, gradual start
and electronic brake features, low speed and torque regulator will be
automatically disabled regardless their dip-switches and trimmers position.
OFF - Standard motor operation control without power relays
DIP 14 ON
DIP 15 ON
DIP 16 OFF
DIP 17 ON - close command after the transit through the photocell ENABLED
OFF - close command after the transit through the photocell DISABLED
DIP 18 ON - Working with motors 120V 60Hz
OFF - Working with motors 230V 50-60Hz
LED WARNINGS
DL1 - programming activated (red)
DL2 - stop contact NC (red)
DL3 - open limit-switch contact (red)
DL4 - close limit-switch contact (red)
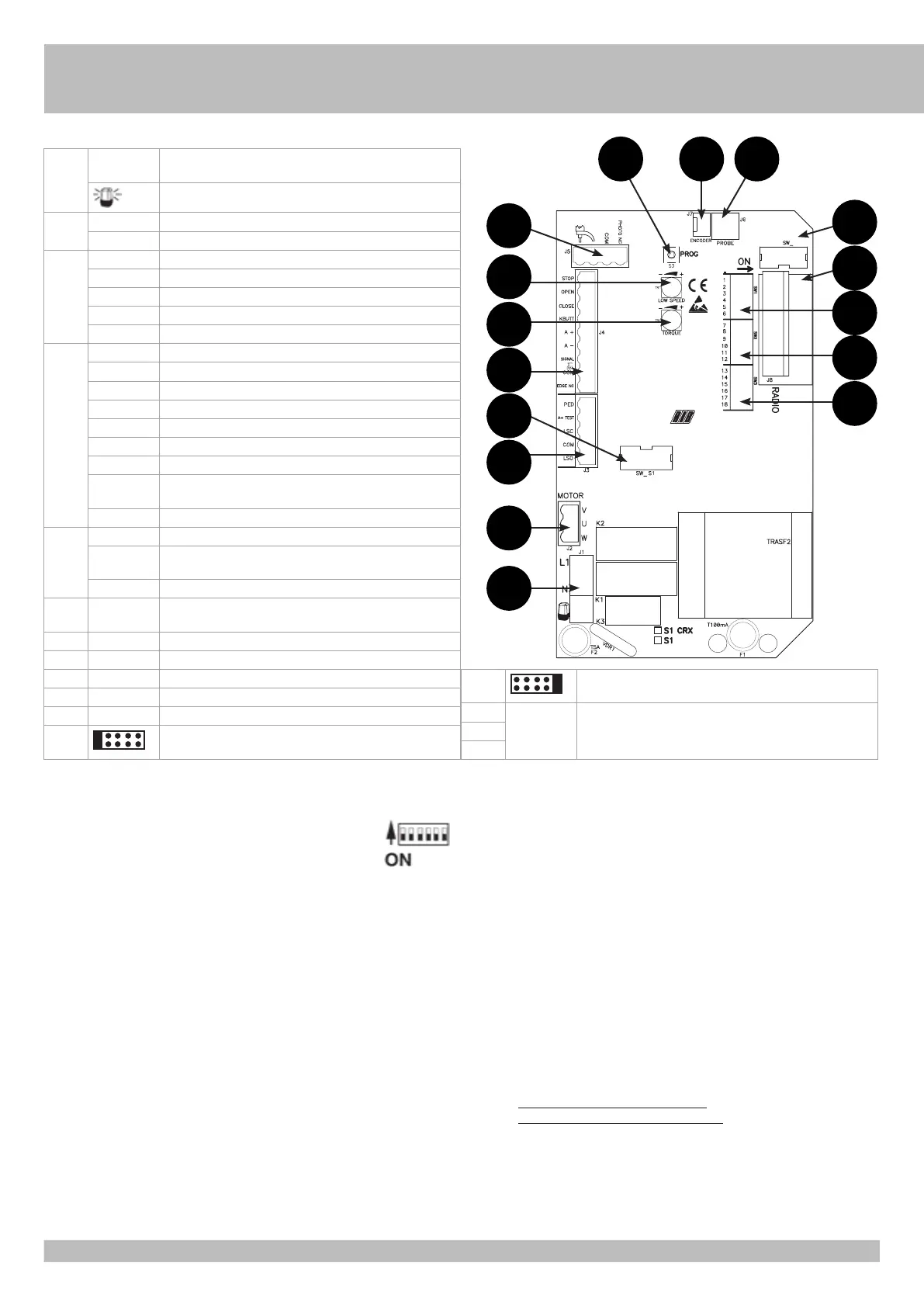
J1 L1 - N 230Vac 50/60Hz POWER SUPPLY (120Vac/60Hz UPON
REQUEST)
BLINKER (40 W MAX.)
J2 U MOTOR COMMON CONNECTION
V-W MOTOR PHASES AND CAPACITOR CONNECTIONS
J3 PED. BUTT. PEDESTRIAN OPENING CONTACT (NO)
A+ TEST +24Vdc SAFETY STRIP SELF-TEST POWER SUPPLY
LSC CLOSE LIMIT SWITCH THAT CUTS OFF THE MOTOR IN CLOSING
COM LIMIT SWITCH COMMON CONTACT
LSO OPEN LIMIT SWITCH THAT CUTS OFF THE MOTOR IN OPENING
J4 STOP STOP CONTACT (NC)
OPEN OPENING CONTACT (NC)
CLOSE CLOSING CONTACT (NC)
K. BUTT. SINGLE PULSE CONTACT (NO)
A+ ACCESSORIES POWER SUPPLY +24Vdc
A- ACCESSORIES POWER SUPPLY -24Vdc
SIGNAL GATE OPEN INDICATOR 24Vdc
COM COMMON CONTACT (common line for all the command and
safety inputs)
EDGE NC SAFETY STRIP CONTACT (NC)
J5 AERIAL RADIO ANTENNA
COM COMMON CONTACT (common line for all the command and
safety inputs)
PHOTO NC PHOTOCELLS CONTACT (NC)
J6 PROBE Temperature sensor cable connection PROBE (Code ACG4665
optional)
J7 ENCODER ENCODER connection (K PLUS operators)
J8 RADIO CONNECTOR FOR EXTERNAL RADIO RECEIVER 24Vdc
S3 PROG. PROGRAMMING BUTTON
TR1 LOW SPEED ELECTRONIC REGULATOR FOR LOW SPEED ON APPROACH
TR2 TORQUE ELECTRONIC TORQUE REGULATOR
SW
RADIO
(only CRX control board) DO NOT REMOVE ANY JUMPER!
OTHERWISE THE OPERATOR WILL NOT WORK!
SW S1 DO NOT REMOVE THE JUMPER! OTHERWISE THE OPERATOR
WILL NOT WORK!
SW1 DIP-SWITCHES
SW2
SW3
RADIO
SW
RADIO
J5
TR1
TR2
J4
SW
S1
J3
J2
J1
J7 J6
J8
SW1
SW2
SW3
S3

Related product manuals