EasyManua.ls Logo

RIB SUPER 2200 - Page 52

RIB SUPER 2200
Print Icon
To Next Page IconTo Next Page
To Next Page IconTo Next Page
To Previous Page IconTo Previous Page
To Previous Page IconTo Previous Page
Loading...
52
E
S
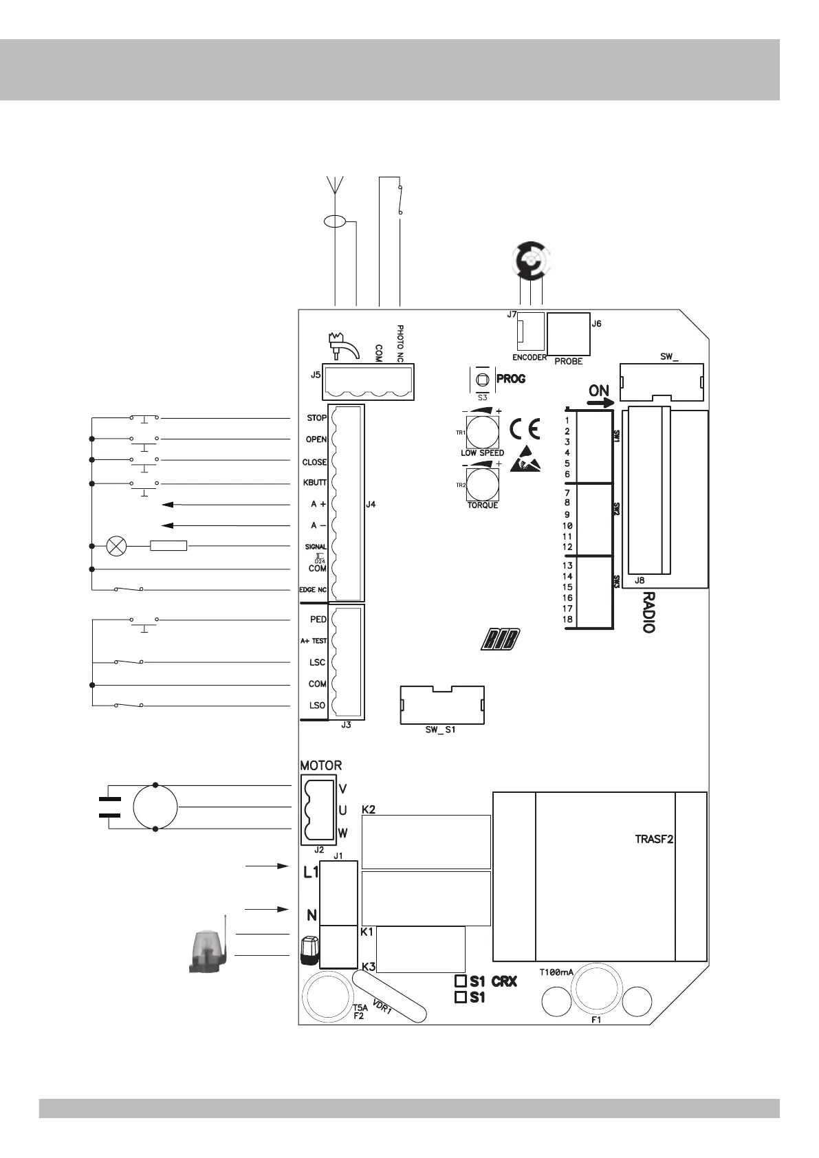
CONEXIONES ELÉCTRICAS
S1-CRX còd. AC07097
CIERRA
ABRE
COMÚN
M
ALIMENTACIÓN
230Vac 50 Hz
INTERMITENTE
230Vac 40W
FINAL DE CARRERA ABRE
FINAL DE CARRERA CIERRA
PEATONAL
ABRE
STOP
CIERRA
PASO PASO
24Vdc 0,4A ± 15%
LED
R=2,2K 1/4W
COMÚN
COSTAS
ANTENA
MASA ANTENA
COMÚN
FOTOCÉLULAS
ENCODER
RADIO

Related product manuals