EasyManua.ls Logo

Robuschi KRVS - Sezioni; Rvs 3 - 21; Sectional Drawing; Rvs 23 - 25

Robuschi KRVS
Print Icon
To Next Page IconTo Next Page
To Next Page IconTo Next Page
To Previous Page IconTo Previous Page
To Previous Page IconTo Previous Page
Loading...
41
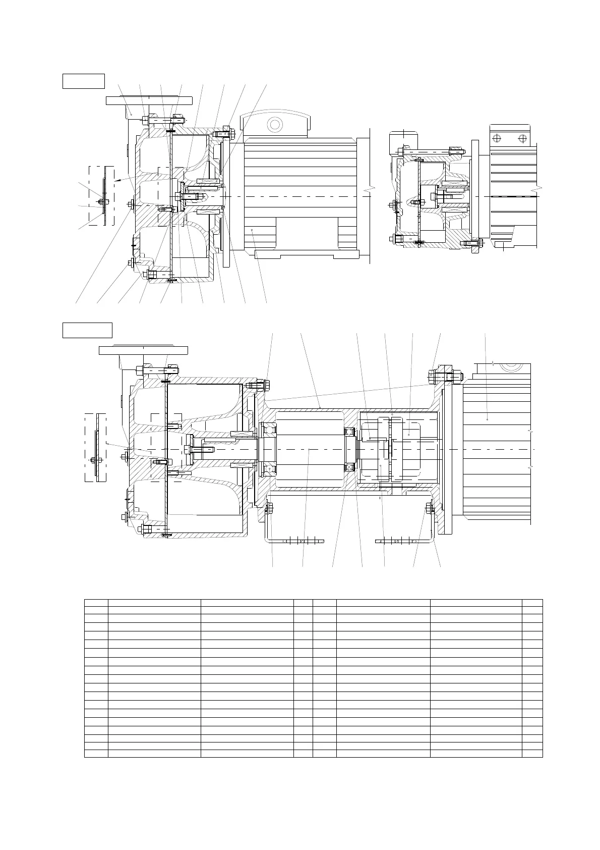
8.2 Sezioni 8.2 Sectional drawing
8.2.1 RVS 3 – 21 8.2.1 RVS 3 – 21
POS Particolare Part POS Particolare Part
1
Corpo
Casing
1
60A
Premivalvola
2
Girante
Impeller
1
68
Spina elastica
Elastic dowel
1
7
Albero
Shaft
1
75A
Tappo
Plug
1
8E
Piastra
Side plate
1
75C
Tappo
Plug
1
8H
Piastra con elemento
Side plate with element
1
79
Tappo
Plug
1
9
Sopporto
Bearing bracket
1
82
Vite
Screw
1
10A
Piede
Foot
2
95
Vite premivalvola
Screw
1
22
Distanziale girante
Impeller spacer
1
101
Semigiunto
Half coupling
1
28
Linguetta
Kay
1
102
Semigiunto
Half coupling
1
27
Ghiera
Nut
1
125
Anello seeger
Elastic ring
1
28
Linguetta
Kay
1
400
Vite
Screw
1
29
Linguetta
Nut
1
401
Vite
Screw
1
31
Cuscinetto
Bearing
1
403
Vite
Screw
1
32
Cuscinetto
Bearing
1
420
Vite
Screw
1
37
Coperchio bloccaggio girante
Cover
1
7450
Coprigiunto
Coupling guard
1
41
Tenuta meccanica
Mechanical seal
1
47
O
-
Ring
O-ring
1
60
Valvola
Valve
1
101
29
32
1027450
41
60
68
8H
68 28
37
47
401
75C
82
8010
420
2
8E
1
95
75A
79
403
7
64
4009
125
8010
10A
31
22
Solo 3/M
7-21/SG
7-16/M

Table of Contents