EasyManua.ls Logo

Rosemount 396P - Page 16

Rosemount 396P
36 pages
Print Icon
To Next Page IconTo Next Page
To Next Page IconTo Next Page
To Previous Page IconTo Previous Page
To Previous Page IconTo Previous Page
Loading...
12
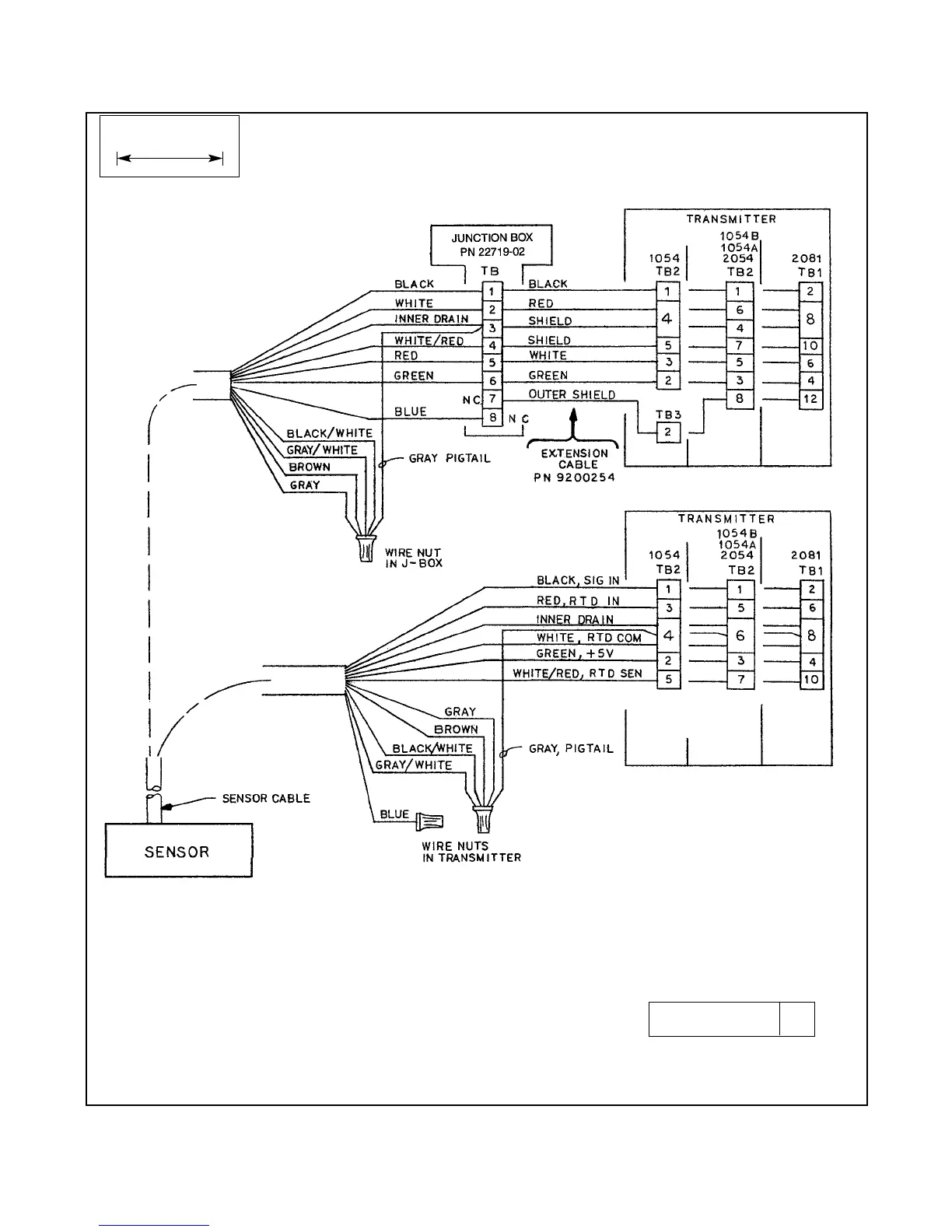
FIGURE 3-3. Wiring Details Model 396P-01-54 for use with and without Junction Box
(PN 22719-02) for Models 1054, 1054A, 1054B, 2054, 2081, and Extension Cable (9200254).
MODEL 396P and 396PVP SECTION 3.0
WIRING - MODEL 396P
DWG. NO. REV.
40396P13 D
WHEN INCH AND METRIC DIMS
ARE GIVEN
MILLIMETER
INCH

Table of Contents