EasyManua.ls Logo

Rotex RVLQ05+08CA - Refrigerant Piping Requirements; Preparing Water Piping; Water Circuit Requirements

Rotex RVLQ05+08CA
122 pages
Print Icon
To Next Page IconTo Next Page
To Next Page IconTo Next Page
To Previous Page IconTo Previous Page
To Previous Page IconTo Previous Page
Loading...
6 Preparation
Installer reference guide
16
RVLQ05+08CAV4 + RHYHBH05AA + RHYHBH/X08AA +
RHYKOMB33AA
ROTEX HPU hybrid
4P355635-1 – 2013.05
6.2.2 Refrigerant piping requirements
Use piping with annealed temper grade, in function of the pipe
diameter.
The minimal pipe thickness should comply with applicable
legislation. The minimal pipe thickness for R410A piping must be
in accordance with the following table.
Pipe for… Outer diameter
(Ø)
Pipe thickness
(t)
Liquid 6.4 mm (1/4") 0.8 mm
t
Ø
Gas 15.9 mm (5/8") 1.0 mm
6.3 Preparing water piping
6.3.1 Water circuit requirements
Use the indoor unit ONLY in a closed water system.
Using the system in an open water system will lead to excessive
corrosion.
The maximum water pressure is 3 bar.
Provide adequate safeguards in the water circuit to ensure that
the maximum pressure is NOT exceeded.
In case heat pump convectors are connected, the temperature of
the water in the convectors should NOT exceed 65°C. If
necessary, install a thermostatic controlled valve.
In case underfloor heating loops are connected, install a mixing
station to prevent water that is too hot from entering the underfloor
heating circuit.
All installed piping and piping accessories (valve, connections,…)
must withstand the following temperatures:
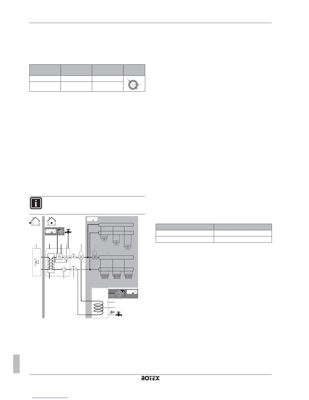
INFORMATION
The following illustration is an example and may NOT
match your system layout.
M
89°C
RAD1 RAD2 RAD3
95°C
65°C
M
a b d e
k
l
j
c f g
FCU1
FCU2
FCU3
hi
a
Outdoor unit
b
Indoor unit
c
Heat exchanger
d
Boiler
e
Bypass valve
f
Pump
g
Shut-off valve (field supply)
h
Motorised 2-way valve (field supply)
i
Motorised 3-way valve (in option kit)
j
Collector
k
Domestic hot water tank (optional)
l
Heat exchanger coil
FCU1...3
Fan coil unit (optional)
RAD1…3
Radiator
Make all water piping connections in accordance with the
applicable legislation and the outlook diagram that is delivered
with the unit, respecting the water inlet and outlet.
Do NOT use excessive force when connecting the piping.
Deformation of the piping can cause malfunctioning of the unit.
Provide drain taps at all low points of the system in order to allow
complete drainage of the water circuit.
Provide a proper drain for the pressure relief valve to avoid water
coming into contact with electrical parts.
Provide air vents at all high points of the system, which must also
be easily accessible for servicing. An automatic air purge is
provided in the indoor unit. Check that the air purge is NOT
tightened too much, so that automatic release of air in the water
circuit is possible.
Only use materials that are compatible with water used in the
system and with the materials used in the indoor unit.
Check that all components in the field piping can withstand the
water pressure and water temperature.
When using non-brass metallic piping, insulate the brass and non-
brass properly so that they do NOT make contact with each other.
This to prevent galvanic corrosion.
Never use Zn-coated parts in the water circuit. Because the unit's
internal water circuit uses copper piping, excessive corrosion may
occur.
Only use appropriate tooling to handle brass, which is a soft
material. If NOT, pipes will get damaged.
Select the water piping diameter in relation to the required water
flow and the available external static pressure of the pump. See
"16 Technical data" on page 88 for the external static pressure
curves of the indoor unit.
You can find the minimum required water flow for the indoor unit
operation in the following table. When the water flow is lower, flow
error 7H will be displayed and the indoor unit will be stopped.
Model Minimum water flow (l/min)
05 5
08 8
When using a 3-way valve in the water circuit make sure that the
domestic hot water circuit and the floor heating circuit is fully
separated.
When using a 2-way valve or a 3-way valve in the water circuit,
the maximum change-over time of the valve must be 60 seconds.
It is strongly recommended to install an additional filter on the
heating water circuit. Especially to remove metallic particles from
foul heating piping, it is advised to use a magnetic or cyclone filter,
which can remove small particles. Small particles may damage
the unit and will NOT be removed by the standard filter of the heat
pump system.
In case of old heating installations, it is recommended to use a dirt
separator. Dirt or sediment from the heating installation can
damage the unit and reduce its lifetime.
If air, moisture or dust gets into the water circuit, problems may
occur. To prevent this:
Only use clean pipes
Hold the pipe end downwards when removing burrs.
Cover the pipe end when inserting it through a wall, to prevent
dust and/or particles entering the pipe.
Use a decent thread sealant to seal connections.

Table of Contents

Related product manuals