EasyManua.ls Logo

Rotex RVLQ05+08CA - Components: Switch Box (Indoor Unit)

Rotex RVLQ05+08CA
122 pages
Print Icon
To Next Page IconTo Next Page
To Next Page IconTo Next Page
To Previous Page IconTo Previous Page
To Previous Page IconTo Previous Page
Loading...
16 Technical data
Installer reference guide
92
RVLQ05+08CAV4 + RHYHBH05AA + RHYHBH/X08AA +
RHYKOMB33AA
ROTEX HPU hybrid
4P355635-1 – 2013.05
m
Thermistors
Determines the water and refrigerant temperature at various
points in the circuit.
n
Air valve
o
By-pass valve
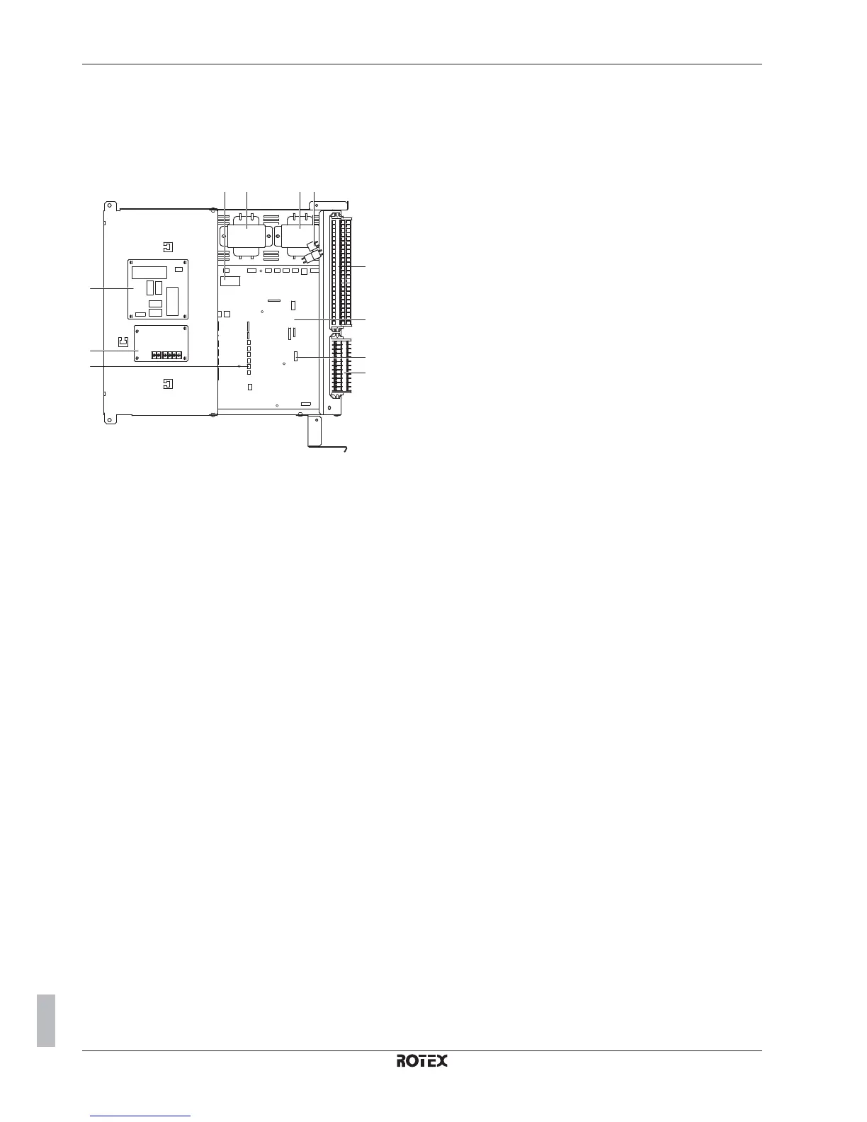
16.2.4 Components: Switch box (indoor unit)
X1M/X2M
X5M
X39A
X9A
A1P
FU1
TR1 TR2
ai a b
c
g
f
j
d
e
h
a
Transformer TR1, TR2
b
Connectors X6YA/X6YB/X6Y
c
Terminal block X2M (high voltage)
d
Digital I/O PCB A4P (only for installations with
digital I/O PCB kit)
e
Demand PCB for power limitation
f
Terminal block X5M (low voltage)
g
Main PCB A1P
h
Socket X9A, receives the thermistor connector.
(Only for installations with domestic hot water tank)
i
PCB fuse FU1
j
Socket X39A, receives the boiler connector
(communication cable)

Table of Contents

Related product manuals