EasyManua.ls Logo

Rotex RVLQ05+08CA - Wiring Diagram; Wiring Diagram: Outdoor Unit

Rotex RVLQ05+08CA
122 pages
Print Icon
To Next Page IconTo Next Page
To Next Page IconTo Next Page
To Previous Page IconTo Previous Page
To Previous Page IconTo Previous Page
Loading...
16 Technical data
Installer reference guide
96
RVLQ05+08CAV4 + RHYHBH05AA + RHYHBH/X08AA +
RHYKOMB33AA
ROTEX HPU hybrid
4P355635-1 – 2013.05
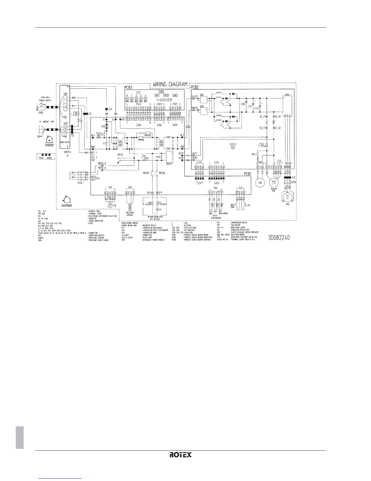
16.4 Wiring diagram
16.4.1 Wiring diagram: Outdoor unit
See the internal wiring diagram supplied with the unit (on the inside of the indoor unit switch box cover). The abbreviations used are listed
below.
Only for RVLQ05CAV3

Table of Contents

Related product manuals