EasyManua.ls Logo

Roxell FLEX-AUGER FA 55 - Page 158

Roxell FLEX-AUGER FA 55
178 pages
Print Icon
To Next Page IconTo Next Page
To Next Page IconTo Next Page
To Previous Page IconTo Previous Page
To Previous Page IconTo Previous Page
Loading...
ROXELL - 031 - 0516
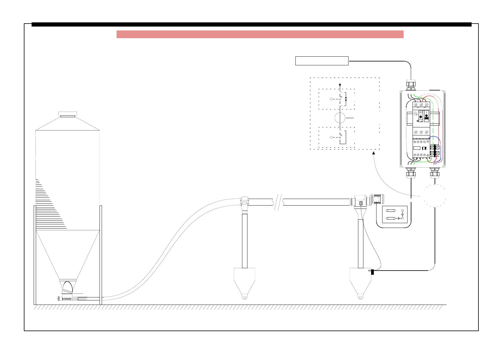
FLEX-AUGER - INSTALLATION INSTRUCTIONS
III-60
Ca
Cb
Z2 U2 V2
U1 V1 Z1
MAXIMUM CABLE LENGTHS TO THE MOTORS: SEE PAGE III-77
Sense of rotation of the auger : see arrow on power unit. Attention : Co mparesettingofmotorprotectionwithdataonmotornameplate.
WIRING DIAGRAM FOR 1X230V
Control unit
1x230V AC (IEC38)
1
2
1
2
2
1
STOP START
OFF
1
L1
3
L2
5
L3
2
T1
4
T2
6
T3
2T1 4T2 6T314NO A2
1L1 3L2 5L3 13NO A1
L2 PEL1
L2 PEL1
1
2
21
Sw1
Sw2
Sw2
Sw1
Connection of start/stop conditions
Start/stop
condition
Level switch
From motor starter
Safety switch
CONNECT EXTRA
START/STOP
CONDITIONS IN SERIES
First start/stop
condition
Last start/stop
condition
Level switch
FA POWER UNIT
Flex-Auger Example
Max. 30° inclination

Table of Contents

Related product manuals