EasyManua.ls Logo

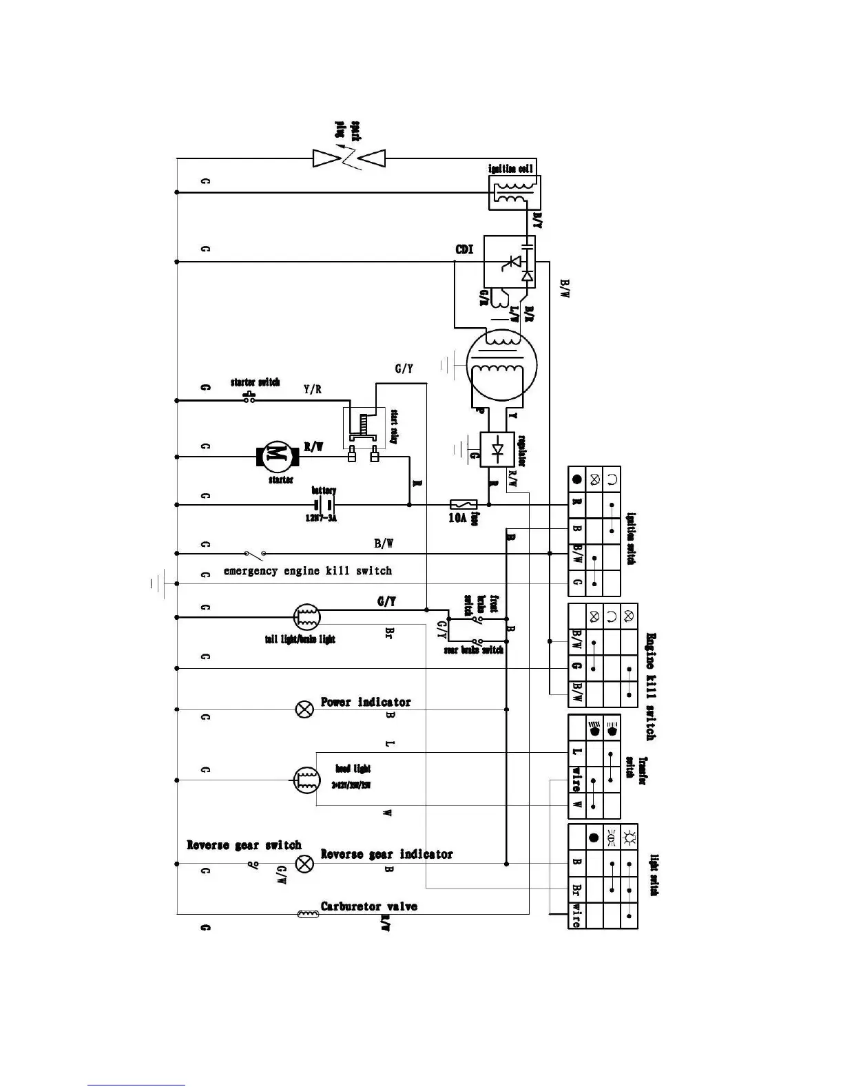
RPS Blizzard 150 - Circuit Diagram

RPS Blizzard 150
84 pages
Print Icon
To Next Page IconTo Next Page
To Next Page IconTo Next Page
To Previous Page IconTo Previous Page
To Previous Page IconTo Previous Page
Loading...
73