EasyManua.ls Logo

schmersal PROTECT-PSC - Page 74

schmersal PROTECT-PSC
267 pages
Print Icon
To Next Page IconTo Next Page
To Next Page IconTo Next Page
To Previous Page IconTo Previous Page
To Previous Page IconTo Previous Page
Loading...
3
Instruction Manual PROTECT-PSC
V 2.6R01 / 04.19
342
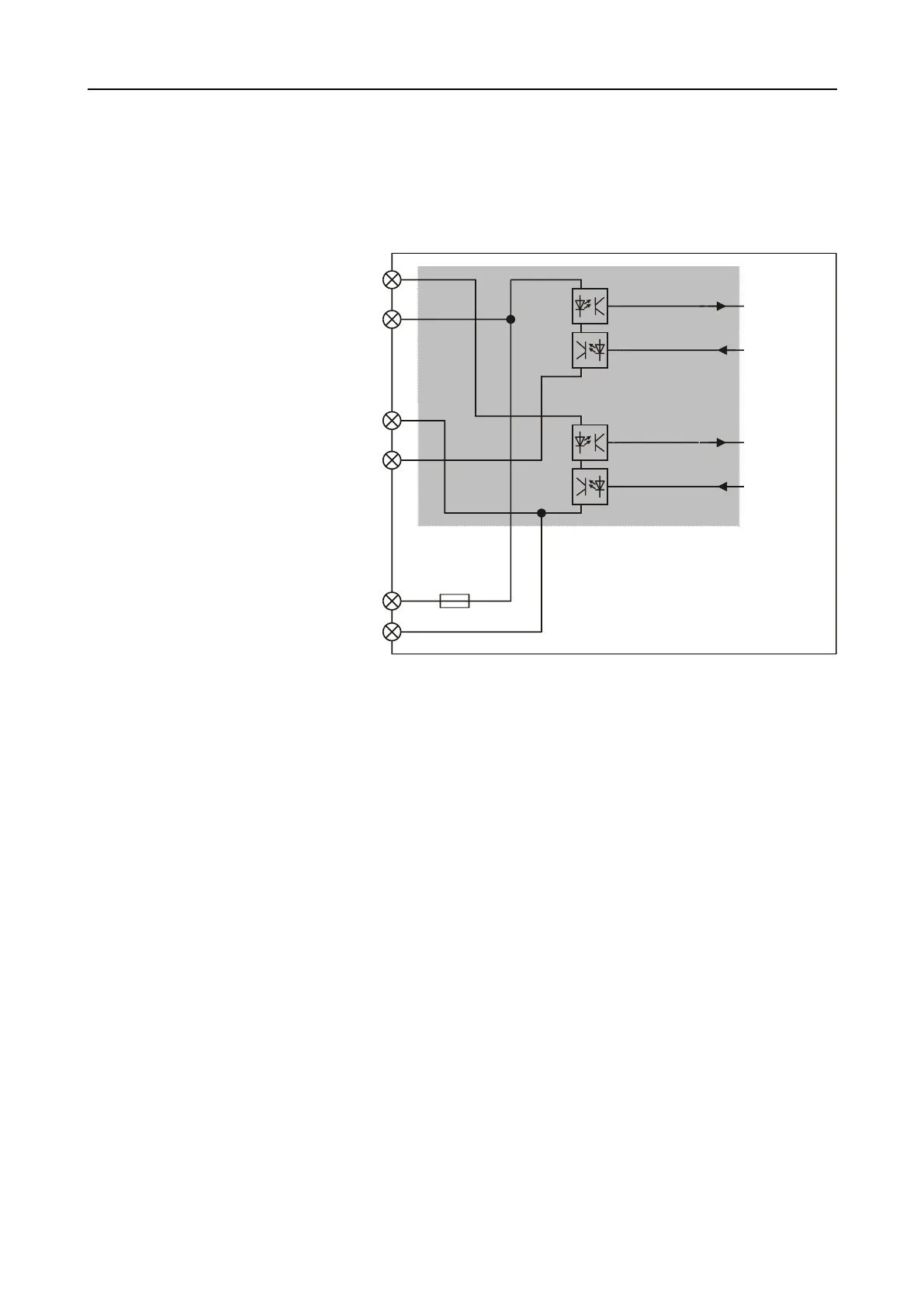
Basic circuit diagram for input for floating sensors
The chart shows the basic structure of an input for floating sensors. The grey
shaded area exists multiply depending on the input module used. Inputs with even
terminal number switch to plus by means of the sensor and with odd terminal
number to minus.
F
F
i
i
g
g
u
u
r
r
e
e
3
3
-
-
2
2
0
0
B
B
a
a
s
s
i
i
c
c
c
c
i
i
r
r
c
c
u
u
i
i
t
t
d
d
i
i
a
a
g
g
r
r
a
a
m
m
f
f
o
o
r
r
i
i
n
n
p
p
u
u
t
t
s
s
f
f
o
o
r
r
f
f
l
l
o
o
a
a
t
t
i
i
n
n
g
g
s
s
e
e
n
n
s
s
o
o
r
r
s
s
processor A
processor A
processor B
input 1
COM+
COM-
channel 0
processor B
channel 1
F1
F1 = internal fuse (3,2A)
input 0
PWR+(24 VDC)
PWR-(0 VDC)

Table of Contents