EasyManua.ls Logo

SERV-WARE SELECT SS-SGF-40L - 05. TECHNICAL SPECIFICATIONS; 5.2 Technical Data

SERV-WARE SELECT SS-SGF-40L
24 pages
Print Icon
To Next Page IconTo Next Page
To Next Page IconTo Next Page
To Previous Page IconTo Previous Page
To Previous Page IconTo Previous Page
Loading...
www.servware.com
800•7685953
Service, Installation & Care Manual
www.servware.com
800•7685953
H
TD
W
D
Models
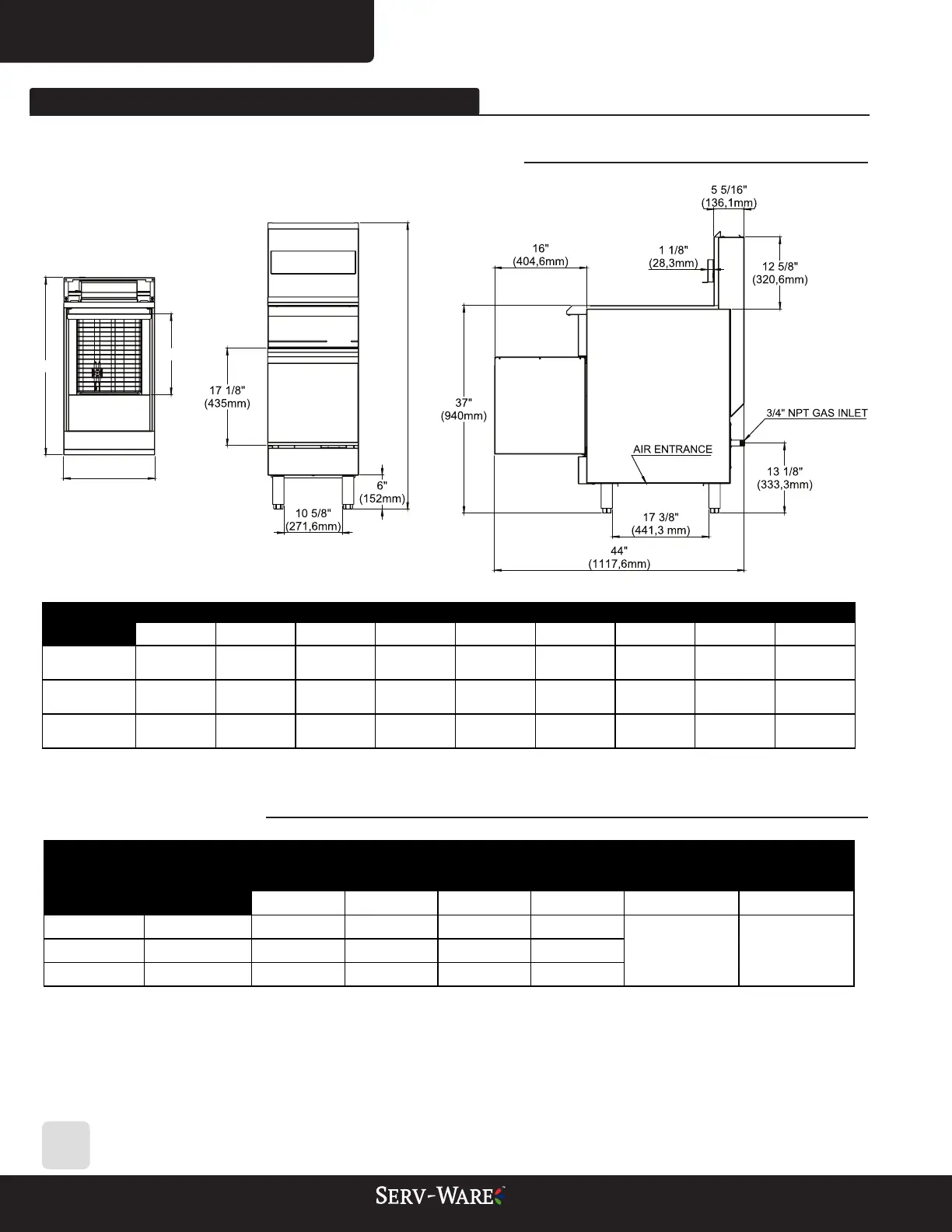
Exterior Product Dimensions & Weight Shipping Crate Dimensions & Weight
Width (W) Depth (D) Height (H) Fw Weight Width Depth Height Weight
SS-SGF-40L 16" 31 7/32" 48 27/64" 15 11/32" 110 lb 22 41/64" 35 7/16" 58 17/64" 150 lb
SS-SGF-50L 16" 31 7/32 " 48 27/64" 15 11/32" 143 lb 22 41/64" 35 7/16" 58 17/64" 283 lb
SS-SGF-70L 20" 33 45/64" 48 27/64" 18 45/64" 157 lb 26 37/64" 35 7/16" 58 17/64" 209 lb
GAS SUPPLY
Models Burners
PROPANE GAS NATURAL GAS Manifold Pressure
kcal/h BTU/h kcal/h BTU/h Propane Gas Natural Gas
SS-SGF-40L
3 22,700 90,000 22,700 90,000
10" W.C 4" W.C
SS-SGF-50L
4 30,300 120,000 30,300 120,000
SS-SGF-70L
5 37,800 150,000 37, 800 150,000
18
05. TECHNICAL SPECIFICATIONS
5.1 Equipment Dimensions and Weight
5.2 Technical Data