EasyManua.ls Logo

Sharp AR-5420 - Page 142

Sharp AR-5420
176 pages
Print Icon
To Next Page IconTo Next Page
To Next Page IconTo Next Page
To Previous Page IconTo Previous Page
To Previous Page IconTo Previous Page
Loading...
AR-203E/5420/M200/M201 ELECTRICAL SECTION 13 - 21
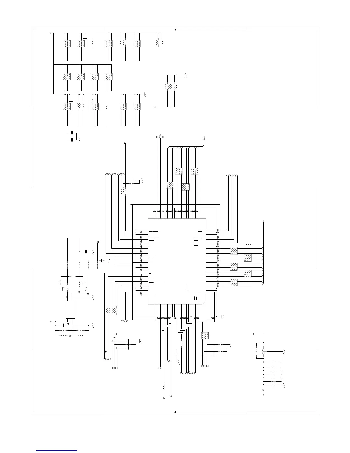
B. MCU PWB (AR-M200/M201)
A
A
B
B
C
C
D
D
E
E
4 4
3 3
2 2
1 1
CPUCLK
(FW)
/LWR#
/CS0#
/CS2#
CPU_SYNC
/CS1#
SCL
CCD_TG
SDA
ARB_INT
A0
A5
A2
A4
A11
A19
A13
A3
A8
A10
A7
A12
A16
A14
A18
A1
A15
A17
A6
A9
/HWR#
/RD#
(SPPD)
CPU_SYNC
/RES_NIC
(PSW)
CCD_TG
(FW)
ARB_INT
/CS3#
/RES_USB20
PROTECT
DMT3
/WDTOVF
D14
P60
POFF
D8
D5
D1
DMT0
D1
D15
D7
D11
D3
D0
D12
D11
D13
D8
D3
P60
D10
D4
D7
D5
DMT1
D9
DMT2
D6
D2
D9
D14
D6
D4
D10
/STBY
/STBY
/PRINTST
D12
D15
D2
D13
/ES_SRDY
ES_CMD
ES_STS
ES_CMD
/ES_SRDY
/PRINTST
ES_STS
/RD#
/LWR#
/HWR#
DMT3
DMT0
DMT2
DMT1
NMI
NMI
/WDTOVF
RSV_IN0
EXTAL
XTAL
SPFMT1
SPFMT3
SPFMT2
SPFMT0
/ES_PAGE
D0
RY/BY
RxD
SPFMT0
SPFMT1
SPFMT2
/TRANSST
SPFMT3
/SCANST
/ES_PAGE
/SCANSP
RY/BY
/CS5#
/CS5#
/SCANST
/SCANSP
/TRANSST
/RES_FAX
/RES_NIC
/RES_USB20
/RES_OA982
/RES_IOASIC
/RES_GASIC
/RES_GASIC
/RES_IOASIC
/RES_OA982
/CS3#
/CS1#
/CS0#
/CS2#
A20
CPUCLK
EXTAL
XTAL
/RES_FAX
SCL
RxD
SDA
TXD
POFF
CRUMSDA
TxD
CPU3.3
CPU3.3
VCC3
VCC3
VCC3
A[20..0] (2,3,4)
(PSW) (8)
CCD_TG (2,5)
/PRINTST(2)
CPU_SYNC (2)
ARB_INT (2)
D[15..0] (2,3,4,13)
(SPPD) (8)
(FW) (5,9)
DMT2 (7)
DMT1 (7)
DMT0 (7)
DMT3 (7)
(TCS_AN)(6)
RTH(6)
ES_STS(9)
ES_CMD(9)
/HWR(3,4)
/LWR(2)
/ES_SRDY(9)
/CSIOASIC(3)
/CSGASIC(2)
/CSSRAM(4)
/CSFROM(4)
SDA (4)
MMCLK (6)
/RD(2,3,4,5)
POFF (6)
TxD (12)
RxD (12)
SCL (4)
BZR (11)
/ES_PAGE(9)
CRUMSDA (16)
CRUMSCL (16)
SPFMT3(5)
SPFMT0(5)
SPFMT1(5)
/SCANSP(2)
PMCLK(6)
SPFMT2/MIRCNT(5)
/TRANSST(2)
/SCANST(2)
RY/BY(4)
/CS5 (13)
CPUCLK# (3)
/RESET1 (5)
VIDEO#(2,5)
LCDCONT(6)
RESETOUT1 (5)
mt_at_home# (5)
/RES_USB20(10)
/RES_FAX (13)
/RES_OA982(9)
/RES_GASIC(2)
/RES_IOASIC(3)
/RES_NIC (15)
(PSFANLK)(8)
TP9
TP65
TP35
TP86
C20 0.1U
C25 0.1U
BR7
NM_10KJX4
1
2
3
4
8
7
6
5
FB1
0J <1608>
R132 10KJ
R26 10KJ
R364 33J
TP52
TP66
TP22
R94 10KJ
R51 33J
TP79
BR21
33JX4
1
2
3
4
8
7
6
5
TP101
BR9
NM_10KJX4
1
2
3
4
8
7
6
5
TP32
TP81
R4 NM
TP72
R23 2KJ
TP106
BR22
33JX4
1
2
3
4
8
7
6
5
TP44
R50 33J
BR3
10KJX4
1
2
3
4
8
7
6
5
TP95
IC2
H8S/2321
HD6412321VF25(H8S/2321)
P35/SCK1
64
P34/SCK0
63
P33/RxD1
62
P32/RxD0
61
P31/TxD1
60
P30/TxD0
59
VCC
58
PD7/D15
57
PD6/D14
56
PD5/D13
55
PD4/D12
54
Vss
53
PD3/D11
52
PD2/D10
51
PD1/D9
50
PD0/D8
49
PE7/D7
48
PE6/D6
47
PE5/D5
46
PE4/D4
45
Vss
44
PE3/D3
43
PE2/D2
42
PE1/D1
41
PE0/D0
40
VCC
39
AVcc
103
Vref
104
P40/AN0
105
P41/AN1
106
P42/AN2
107
P43/AN3
108
P44/AN4
109
P45/AN5
110
P46/AN6/DA0
111
P47/AN7/DA1
112
AVss
113
Vss
114
P17/PO15/TIOCB2/TCLKD
115
P16/PO14/TIOCA2
116
P15/PO13/TIOCB1/TCLKC
117
P14/PO12/TIOCA1
118
P13/PO11/TIOCD0/TCLKB
119
P12/PO10/TIOCC0/TCLKA
120
P11/PO9/TIOCB0/DACK1
121
P10/PO8/TIOCA0/DACK0
122
MD0
123
MD1
124
MD2
125
PG0/CAS
126
PG1/CS3
127
PG2/CS2
128
PG3/CS1
1
PG4/CS0
2
Vss
3
NC
4
VCC
5
PC0/A0
6
PC1/A1
7
PC2/A2
8
PC3/A3
9
Vss
10
PC4/A4
11
PC5/A5
12
PC6/A6
13
PC7/A7
14
PB0/A8
15
PB1/A9
16
PB2/A10
17
PB3/A11
18
Vss
19
PB4/A12
20
PB5/A13
21
PB6/A14
22
PB7/A15
23
PA0/A16
24
PA1/A17
25
PA2/A18
26
PA3/A19
27
Vss
28
PA4/A20/IRQ4
29
PA5/A21/IRQ5
30
PA6/A22/IRQ6
31
PA7/A23/IRQ7
32
P67/CS7/IRQ3
33
P66/CS6/IRQ2
34
Vss
35
Vss
36
P65/IRQ1
37
P64/IRQ0
38
P53/ADTRG
102
P52/SCK2
101
Vss
100
Vss
99
P51/RxD2
98
P50/TxD2
97
PF0/BREQ
96
PF1/BACK
95
PF2/LCAS/ WAIT/BREQO
94
PF3/LWR
93
PF4/HWR
92
PF5/RD
91
PF6/AS
90
VCC
89
PF7/0
88
Vss
87
EXTAL
86
XTAL
85
VCC
84
STBY
83
NMI
82
RES
81
WDTOVF
80
P20/PO0/TIOCA3
79
P21/PO1/YICOB3
78
P22/PO2/TIOCC3
77
P23/PO3/TIOCD3
76
P24/PO4/TIOCA4
75
P25/PO5/TIOCB4
74
P26/PO6/TIOCA5
73
P27/PO7/TIOCB5
72
P63/TEND1
71
P62/DREQ1
70
P61/TEND0/CS5
69
Vss
68
Vss
67
P60/DREQ0/CS4
66
Vss
65
TP13
TP59
TP40
TP24
TP43
TP2
TP48
TP15
BR23
33JX4
1
2
3
4
8
7
6
5
TP70
BR5
10KJX4
1
2
3
4
8
7
6
5
TP26
TP10
TP98
TP93
TP84
C2
0.1U
TP734
C70
NM
BR24
33JX4
1
2
3
4
8
7
6
5
TP724
TP17
C4
100P
R52 10KJ
TP67
TP28
TP76
TP51
TP102
TP87
R19 10KJ
C8 33P
TP80
BR25
33JX4
1
2
3
4
8
7
6
5
R12
22J
R16 33J
TP6
R66 10KJ
BR10
10KJX4
1
2
3
4
8
7
6
5
TP54
TP56
TP19
R2
NM
TP107
TP90
C12
22P
R11
10KJ
BR16
33JX4
1
2
3
4
8
7
6
5
C14
NM
TP73
BR6
10KJX4
1
2
3
4
8
7
6
5
C13
NM
C6
12P
C15
NM
BR17
33JX4
1
2
3
4
8
7
6
5
R17 33J
TP96
BR13
10KJX4
1
2
3
4
8
7
6
5
R20 330J
TP61
TP11
R9 10KJ
C9 33P
R1
NM
TP735
TP64
X1
AT-49
19.6608MHz
BR18
33JX4
1
2
3
4
8
7
6
5
R67 10KJ
TP37
TP29
TP5
TP103
TP99
TP85
TP78
TP36
C21 0.1U
BR19
33JX4
1
2
3
4
8
7
6
5
R18 33J
R384 33J
TP69
TP38
TP20
C22 0.1U
TP108
R3 0J
TP47
TP88
BR20
33JX4
1
2
3
4
8
7
6
5
R13 33J
R6
NM
C23 0.1U
C7 33P
TP7
TP55
TP23
BR12
10KJX4
1
2
3
4
8
7
6
5
TP33
TP3
C10
NM
TP109
TP68
C24 0.1U
R5 10KJ
TP12
TP91
TP82
R78 1KJ
TP42
TP75
TP46
TP14
TP1
TP25
R7
0J
TP729
R8 NM
C19
10U/10V<2012>
TP30
C3
100P
C5 15PF
TP63
TP16
TP97
BR1
10KJX4
1
2
3
4
8
7
6
5
TP49
TP27
R22 33J
R392 10KJ
R21 2KJ
TP74
R95 10KJ
TP50
TP8
BR11
10KJX4
1
2
3
4
8
7
6
5
TP100
C369
NM
TP53
TP34
TP71
R15 100J
L1
NM_ZJSR5101-223TA
TP4
TP21
TP94
TP89
R25 33J
TP57
R24 10KJ
TP31
BR2
10KJX4
1
2
3
4
8
7
6
5
IC1
CY25811SC
XIN/CLKIN
1
XOUT
8
VDD
7
VSS
2
SSCLK
5
FRSEL
6
S0
4
S1
3
R131 10KJ
TP92
TP83
C1
15PF
TP77
TP105
R14 33J
R53 10KJ
TP62
BR4
10KJX4
1
2
3
4
8
7
6
5
TP41
C11 NM
MCU PWB (CPU section) (AR-M200/M201) 1/16

Table of Contents

Other manuals for Sharp AR-5420

Related product manuals