EasyManua.ls Logo

Sharp MX-M503N - Printing on Envelopes

Sharp MX-M503N
804 pages
Print Icon
To Next Page IconTo Next Page
To Next Page IconTo Next Page
To Previous Page IconTo Previous Page
To Previous Page IconTo Previous Page
Loading...
3-7
PRINTER
Contents
PRINTING ON ENVELOPES
The bypass tray can be used to print on special media such as envelopes. The procedure for printing on an envelope
from the printer driver properties screen is described below.
For the types of paper that can be used in the bypass tray, see "IMPORTANT POINTS ABOUT PAPER" (page 1-27) in
"1. BEFORE USING THE MACHINE". For the procedure for loading paper in the bypass tray, see "LOADING PAPER IN
THE BYPASS TRAY" (page 1-34) in "1. BEFORE USING THE MACHINE".
Select the envelope size in the appropriate settings of the application ("Page Settings" in many applications) and then
perform the following steps.
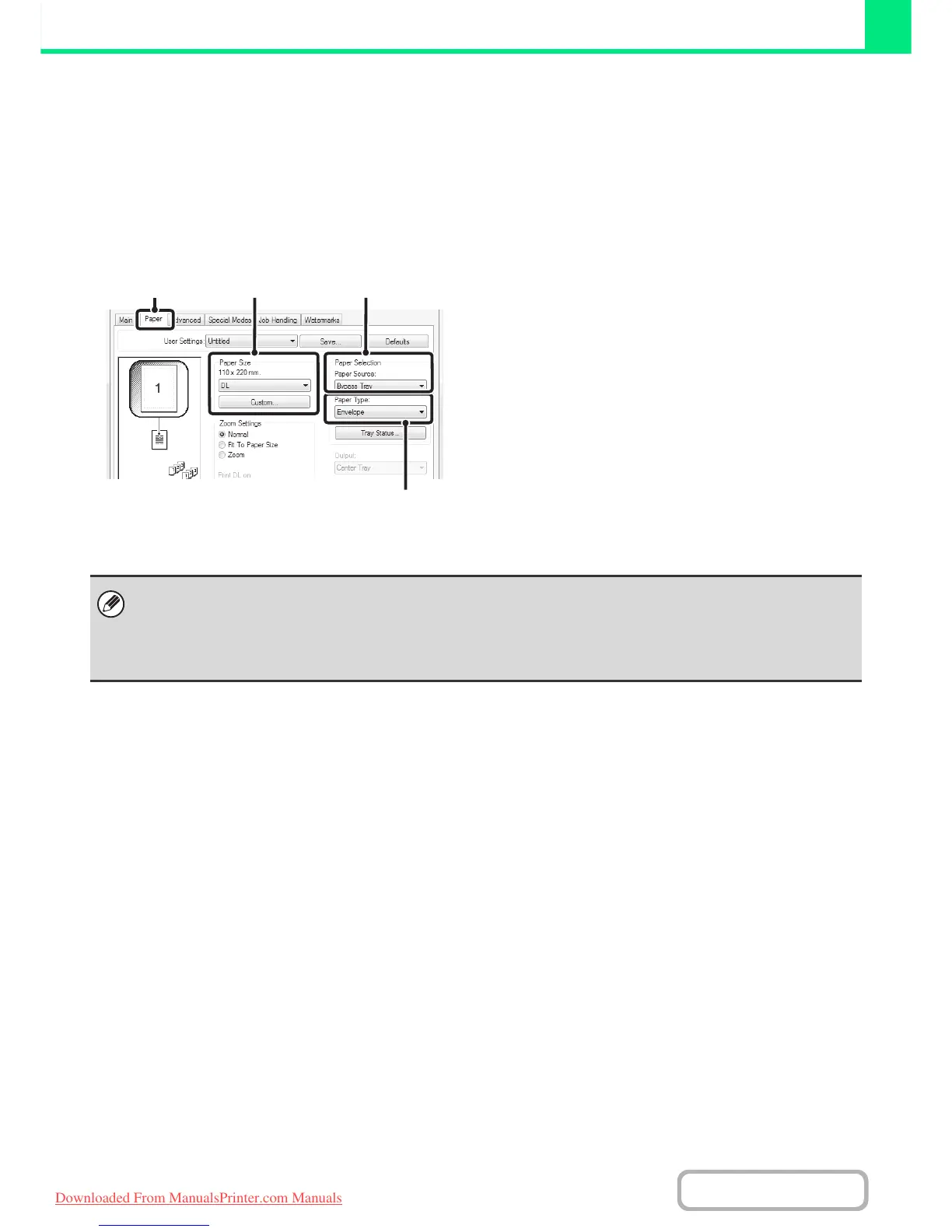
(1) Click the [Paper] tab.
(2) Select the envelope size from the "Paper
Size" menu.
(3) Select [Bypass Tray] from the "Paper
Source" menu of "Paper Selection".
(4) Select [Envelope] from the "Paper Type"
menu.
Set the paper type of the bypass tray to [Envelope] and
make sure the envelope is loaded in the bypass tray.
(4)
(2)(1) (3)
It is recommended that you do a test print to check the print result before using an envelope.
In the case of media that can only be loaded in a certain orientation such as an envelope, you can rotate the image 180
degrees if needed. For more information, see "ROTATING THE PRINT IMAGE 180 DEGREES (Rotate 180 degrees)"
(page 3-36).
For more information on "Paper Selection", see "SELECTING THE PAPER" (page 3-6).
Downloaded From ManualsPrinter.com Manuals

Table of Contents

Other manuals for Sharp MX-M503N

Related product manuals