EasyManua.ls Logo

SICK CLV65 Series - Page 49

SICK CLV65 Series
102 pages
To Next Page IconTo Next Page
To Next Page IconTo Next Page
To Previous Page IconTo Previous Page
To Previous Page IconTo Previous Page
Loading...
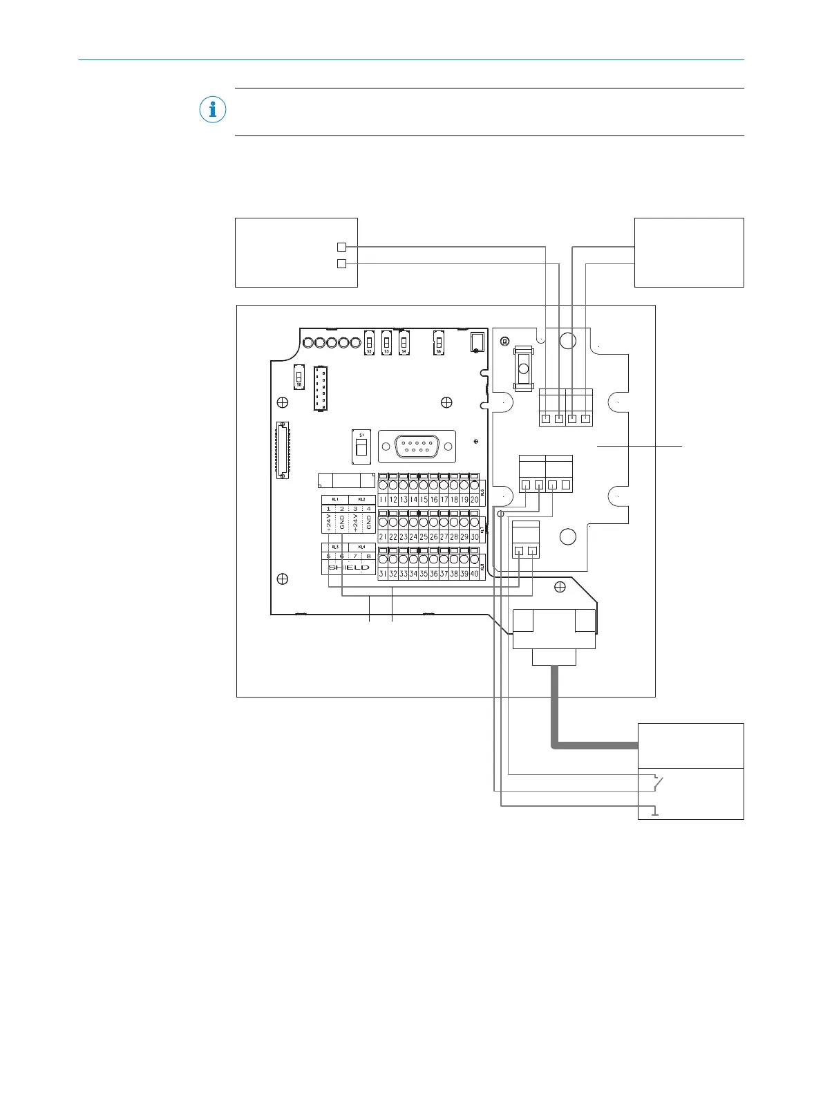
NOTE
The device loses its UL certification if the connecting cables are extended over 2 m.
Using connection module CDM420-0001
The incoming/continuing supply cables in the CDM420-0001 are connected on termi‐
nal block U
IN
of the additional connection circuit board.
F1
24 V GND 24 V GND
PD1
24 V GND NCCLV
SWITCH
U
IN
24 V GND
CDM
HEATER
1
2
!
"
1 1
22
5
3 4
§
%
$
6
7
8
Figure 37: Supply voltage wiring for device and heating in CDM420-0001 connection module
1
Supply voltage
2
GND
3
GND (black)
4
Supply voltage (red)
5
15-pin cable
6
CLV switch (brown)
7
Supply voltage (red)
8
GND (black)
!
Control cabinet
ELECTRICAL INSTALLATION 6
8019588/129Z/2019-02-07 | SICK O P E R A T I N G I N S T R U C T I O N S | CLV63x, CLV64x, CLV65x
49
Subject to change without notice

Table of Contents

Related product manuals