EasyManua.ls Logo

Siemens 6SE7036-1EE85-1AA0 - Power Sections

Siemens 6SE7036-1EE85-1AA0
274 pages
To Next Page IconTo Next Page
To Next Page IconTo Next Page
To Previous Page IconTo Previous Page
To Previous Page IconTo Previous Page
Loading...
Connection 09.02
3-28 Siemens AG 6SE7087-6AK85-1AA0
Rectifier/Regenerating Unit Operating instructions
3.6 Power sections
-
+
K
K
K
AKA
AKA
AKA
AAKK
AAKK
AAKK
V25+V22
G2
G1
V23+V26
G2
G1
V21+V24
G2
G1
V15+V12
G2
G1
V13+V16
G2
G1
V11+V14
G2
G1
X48-3
X48-1
X48-4
X48-2
X47-1
X47-3
X47-4
X47-2
X13-1
X13-2
X16-2
X16-1
X15-1
X15-2
X12-2
X12-1
X11-1
X11-2
X14-2
X14-1
X24-1
X24-2
k
l
X1: C/L+
X1: D/L-
T3 T4
K
L
K
L
l
X21-2
X21-1
X26-1
X26-2
X23-2
X23-1
X22-1
X22-2
X25-2
X25-1
F10
A
AK
G2 G1
K
A
AK
G2 G1
K
A
AK
G2 G1
K
AK
G1 G2
AK
G1 G2
A
AK
G1 G2
K
T2
C/L+W1/L3
T1
A
K
A
K
V1/L2U1/L1
X24 X21 X26 X23 X22 X25
X11 X14 X13 X16 X15 X12
T3
1W2/1T3
T4
1V2/1T21U2/1T1
X1:
X4:
k
X4: 1U2/ 1V2/ 1W2/
1T1 1T2 1T3
X1: U1/ V1/ W1/
L1 L2 L3
D/L-
V23+26 V25+22V21+24
V11+14 V13+16 V15+12
k
l
T1
T2
K
L
K
L
l
k
R76
R78
R75
R77
F2
T3,2A
X9-4
X9-3
X9-5
F1
T2A
X9-1
X9-2
K1-2
F10
C
D
U1
V1
W1
1U2
1V2
1W2
X30-1
X30-2
X239
X20-1
X20-2
X20.1-1
X20.1-2
M
E1
N.C.
-+
PE
A23
C98043-A1681
A23
C98043-A1681
A23
C98043-A1681
J
R100
A10-X109
(C98043-A1680)
Load 1
Load 2
Termal sensor
on the heatsink
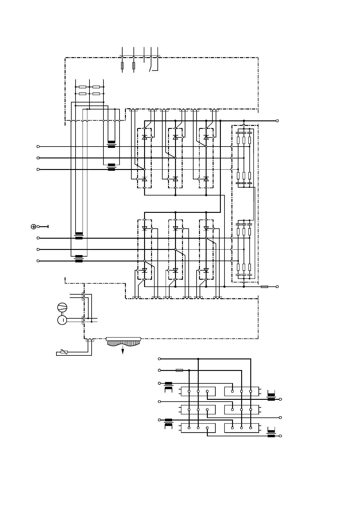
Arrangement of thyristor modules
Figure 3.17 Power section, 6SE7022-1EC85-1AA0, 6SE7024-1EC85-1AA0 and 6SE7028-6EC85-1AA0,(380-480V / 21A, 41A and 86A)
https://www.aotewell.com
AoteWell Automation Sales Team
Sales@aotewell.com
AoteWell LTD
Buy Siemens PLC HMI Drives at AoteWell.com
https://www.aotewell.com

Table of Contents

Related product manuals