EasyManua.ls Logo

Siemens LMV50 series

Siemens LMV50 series
327 pages
To Next Page IconTo Next Page
To Next Page IconTo Next Page
To Previous Page IconTo Previous Page
To Previous Page IconTo Previous Page
Loading...
191/327
Building Technologies Basic Documentation LMV5... CC1P7550en
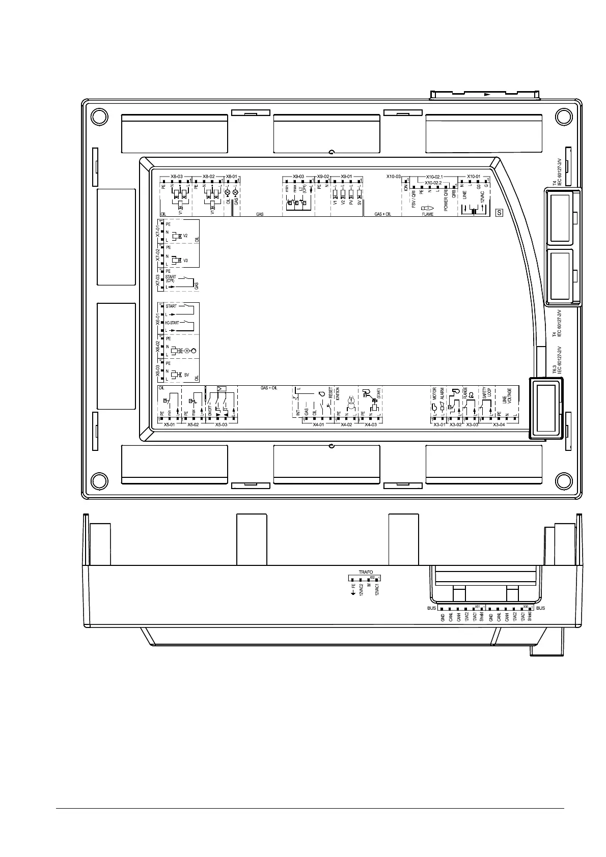
10 Connection terminals / coding of connectors 22.05.2018
10.2 Connection terminals LMV51.000x1 /
LMV51.000x2 / LMV51.040x2
7550z44/1114
Figure 87: Connection terminals LMV51.000x1 / LMV51.000x2 / LMV51.040x2

Table of Contents

Other manuals for Siemens LMV50 series

Related product manuals