EasyManua.ls Logo

Siemens LMV50 series

Siemens LMV50 series
327 pages
To Next Page IconTo Next Page
To Next Page IconTo Next Page
To Previous Page IconTo Previous Page
To Previous Page IconTo Previous Page
Loading...
237/327
Building Technologies Basic Documentation LMV5... CC1P7550en
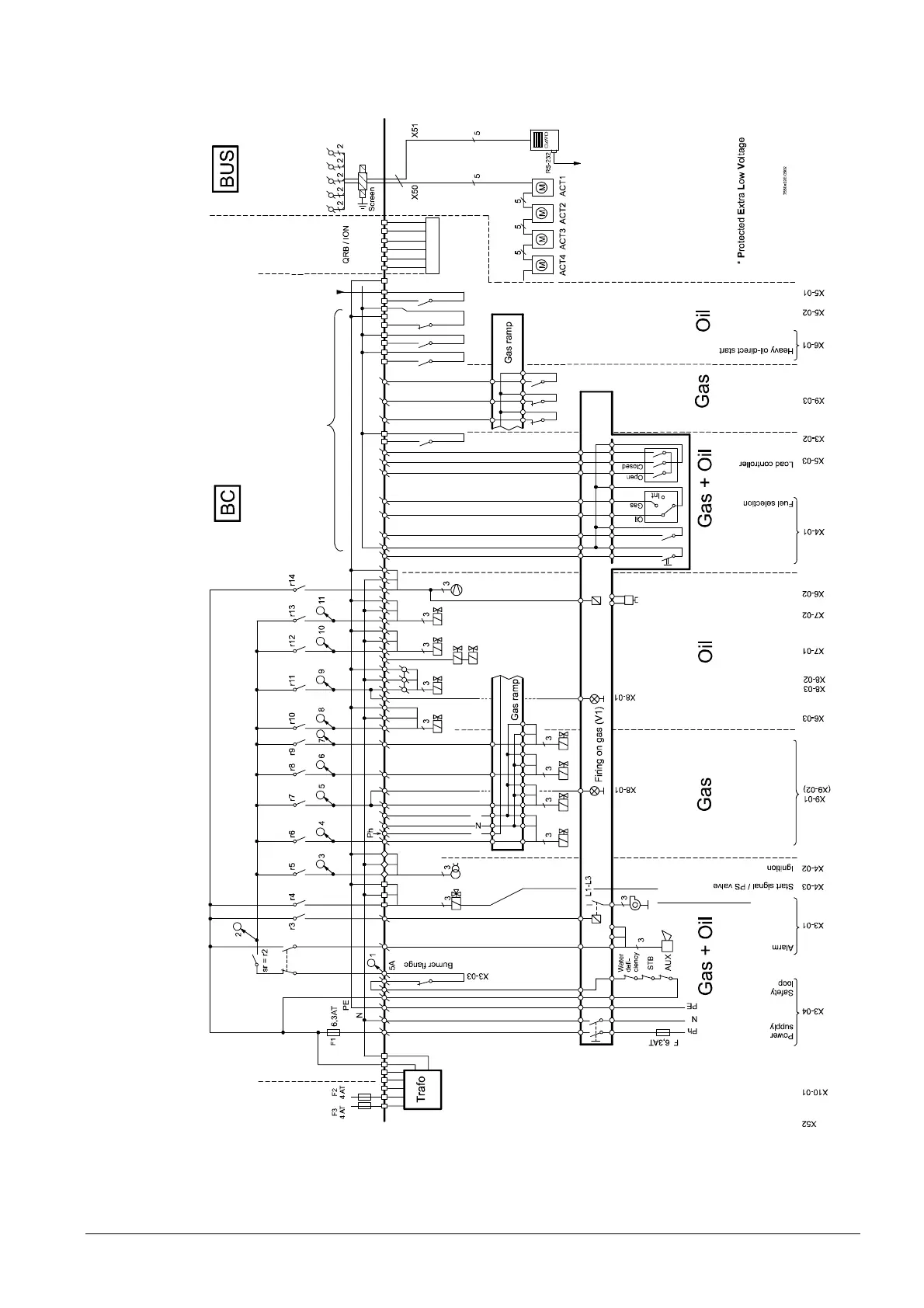
17 Block diagram of contact links 22.05.2018
17 Block diagram of contact links
Firing on oil (V1)
Extern
a
l
t
r
a
f
o
Mains
s
i
d
e
t
r
a
f
o
SV
Fan
V 1
PV
V 2
2 x 115 V
al = r1
Pressure switch - VP / or CPI
Fan contactor contact
or / FGR-PS
Pressure switch min.
Pressure switch max.
Pressure switch min./
release of startup
Release of startup
Pressure switch max.
external
Magnetic clutc
h
/
o
i
l
p
u
m
p
Reset
Air pressure switch (A
P
S
)
P
l
a
n
t
O N/O FF
Ph AC 230 V
Inputs
Fla
m
e
s
i
g
n
a
l
a
m
p
l
i
f
i
e
r
C
A
N
b
u
s
I
n
f
o
a
n
d
p
o
w
e
r
s
u
p
p
l
y
F
u
e
a
r
t
h
PELV*
V 3
V 2
V 1
SV or preheater startup with heavy oil
L
o
w
v
o
l
t
a
g
e
s
i
d
e
t
r
a
f
o
P
E
Air damper
Gas damper
Oil pressure controller
Mixing device
Display and
operation
A
Z
L
P
C
PELV*
P
h
F
l
a
m
e
d
e
t
e
c
t
o
r
Q
R
I
,
Q
R
B
X
1
0
-
0
2
I
o
n
i
z
a
t
i
o
n
X
1
0
-
0
3
Figure 110: Block diagram of contact links for LMV5

Table of Contents

Other manuals for Siemens LMV50 series

Related product manuals