EasyManua.ls Logo

Siemens LMV50 series

Siemens LMV50 series
327 pages
To Next Page IconTo Next Page
To Next Page IconTo Next Page
To Previous Page IconTo Previous Page
To Previous Page IconTo Previous Page
Loading...
236/327
Building Technologies Basic Documentation LMV5... CC1P7550en
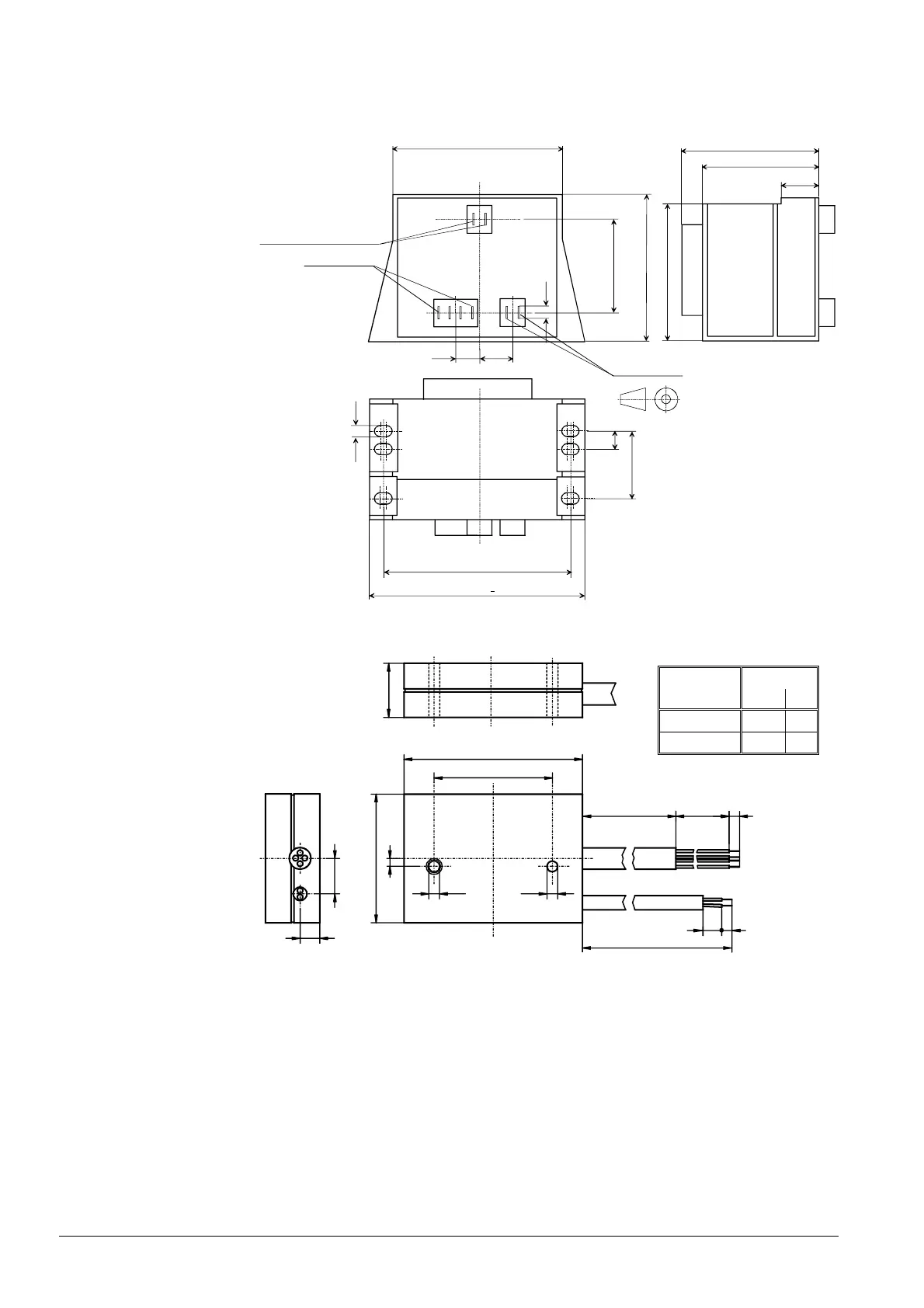
16 Dimensions 22.05.2018
Dimensions in mm
93.6
6.3
53
79.3
12 V coil
66.3
77.8
5.3
15
45
102.5
7550m04e/0906
10 20
12 V coil
AGG5.210: 120 V coil
AGG5.220: 230 V coil
77.3
22
120
+ 0.5
Figure 108: Dimensions of AGG5.210 / AGG5.220
90,5
60
220
69
6
A
B6
5,4
5,4
13
18
4
65,6
27,5
7435m01/0301
Figure 109: Dimension AGQ1.xA27
AGG5.210 / AGG5.220
AGQ1.xA27
Type Measure
A B
AGQ1.2A27 300 220
AGQ1.3A27 1200 350

Table of Contents

Other manuals for Siemens LMV50 series

Related product manuals