EasyManua.ls Logo

Siemens SCALANCE X-300 Series

Siemens SCALANCE X-300 Series
76 pages
To Next Page IconTo Next Page
To Next Page IconTo Next Page
To Previous Page IconTo Previous Page
To Previous Page IconTo Previous Page
Loading...
SCALANCE X-300
Compact Operating Instructions, 05/2016, A5E00982643-14
61
Dimension drawings
7
7.1
Dimension drawing
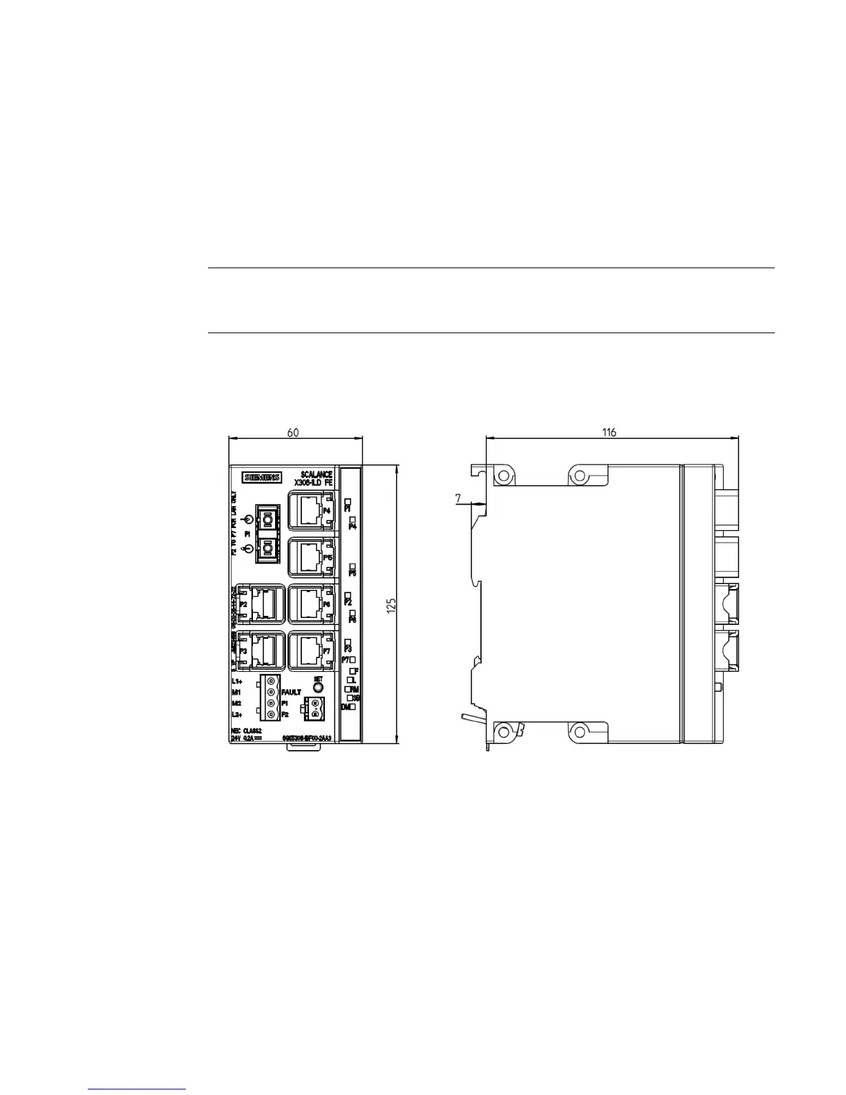
Note
The IE Switches X
-300 are available in small, medium and large variants.
The
dimension drawings are shown below.
Small design
Image 7-1 Small design dimension drawing (example used here SCALANCE X306-1LD FE)

Table of Contents

Other manuals for Siemens SCALANCE X-300 Series

Related product manuals