EasyManua.ls Logo

Siemens SIMATIC TI500 - Page 85

Siemens SIMATIC TI500
94 pages
Print Icon
To Next Page IconTo Next Page
To Next Page IconTo Next Page
To Previous Page IconTo Previous Page
To Previous Page IconTo Previous Page
Loading...
Configuring the PLC for Fisher PROVOX
D-8
TIWAY I Gateway User Manual
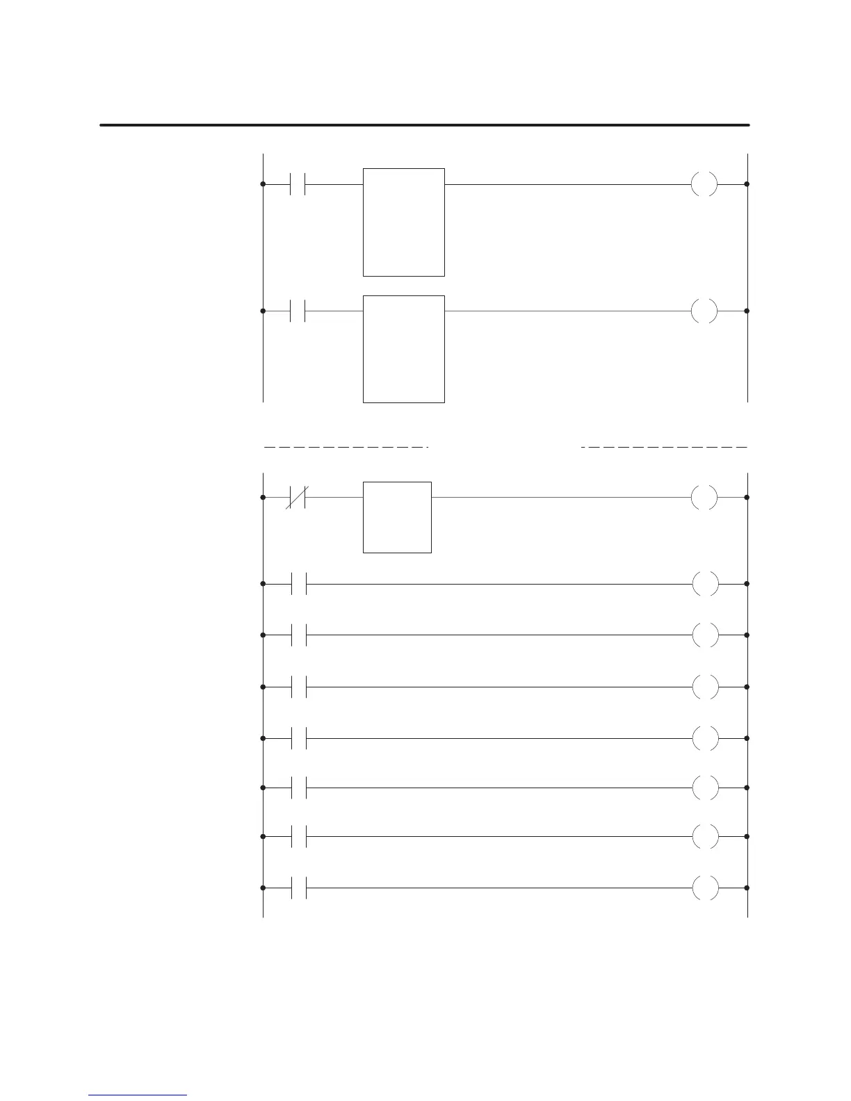
PLC Programming Example (continued)

0
0


0
0



'(/ -$, .)"++& )'% &+.')# +' 
'(/ -$, .)"++& )'% &+.')# +' 
'(/  +' 
$'#   "&+' '&+"!,',* %%')/
'(/ "*)+ -$,* .)"++& -" &+.')# +' 
(cont’d)




 




 
 






II. PM550 Example Program
End

Table of Contents

Related product manuals