EasyManua.ls Logo

Siemens SINAMICS S120 - Removing Motor Modules

Siemens SINAMICS S120
154 pages
To Next Page IconTo Next Page
To Next Page IconTo Next Page
To Previous Page IconTo Previous Page
To Previous Page IconTo Previous Page
Loading...
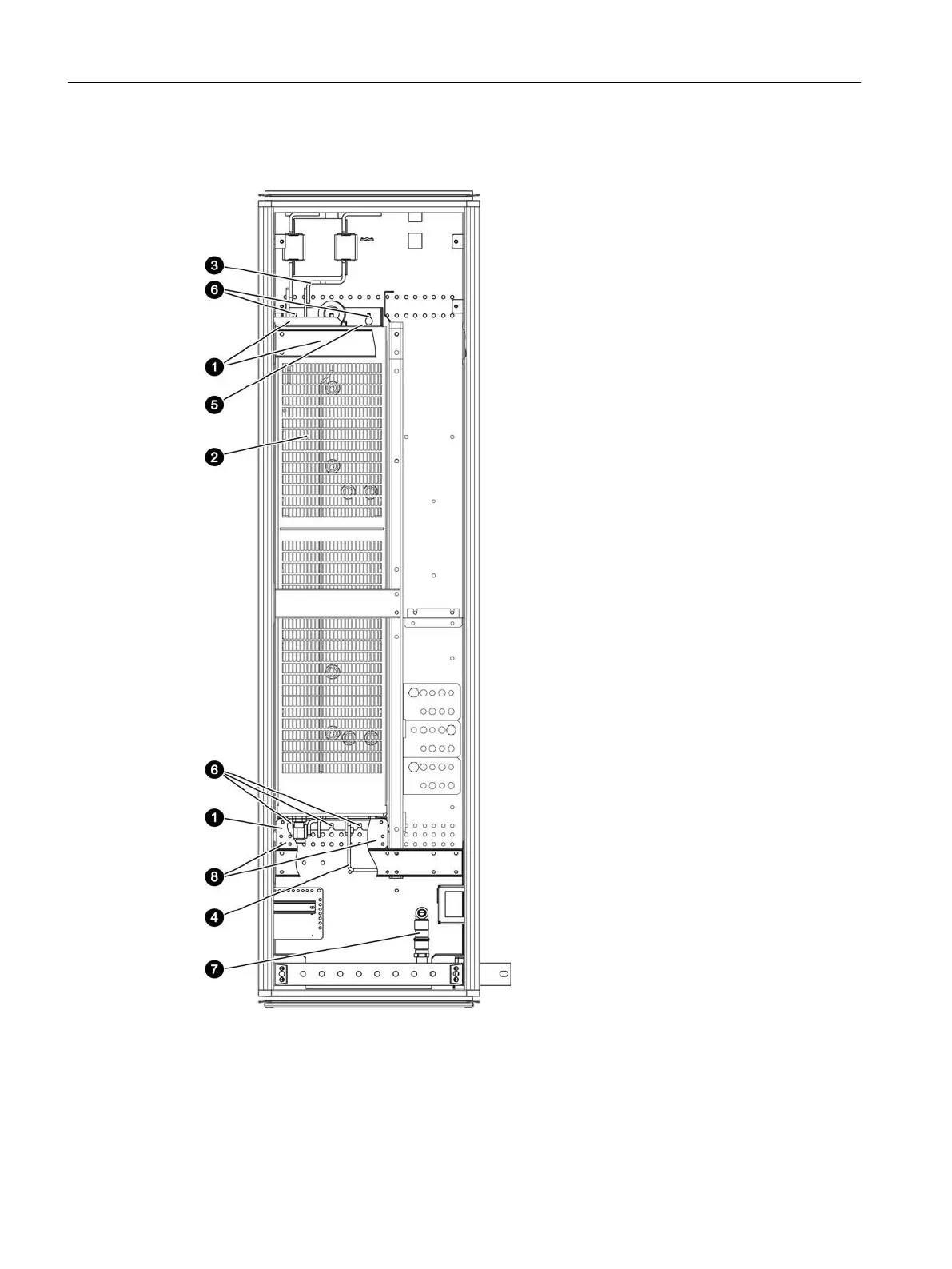
8.5.1.4 Removing Motor Modules
Figure 8-8 Replacing the Motor Module
Servicing
8.5 Repairs
Applications for Cabinet Modules, liquid cooled
126 Operating Instructions, 04/2015, A5E35974555A

Table of Contents

Other manuals for Siemens SINAMICS S120

Related product manuals