EasyManua.ls Logo

Sime METRO - Page 12

Sime METRO
Print Icon
To Next Page IconTo Next Page
To Next Page IconTo Next Page
To Previous Page IconTo Previous Page
To Previous Page IconTo Previous Page
Loading...
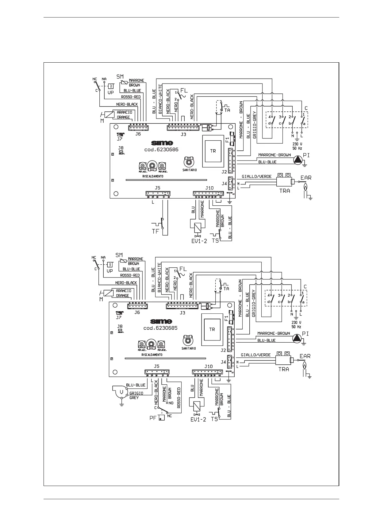
10
LEGENDA
F1 Fusibile (1.6 AT)
TR Trasformatore 230/24V
PI Pompa impianto
EV1-2 Bobina valvola gas
V Ventilatore
PF Pressostato fumi
VP Valvola pressostatica
M Modulatore
C Selettore
OFF/EST/INV/SBLOCCO
SM Sonda riscaldamento
TA Termostato ambiente
EAR Elettrodo accensione/rivelazione
TRA Trasformatore d’accensione
TS Termostato sicurezza 100°C
FL Flussostato
TF Termostato fumi
Nota: Il termostato ambiente deve
essere collegato ai morsetti 10-11 del
connettore “TA” dopo aver tolto il ponte.
Fig. 17
2.11.3 Schema elettrico
versione “25 BF”
versione “25 OF”
CODICI RICAMBI
CONNETTORI:
J2 cod. 6278646
J3 cod. 6278645
J5 cod. 6278624
J6 cod. 6278662
J10 cod. 6278664
CODICI RICAMBI
CONNETTORI:
J2 cod. 6278646
J3 cod. 6278645
J5 cod. 6278648
J6 cod. 6278644
J10 cod. 6278647

Related product manuals