EasyManua.ls Logo

Sime METRO - Characteristics

Sime METRO
Print Icon
To Next Page IconTo Next Page
To Next Page IconTo Next Page
To Previous Page IconTo Previous Page
To Previous Page IconTo Previous Page
Loading...
3.1 ELECTRONIC BOARD
The electronic boards are manufactured in
compliance with the EEC 73/23 low-voltage
directives. They are supplied with 230V and,
through a built-in transformer, send a volta-
ge of 24V to the following components:
modulator, D.H.W./C.H. sensors, room stat,
water flowmeter and time programmer.
An automatic and continuous modulation
system enables the boiler to adjust the heat
output to the various system requirements
or the User’s needs. The electronic compo-
nents are guaranteed against a temperatu-
re range of –10 to +60°C.
3.1.1 Fault finding
The indicator leds signalling irregular
and/or incorrect operation of the equip-
ment are indicated in fig. 18.
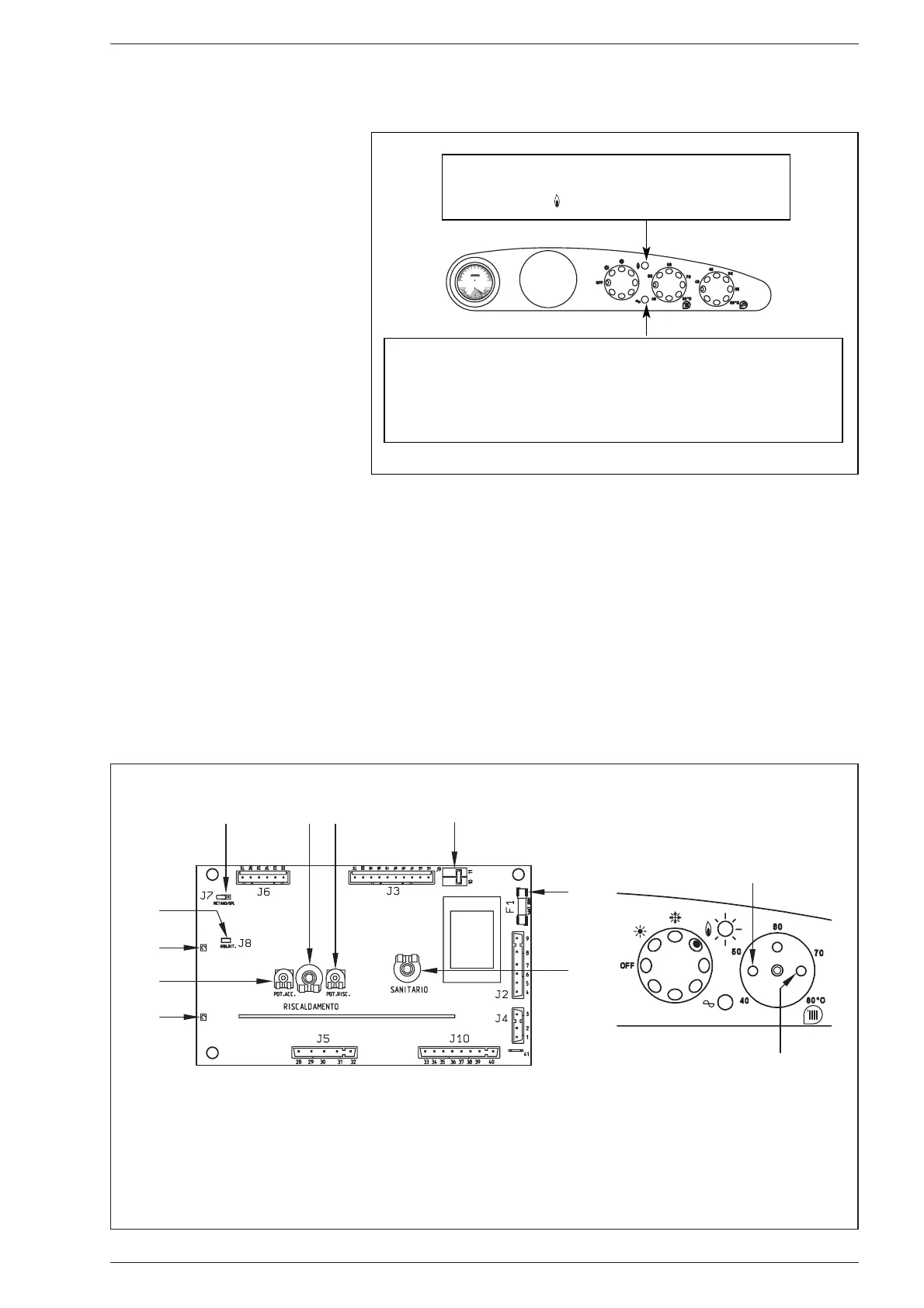
3.1.2 Devices
The electronic board is equipped with the
following devices (fig. 19):
“POT. RISC.” trimmer (1)
Sets the maximum heating power value.
To increase the value turn the trimmer
clockwise; to reduce the value turn the
trimmer anticlockwise.
“POT. ACC.” trimmer (6)
Trimmer to vary the pressure level upon
ignition (STEP), of the gas valve.
According to the type of gas for which
the boiler is equipped, the trimmer must
be regulated so as to obtain a pressure
of approx. 3 mbar at the burner for
methane gas and 7 mbar for butane gas
(G30) and propane gas (G31).
To increase pressure, turn the trimmer
clockwise; to reduce pressure, turn the
trimmer counterclockwise.
The slow ignition pressure level can be
set during the first 10 seconds following
burner ignition.
After setting the pressure level upon
ignition (STEP) according to the type of
gas, check that the pressure for hea-
ting is still at the value previously set.
Connector “METANO-GPL(4)
With the connector disconnected, the
boiler is ready to function with METHANE;
with the connector connected with GPL.
ANN. RIT.” connector (5)
In the heating phase, the electronic
board is programmed to include a bur-
ner technical delay interval of approx. 90
seconds, which occurs both at system
cold starting and at subsequent re-igni-
tions. The aim is to overcome the pro-
blem of repeated ignitions and turning off
with very short time intervals between.
This could occur in particular in systems
80
3 CHARACTERISTICS
Fig. 19
KEY
1 “Heat output” trimmer
2 Fuse (F 1,6A)
3 D.H.W. potentiometer
4 Connector “METHANE/GPL
5 Connector “Delay cancellation”
6 “Ignition power” trimmer
7 Block red led
8 C.H. potentiometer
9 Bi-colour led gree/orange
10 Connector “TA
NOTE: To have access to the regulating
trimmers (1) and (6) take off the C.H.
potentiometer knob.
B
A
C
6
1
2
3
5
9
7
6
1
8
4
10
Fig. 18
Bi-colour green led off if power is cut-off.
Bi-colour orange led: C.H. sensor (SM) fault
.
Bicolour green led flashing - in case of interception by the smoke safety device in the
version “OF”: reinstate the thermostat button to restore functioning.
Green led flashing: fan/smoke pressure switch failure (“BF” vers.).
Red led on, ignition blocked/safety stats tripped:
turn the rotary switch in the position
( ) to restore functioning
0
30
60
90
120
bar
°C
0
3
4
1

Related product manuals