EasyManua.ls Logo

Sime METRO - Page 38

Sime METRO
Print Icon
To Next Page IconTo Next Page
To Next Page IconTo Next Page
To Previous Page IconTo Previous Page
To Previous Page IconTo Previous Page
Loading...
3.1 FICHA ELECTRONICA
Las ficha electrónicas se producen confor-
me a la directiva sobre Baja Tensión CEE
73/23. Se alimentan con 230V y, por
medio de un transformador incorporado,
envían tensión de 24V a las partes siguien-
tes: modulador, sonda sanitario/calefac-
ción, termóstato ambiente, medidor de flujo
de agua y reloj programador.
Un sistema de modulación automática y
continua permite a la caldera adaptar su
potencia a las diferentes necesidades de la
instalación o del usuario.
Se garantiza el funcionamiento de los com-
ponentes electrónicos en un campo tempe-
raturas de 0 hasta +60°C.
3.1.1 Anomalías de funcionamiento
Los led que señalan un irregular y/o no
correcto funcionamiento del aparato están
indicados en la fig. 28.
3.1.2 Dispositivos
La ficha electrónica presenta los dispositi-
vos siguientes (fig. 19):
Trímer “POT. RISC.” (1)
Regula el valor máximo de potencia cale-
facción. Para aumentar el valor girar el
trímer en sentido horario, para disminuir-
lo girar el trímer en sentido antihorario.
Trímer “POT. ACC.” (6)
Trímer para variar el nivel de presión
para el encendido (STEP) de la válvula
gas. Según el tipo de gas para el cual la
caldera ha sido fabricada, habrá que
regular el trímer para obtener en el que-
mador una presión de aproximadamente
3 mbar para gas metano y 7 mbar para
gas butano (G30) y propano (G31). Para
aumentar la presión hay que girar el trí-
mer en sentido horario, para diminuirla
girarlo en sentido antihorario. El nivel de
presión para el encendido lento se puede
programar durante los primeros 10
segundos a partir del momento en que
se enciende el quemador.
Después de establecer el nivel de pre-
sión para el encendido (STEP) en fun-
ción del tipo de gas, controlar que la
presión durante la calefacción siga en
el valor introducido antes.
Conector “METANO/GPL(4)
La caldera, con conector no introducido,
está predispuesta para funcionar con
gas METANO; con el conector introducido
con GPL.
Conector ANN. RIT.(5)
La ficha electrónica es programada,
durante la fase de calefacción, con una
pausa técnica del quemador de aproxi-
madamente 90 segundos, que se advier-
te sea en el encendido en frío, sea en los
encendidos sucesivos.
Esto para evitar encendidos y apagados
con intervalos muy pequeños que podrían
ocurrir particularmente en instalaciones
con altas pérdidas de carga.
36
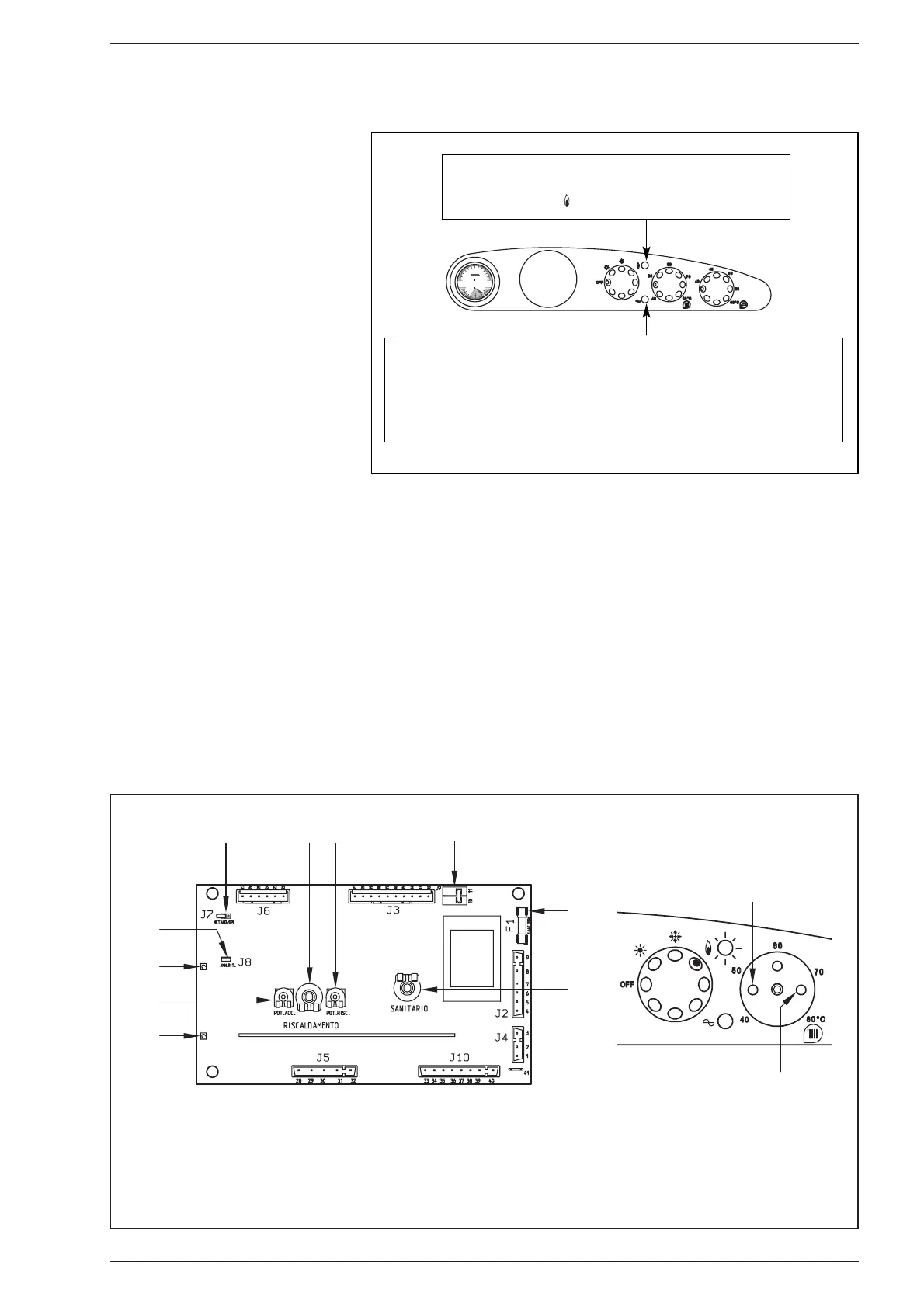
3 CARACTERISTICAS
Fig. 19
LEYENDA
1 Trímer “Potencia calefacción”
2 Fusible (F 1,6A)
3 Potenciómetro sanitario
4 Conector “METANO/GPL ”
5 Conector Anulación retrasos”
6 Trímer “Potencia encendido”
7 Led rojo de bloqueo
8 Potenciómetro calefacción
9 Led bicolor verde/
anaranjado
10 Conector “TA
NOTA:
Para acceder al trímer de regulación
(1) y (6) quitar la manipla del potenció-
metro de calefacción.
B
A
C
6
1
2
3
5
9
7
6
1
8
4
10
Fig. 18
Led bicolor verde apagado en caso de falta de tensión.
Led bicolor anaranjado en caso de anomalía sonda (SM).
LED bicolor verde intermitente en caso de intervención del dispositivo de seguridad humos
en la vers. “OF”: rearme el pulsador del termóstato para restablecer el funcionamiento.
Led verde intermitente desperfecto ventilador/presóstato humos
(vers. “BF”).
Led rojo de bloqueo encendido/intervención termóstatos de
seguridad: girar el selector OFF/VER/INV/DESBLOQUEO
en la posición ( ) para reactivar el funcionamento
0
30
60
90
120
bar
°C
0
3
4
1

Related product manuals