EasyManua.ls Logo

Simplex 4100-1411 - Audio Input Card;typical audio interconnections

Simplex 4100-1411
24 pages
Print Icon
To Next Page IconTo Next Page
To Next Page IconTo Next Page
To Previous Page IconTo Previous Page
To Previous Page IconTo Previous Page
Loading...
Audio Input Card/typical audio interconnections
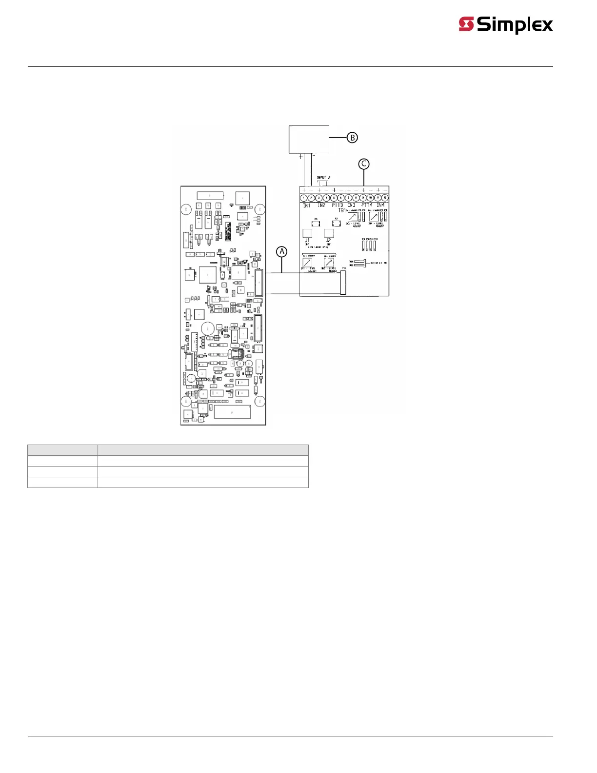
Figure 11 shows wiring for a 10 VRMS, 25 VRMS or 70.7 VRMS input through an audio input option card.
Figure 11: Audio Input Card with typical audio interconnections
Callout Description
A 734-048 Harness assy
B Typical audio source
C 637-063 Audio Input Option Card
Note: For the Audio Input Option Card, use input trimpots to adjust input signals for desired volume.
Installation notes:
Inputs set for 25 VRMS or 70.7 VRMS audio level are not supervised.
All wiring is 18 AWG (0.8321 mm
2
) to 12 AWG (3.309 mm
2
).
Wire distance depends on the signal supplier. See the manufacturer documentation for requirements.
Only inputs 1 and 2 support 25 VRMS/70.7 VRMS audio.
Inputs 1 and 2 are transformer-coupled inputs.
DC input impedance: 60 Kohms minimum (25 VRMS setting).
DC input impedance: 170 Kohms minimum (70.7 VRMS setting).
Set audio input card jumpers for desired input sources.
If you require a shield, connect the shield per the signal supplier's instructions. Do not connect the shield to the FACU ground.
Note: Refer to Fire Alarm System Audio Input Card Installation Instructions 579-160 for information on the audio input card.
page 14 579-1408 Rev. B
ES Net Digital Audio Controller Installation Instructions

Table of Contents

Related product manuals