EasyManua.ls Logo

Simplex 4100-1411 - Fire fighter phone system interconnections

Simplex 4100-1411
24 pages
Print Icon
To Next Page IconTo Next Page
To Next Page IconTo Next Page
To Previous Page IconTo Previous Page
To Previous Page IconTo Previous Page
Loading...
Fire fighter phone system interconnections
The ES Net Digital Controller Card supports the transmission of 2-way voice communications from Fire Fighter Phones over the ES Net network.
The Fire Fighter Phone Card (4100-1270) is used to interface the Fire Fighter Phone system to the ES Net network through the Digital Audio Controller
Card. The talk line is used for the transmission of communications between the ES Net Digital Audio Controller card and the Fire Fighter Phone Card.
Notes:
Fire fighter phone system interconnections are not supported when you set the card in digital audio controller mode.
An unlimited number of remote phone assemblies can be connected in a system. However, the maximum number of phones that can be activated
at the same time either locally at a node or on the entire ES Net network is 7.
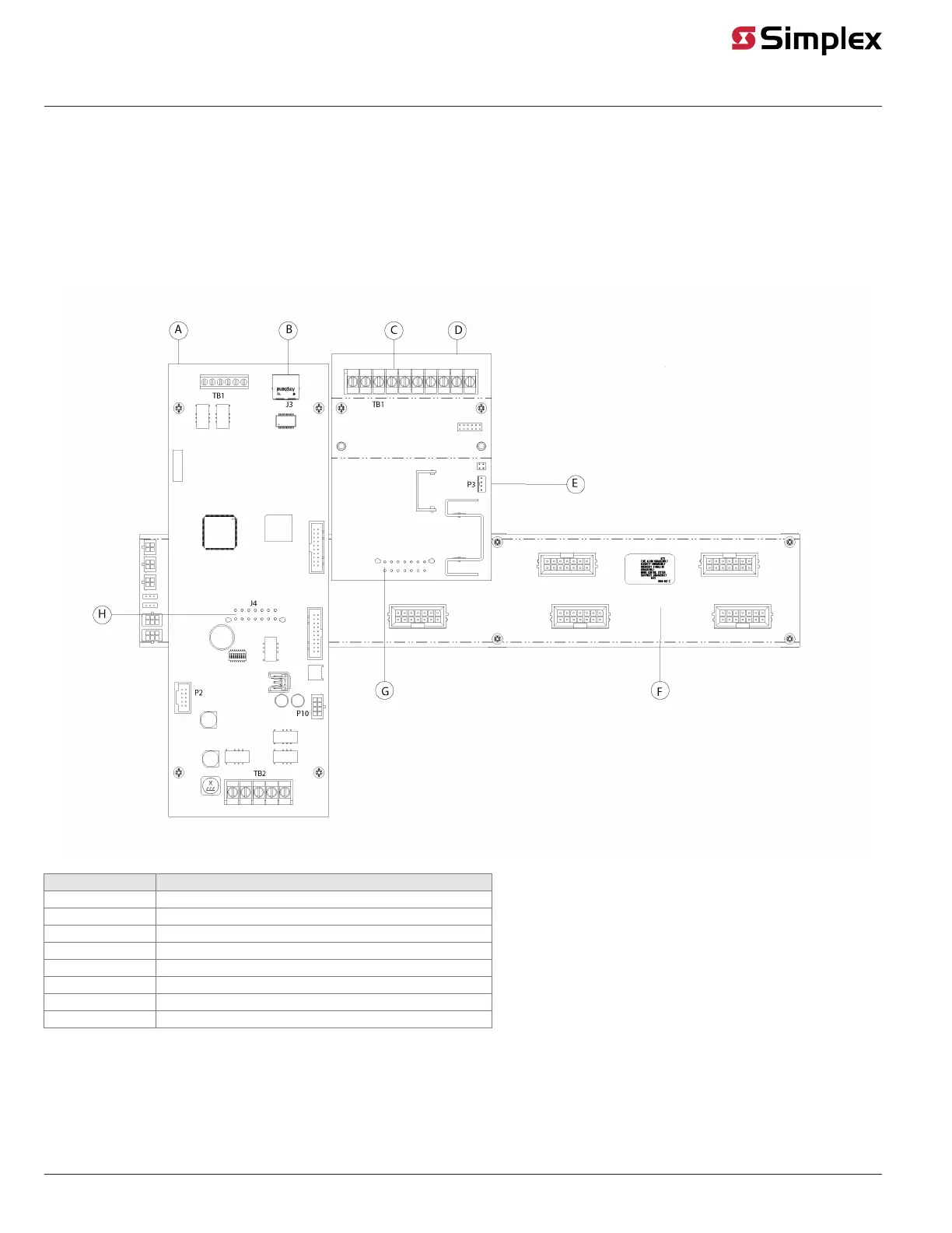
Figure 12: Fire fighter phone assembly
Callout Description
A 4100-1411 ES Net Digital Audio Controller Card
B Connection to the ES Net NIC Ethernet port
C Phone circuits for remote phones and phone jacks
D 4100-1270 Master card with phone card
E Master phone assembly
F Power distribution interface card
G PDI connector (P4) (on reverse side)
H PDI connector (on reverse side)
Installation notes:
The ES Net DAC Ethernet port should connect to the NIC on either on-board Ethernet ports A or B using the provided 2 foot cable. For the
connection of the NIC to the ES Net network, use an Ethernet Media Card (4100-6306), Single-Mode Fiber Media Card (4100-6308) or a Multi-Mode
Fiber Media card (4100-6309).
The ES Net NIC Ethernet port to which the ES Net DAC card connects must be configured as an Audio port in the ES Programmer. Refer to 574-849
for configuration information.
Note: Refer to Fire Fighter Phone System Installation Instructions 579-226 for information on the Fire Fighter Phone system.
page 15 579-1408 Rev. B
ES Net Digital Audio Controller Installation Instructions

Table of Contents

Related product manuals