EasyManua.ls Logo

Skyjack SJ40 T+ - Page 93

Skyjack SJ40 T+
130 pages
Print Icon
To Next Page IconTo Next Page
To Next Page IconTo Next Page
To Previous Page IconTo Previous Page
To Previous Page IconTo Previous Page
Loading...
SJ40 T+, SJ45 T+, SJ61 T+, SJ66 T+ 213201ACA
93
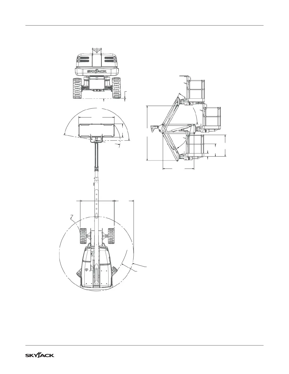
Technical diagrams Section 7 – Technical Diagrams and Specifications
Dimensions - SJ66 T+ (continued)
61°
360°
63°
170°
1.11m
(4 ft)
0.65 m
(2 ft)
0.17 m
(1 ft)
1.60 m
(63 in)
2.44 m
(8 ft)
1.93 m
(6 ft 4 in)
5.05 m
(16 ft 4 in)
1.33 m
(4 ft 6.5 in)
2.81 m
(9 ft 2.5 in)
1.62 m
( in)
2.44 m / 1.83 m
(96 in / 72 in)
0.91 m
(36 in )
0.36 m
(14.25 in)
0.06 m
(2.5 in)

Table of Contents

Other manuals for Skyjack SJ40 T+

Related product manuals